The UK's Largest Customer Review Website for the Property Industry
The UK's Largest Customer Review Website for the Property Industry
Back to Property Listings
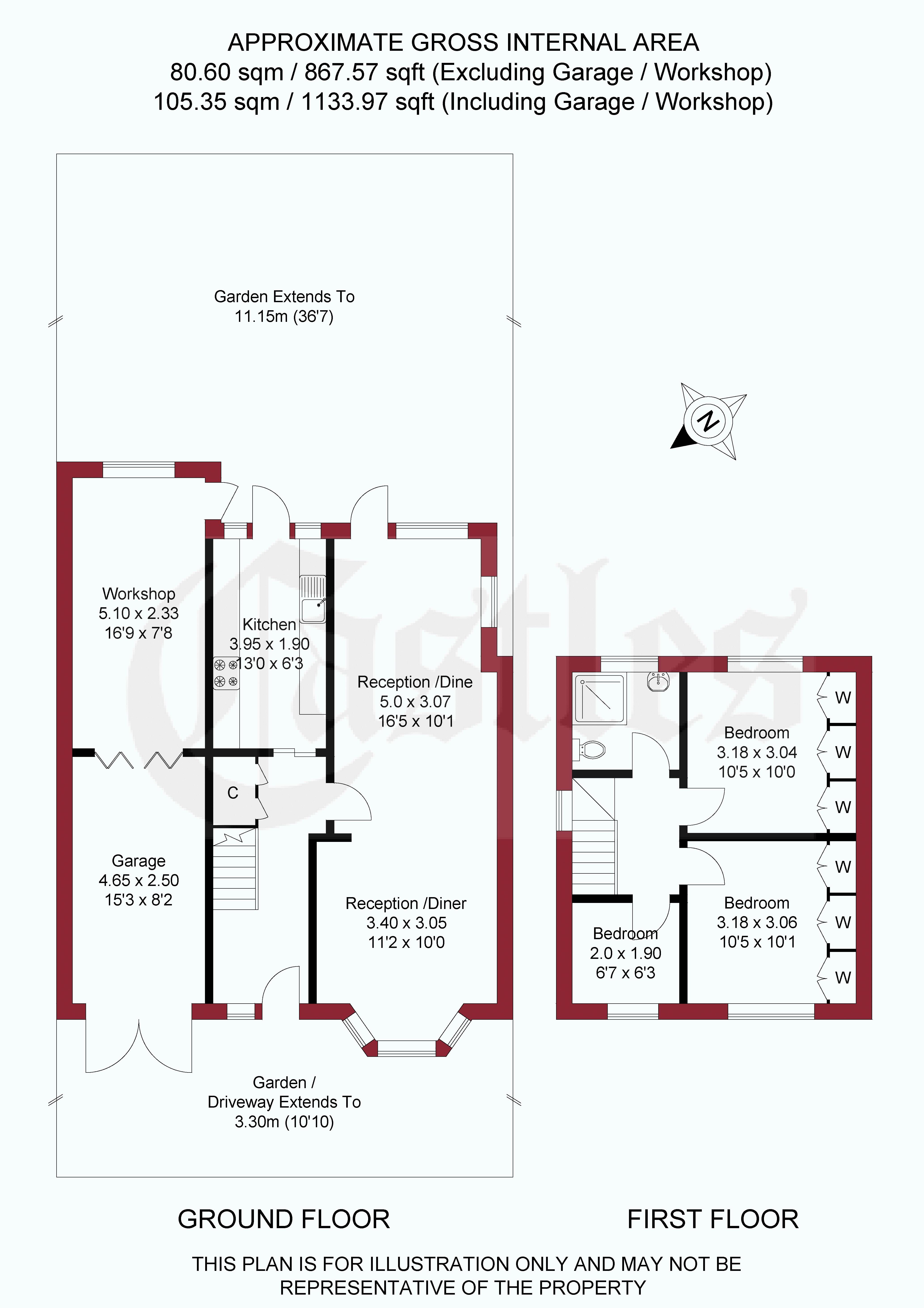
Ranworth Road, Edmonton
A three bedroom 1930's Semi Detached property situated within 1/3 mile of Edmonton Green, the property comprises of Reception one and kitchen to ground floor with three bedrooms and bathroom to first floor. It also has features to include, Garage to side, off street parking and is offered for sale on a chain free basis.EPC: FCouncil Tax Band: D

This property is marketed by

Castles Estate Agents (London) - Edmonton, London, N9
4.9/5 Rating
(939) reviews
Agent Statistics (Based on 939 Reviews) :