The UK's Largest Customer Review Website for the Property Industry
The UK's Largest Customer Review Website for the Property Industry
Back to Property Listings
Raithburn Avenue, Castlemilk
AVJ Homes are delighted to bring to the market this spacious two-bedroom flat located in the ever-popular Castlemilk area of Glasgow. This property offers generous living space, excellent transport links, and access to local amenities, making it an ideal purchase for first-time buyers, downsizers, or buy-to-let investors.
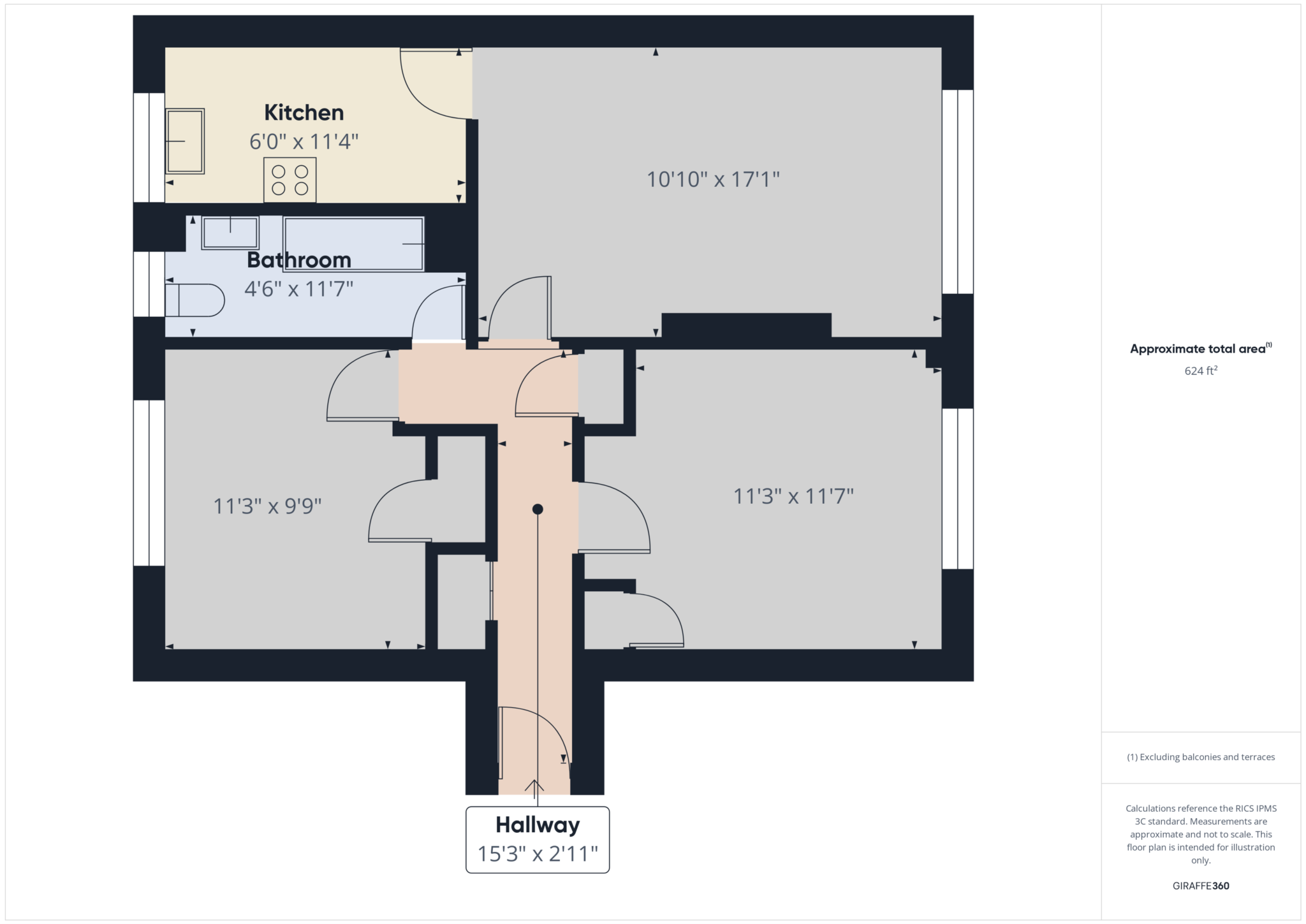
Lounge 10`10" ? 17`1" 3.30 m ? 5.21 m
Bright and spacious living room with large double windows providing ample natural light. Neutral d?cor and fitted carpet.
Kitchen 6`0" ? 11`4" 1.83 m ? 3.45 m
Good-sized fitted kitchen with ample wall and base units, worktop space, electric oven, hob, and extractor fan. Includes space for washing machine and fridge freezer.
Bedroom 1 11`3" ? 11`7" 3.43 m ? 3.53 m
Large double bedroom & large double window with fitted carpets and neutral d?cor. Window overlooking the rear of the property.
Bedroom 2 11`3" ? 9`9" 3.43 m ? 2.97 m
Second double bedroom, bright and well-proportioned, suitable for use as a bedroom, also with large double window
Bathroom 4`6" ? 11`7" 1.37 m ? 3.53 m
Modern three-piece suite comprising bath with over bath shower, WC, and wash-hand basin. Neutral tiling and fitted flooring.
Location & Area History
Raithburn Avenue forms part of Castlemilk, a residential district of Glasgow located approximately 5 miles south of the city centre. Historically, the area was developed in the 1950s as part of Glasgow`s housing expansion programme. Over the years, it has benefited from significant regeneration, with new housing, schools, and community facilities.
The area is popular with families and commuters due to its affordability, green surroundings, and easy access to Glasgow city centre.
Schools
? Castleton Primary School within walking distance
? St Bartholomew`s Primary School nearby Catholic primary
? Castlemilk High School short drive away
? Secondary alternatives include Holyrood RC Secondary School and Kings Park Secondary
Location:
? Raithburn Avenue, part of Castlemilk, short walk from Croftfoot Roundabout.
? Benefited from significant refurbishment and regeneration.
Transport Links
? Regular buses on Carmunnock Road, Aitkenhead Road, Castlemilk Road, Ardencraig Road.
? Easy access to M8 and M74 motorways.
Amenities
? Local shops, supermarkets, Castlemilk Shopping Centre within walking distance; 24-hour Asda 5 mins drive.
? Nearby green spaces: Linn Park, Kings Park, Castlemilk Park, Cathkin Braes Country Park.
what3words /// swear.habit.slides
Notice
Please note we have not tested any apparatus, fixtures, fittings, or services. Purchasers must undertake their own investigation into the working order of these items. All measurements are approximate and photographs provided for guidance only.
Council Tax
Glasgow City Council, Band A
Utilities
Electric: Mains Supply
Gas: None
Water: Mains Supply
Sewerage: None
Broadband: None
Telephone: None
Other Items
Heating: Not Specified
Garden/Outside Space: No
Parking: No
Garage: No

This property is marketed by

AVJ Homes Letting and Estate Agents - Glasgow, Glasgow, G44
4.9/5 Rating
(243) reviews
Agent Statistics (Based on 243 Reviews) :