The UK's Largest Customer Review Website for the Property Industry
The UK's Largest Customer Review Website for the Property Industry
Back to Property Listings
Radstock Lane, Reading
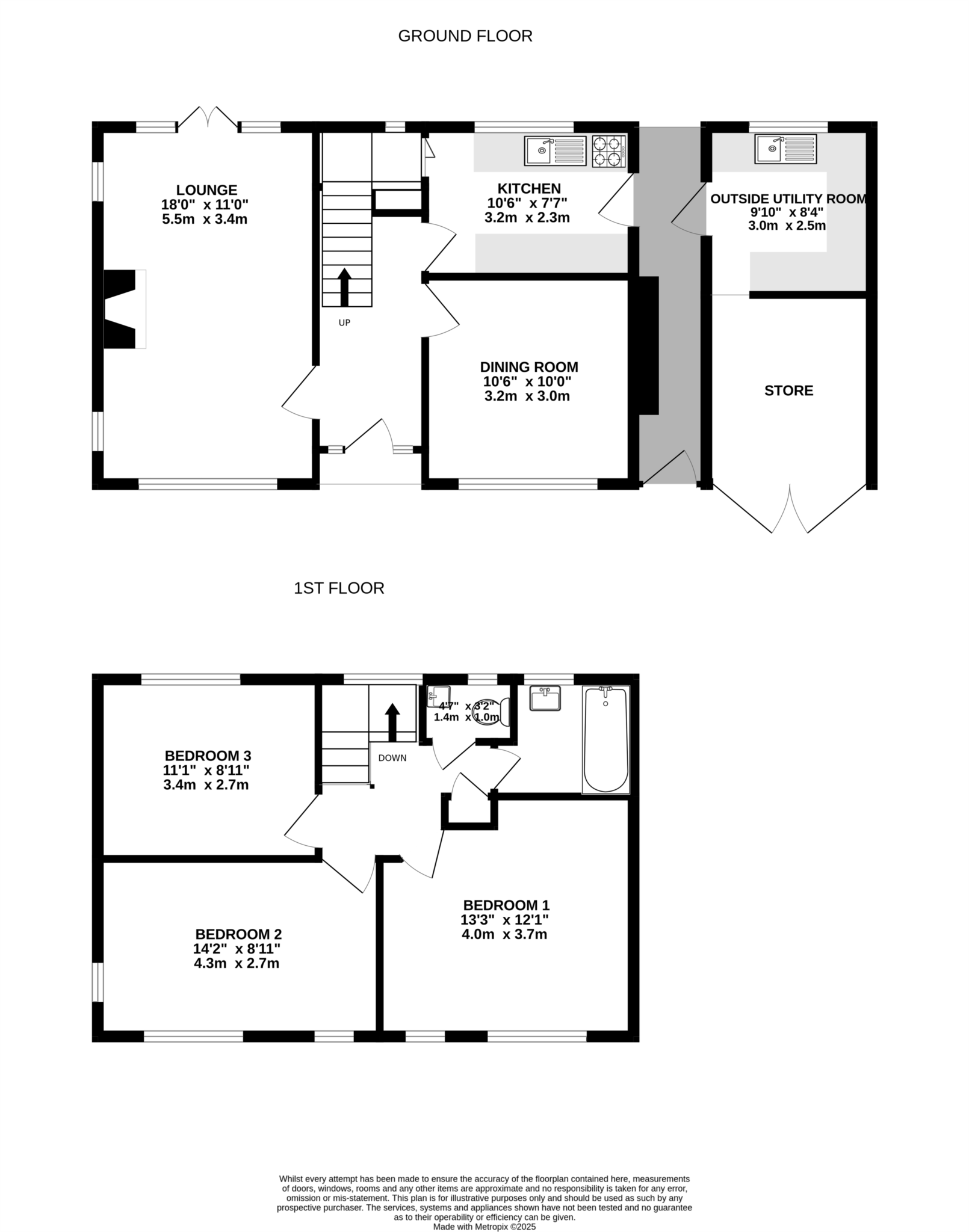
This 3 bedrooms detached property is conveniently located between Earley and Lower Earley.
This property comprises of entrance hall, 2 reception rooms and a kitchen.
This property further benefits from 3 bedrooms, first floor bathroom, gas central heating, double glazing, off road parking for approximately 8 to 10 cars and a private rear garden.
This property further benefits from a garage and is in the Maiden Earley and Radstock school catchment area.
Notice
All photographs are provided for guidance only.
Redress scheme provided by: Property Redress Scheme (PRS002337)
Client Money Protection provided by: Client Money Protect (CMP003569)
Council Tax
Reading Borough Council, Band E
Utilities
Electric: Mains Supply
Gas: Mains Supply
Water: Mains Supply
Sewerage: Mains Supply
Broadband: Unknown
Telephone: Unknown
Other Items
Heating: Gas Central Heating
Garden/Outside Space: No
Parking: Yes
Garage: No

Agent Statistics (Based on 3 Reviews) :