The UK's Largest Customer Review Website for the Property Industry
The UK's Largest Customer Review Website for the Property Industry
Back to Property Listings
Queens Road, Waltham Cross, Herts, EN8
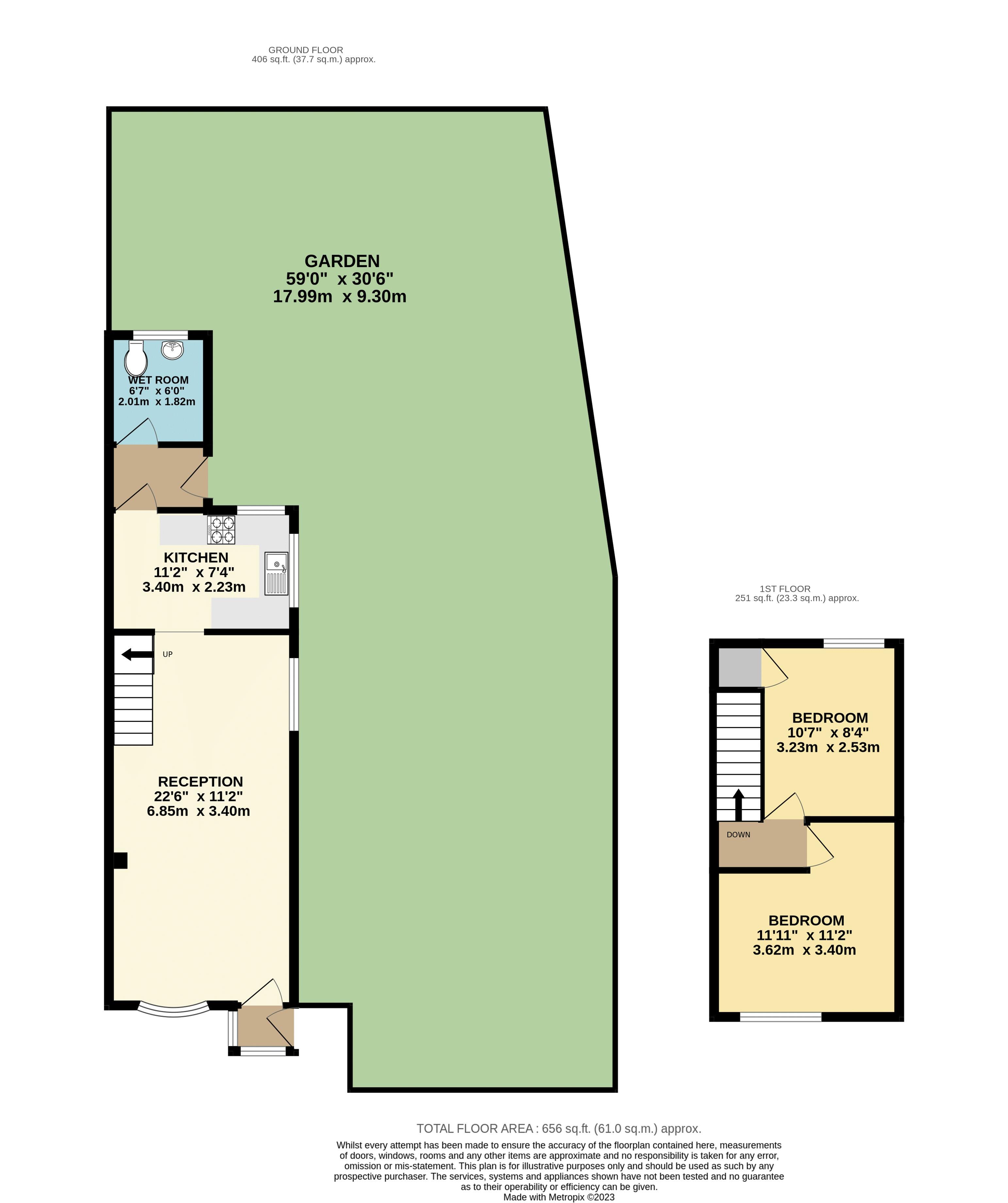
**HUGE PLOT **HUGE POTENTIAL.Castles market this chain free two double bedroom semi detached home occupying a large corner plot. A rare opportunity to purchase as it provides the potential to heavily extend to the side or build a separate dwelling (both STPP). Currently comprises a lounge/diner, kitchen, wet room and gated off street parking. Located close to Waltham Cross' train station, M25/A10 junctions and shopping centre.
Entrance
Double gate to side access/drive; front door to porch
Porch
Access to reception/diner
Reception/Diner: - 22' 5'' x 11' 0'' (6.83m x 3.35m)
Stairs to first floor, access to kitchen
Kitchen: - 11' 0'' x 8' 3'' (3.35m x 2.51m)
Access to Lobby
Lobby:
Door to garden, door to shower room
Shower Room: - 6' 9'' x 5' 6'' (2.06m x 1.68m)
Wet room
Landing:
Access to bedrooms, loft hatch
Bedroom 1: - 11' 7'' x 12' 1'' (3.53m x 3.68m)
L-shaped narrowing to 9' 3" (2.82m)
Bedroom 2: - 11' 0'' x 8' 2'' (3.35m x 2.49m)
Fitted wardrobe
Rear Garden:
Corner plot, access to front

This property is marketed by

Castles Estate Agents (London) - Waltham Abbey, Waltham Abbey, EN9
5/5 Rating
(939) reviews
Agent Statistics (Based on 939 Reviews) :