The UK's Largest Customer Review Website for the Property Industry
The UK's Largest Customer Review Website for the Property Industry
Back to Property Listings
Queens Road, Reading
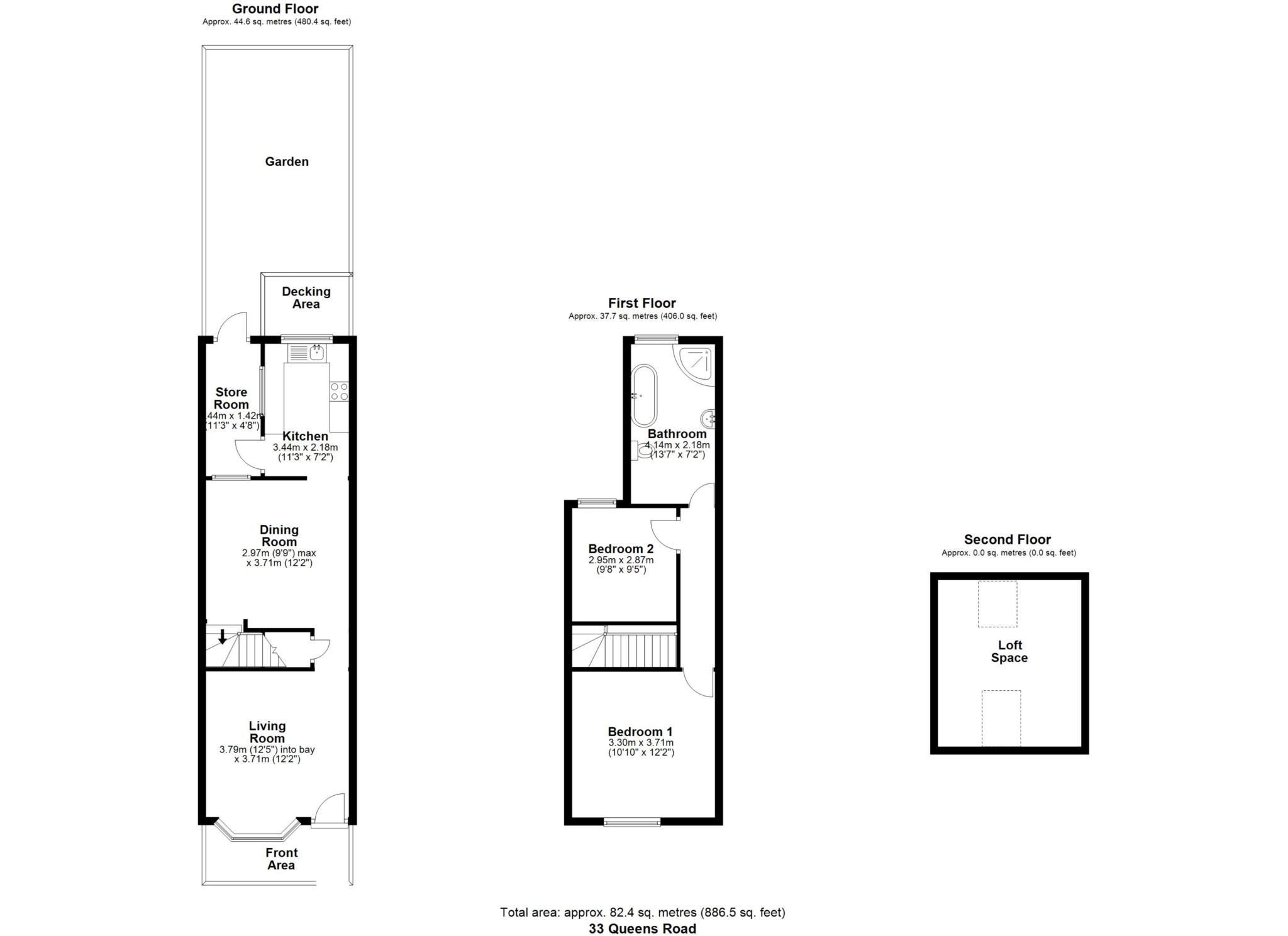
Bridges are delighted to bring to the market this two-bedroom Victorian mid-terrace house, ideally located within a short walk of both Caversham and Reading centres, and within easy reach of Reading Station. Presented in immaculate decorative order, this superb family home benefits from two double bedrooms, both with built-in storage, and a spacious fully tiled bathroom featuring a bath, separate shower, toilet, and sink. The property is accessed via a porch leading into a bright front room with a bay window, feature fireplace, and wooden flooring that flows seamlessly through to the dining area. The dining room leads into a well-appointed kitchen, neatly tiled and fully functional. A side door provides convenient access to the garden, offering useful additional storage. The south-facing garden is predominantly laid to lawn and further enhanced by a wooden decking area, perfect for outdoor seating and entertaining. The property also benefits from a very large loft space, fitted with two generous Velux windows on either side of the roof. This versatile space could easily be used as a study or home gym, and offers excellent potential to be converted into an additional bedroom, subject to the usual building regulations. This charming home is offered with no onward chain, and early viewing is highly recommended through the vendors` sole agent.
what3words /// study.books.code
Notice
Please note we have not tested any apparatus, fixtures, fittings, or services. Interested parties must undertake their own investigation into the working order of these items. All measurements are approximate and photographs provided for guidance only.
Council Tax
Reading Borough Council, Band C
Utilities
Electric: Unknown
Gas: Unknown
Water: Unknown
Sewerage: Unknown
Broadband: Unknown
Telephone: Unknown
Other Items
Heating: Gas Central Heating
Garden/Outside Space: No
Parking: No
Garage: No

This property is marketed by

Bridges Estate Agents (Reading) - Caversham Reading, Reading, RG4
3.7/5 Rating
(3) reviews
Agent Statistics (Based on 3 Reviews) :