The UK's Largest Customer Review Website for the Property Industry
The UK's Largest Customer Review Website for the Property Industry
Back to Property Listings
Quarry Road, Hurtmore, Godalming
An extended and well presented three bedroom Edwardian home enjoying a 18ft kitchen/breakfast room and a secluded 75ft garden. No onward chain.
Description
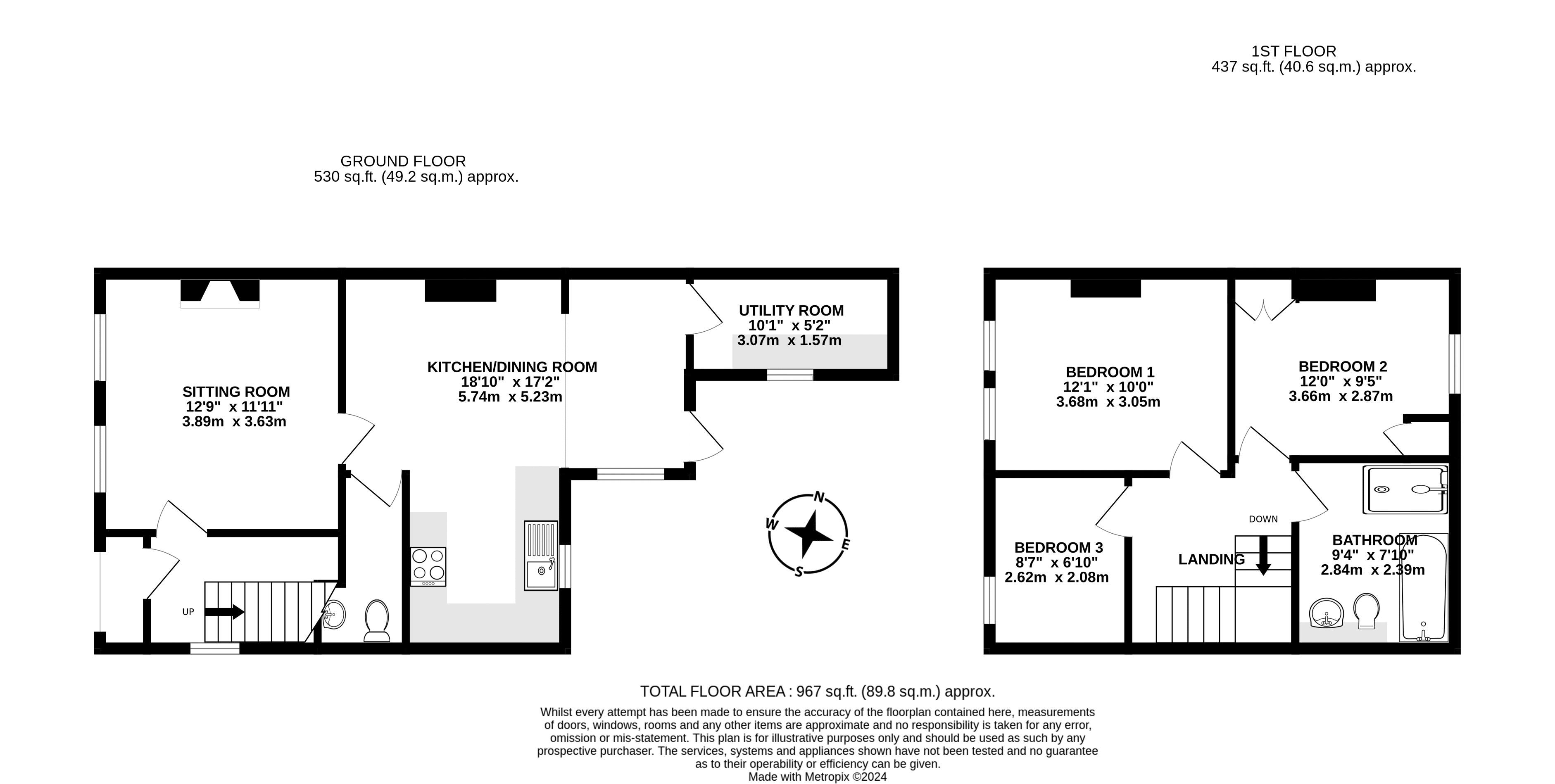
This attractive Edwardian home has been extended and offers well balanced accommodation. The entrance hall opens to the sitting room with a fire place and log burning stove, a door opens to the extended 18ft kitchen/dining room has a door to the garden. The kitchen has a good range of cupboards and is complimented by a separate utility room. On the first floor are three bedrooms and a generously sized bathroom with a separate walk-in shower. The rear garden is approximately 75ft and has a patio leading to an expanse of lawn bordered by timber fencing. A timber shed is towards the rear and a side gate gives access to the front with a driveway for one car.
Location
Hurtmore is a charming village retaining a rural feel, but in a convenient position around 2 miles south of Godalming. The surrounding countryside lies within the Green Belt and offers wonderful views across gentle rolling hills. Benefiting from excellent communications, with the A3 providing a direct route to London and Portsmouth and, via the M25, easy access to the airports and the national motorway network. Rail communications are also excellent, with main line stations at Farncombe, and Godalming offering frequent services into London in approximately 50 minutes. Godalming's High Street lies around 2 miles away and provides a range of shops including Waitrose and Sainsbury's Superstores. There are also bus services available linking with neighbouring towns and villages including Guildford, which lies approximately 3.5 miles to the north.

This property is marketed by

Warren Powell Richards - Godalming, Godalming, GU7
5/5 Rating
(2316) reviews
Agent Statistics (Based on 2316 Reviews) :