The UK's Largest Customer Review Website for the Property Industry
The UK's Largest Customer Review Website for the Property Industry
Back to Property Listings
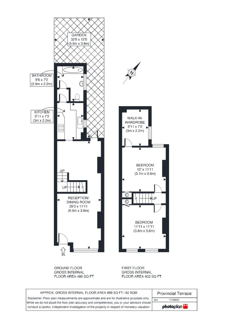
Provincial Terrace, Penge, London
Propertyworld is delighted to present this well presented, spacious two/three bedroom, mid terrace, Victorian home with private patio garden, in ever popular Provincial Terrace, Penge. The property is offered with VACANT POSSESSION and NO CHAIN. The property blends a raft of original features including numerous period fireplaces with contemporary touches.
The ground floor benefits from an incredible 29 ft long double reception with double aspect ensuring the room is bathed in natural light. There is an original fireplace (one of three in the property), and the room is partly divided by staircase to the first floor, creating two defined spaces for a dining and relaxing. To the rear there is access to the good sized fully fitted kitchen. The boiler was replaced in the last 2 years. Off the kitchen, to the rear, is a generous bathroom with white three-piece suite and partly tiled walls. You can access the private patio garden that measures over 30ft (including side return) through a double-glazed door off the reception.
Upstairs there are three rooms: two double bedrooms and a third room off one of the bedrooms - this can be used as a large walk-in wardrobe, converted to an ensuite bathroom, or treated as a third bedroom. There is also a loft providing ample storage.
The house is double glazed throughout, was recently painted, and is offered in turn key condition.
Provincial Terrace is on Green Lane, a short stroll to Penge High Street, with its collection of gastropubs, coffee shops, neighbourhood restaurants (including the fab Friends of Flavour) and independent shops. There are four stations all a short walk away including Penge East and Penge West providing fast regular services into London and beyond.
A wonderful opportunity to acquire a freehold period house for the price of a flat! Please call Propertyworld to view.
"The location is fantastic, close to all the shops in both Penge and Sydenham. I love the lightness of the house and the expansive front room. The garden is low maintenance and quiet, the perfect spot to entertain friends over a few beers!."

Agent Statistics (Based on 2753 Reviews) :