The UK's Largest Customer Review Website for the Property Industry
The UK's Largest Customer Review Website for the Property Industry
Back to Property Listings
Poulett Gardens, Twickenham
This much-loved family home has been well maintained over the years though there is scope to extend, reconfigure and generally improve throughout. We feel there is potential to widen the kitchen and ground floor and to add principle bedroom suite into the loft space, subject to local authority consents. This attractive house is being sold for the first time in 60 years, with a garden - large enough to take home office and access to the amenities of Twickenham town centre, a plethora of outstanding local schools, Twickenham railway station and excellent local transport links.
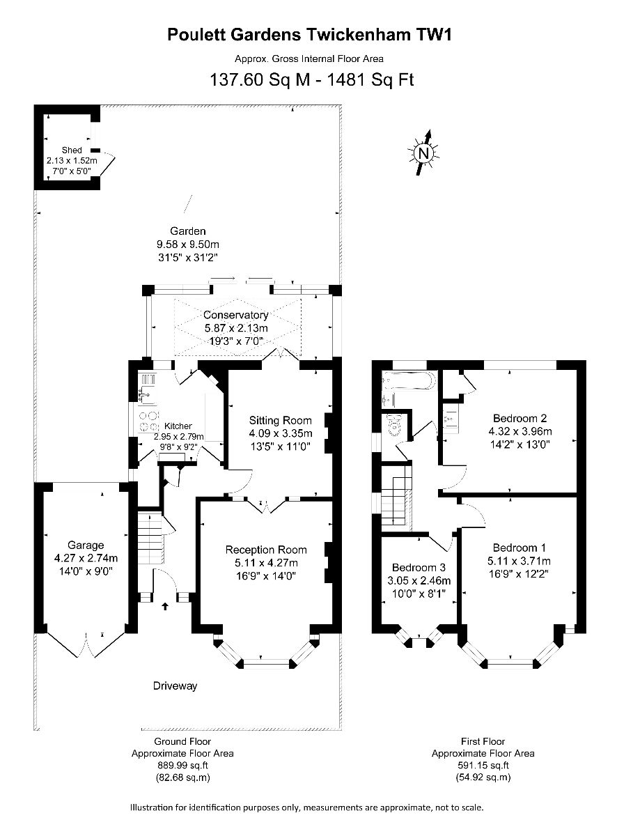
Illuminated by natural light which shines through the stunning stained glass front door, the welcoming entrance provides access to a traditional layout of two large reception rooms and working kitchen, connected seamlessly by the later addition of a full width conservatory. The pretty rear garden offers privacy and seclusion, whilst the first floor comprises three bedrooms and bathroom. There is the further benefit of an attached garage to the side of the property and enormous potential for extension to the rear side and loft (STPP).
Poulett Gardens is an extremely sought-after residential address, considered one of TW1s finest and with a wonderful sense of community. One of the key considerations for families moving into this desirable part of town is the proximity to a good state school and this property sits in the catchment for the highest rated primary and secondary schools in the area, as well as offering lots of high-quality private school options within walking distance. Commuters enjoy a regular fast train service, just 17 minutes to Waterloo!
Stretching from Marble Hill Park to idyllic Twickenham Green with its cricket square and its mix of 1930's and Victorian terraced houses, Twickenham is a laid-back community with a decidedly sporty feel and an eclectic Riverside quarter that contains some of the most famous pubs in the borough. The wonderfully named Eel Pie Island, is connected to the Twickenham embankment by a narrow footbridge erected in 1957, prior to which access for its residents was via a hand-operated ferry.
We would encourage all interested parties to join us for a tour of the property, the charms of which we have only very briefly summarised here.
Tenure: Freehold

This property is marketed by

Property Partnership - Richmond Office, Twickenham, TW1
5/5 Rating
(104) reviews
Agent Statistics (Based on 104 Reviews) :