The UK's Largest Customer Review Website for the Property Industry
The UK's Largest Customer Review Website for the Property Industry
Back to Property Listings
Pinnacles, Waltham Abbey
Pinnacles, Waltham Abbey, EN9 1TG
Castles are delighted to offer this charming two-bedroom split-level home, ideally situated in a sought-after residential location close to Waltham Abbey’s historic town centre and local amenities.
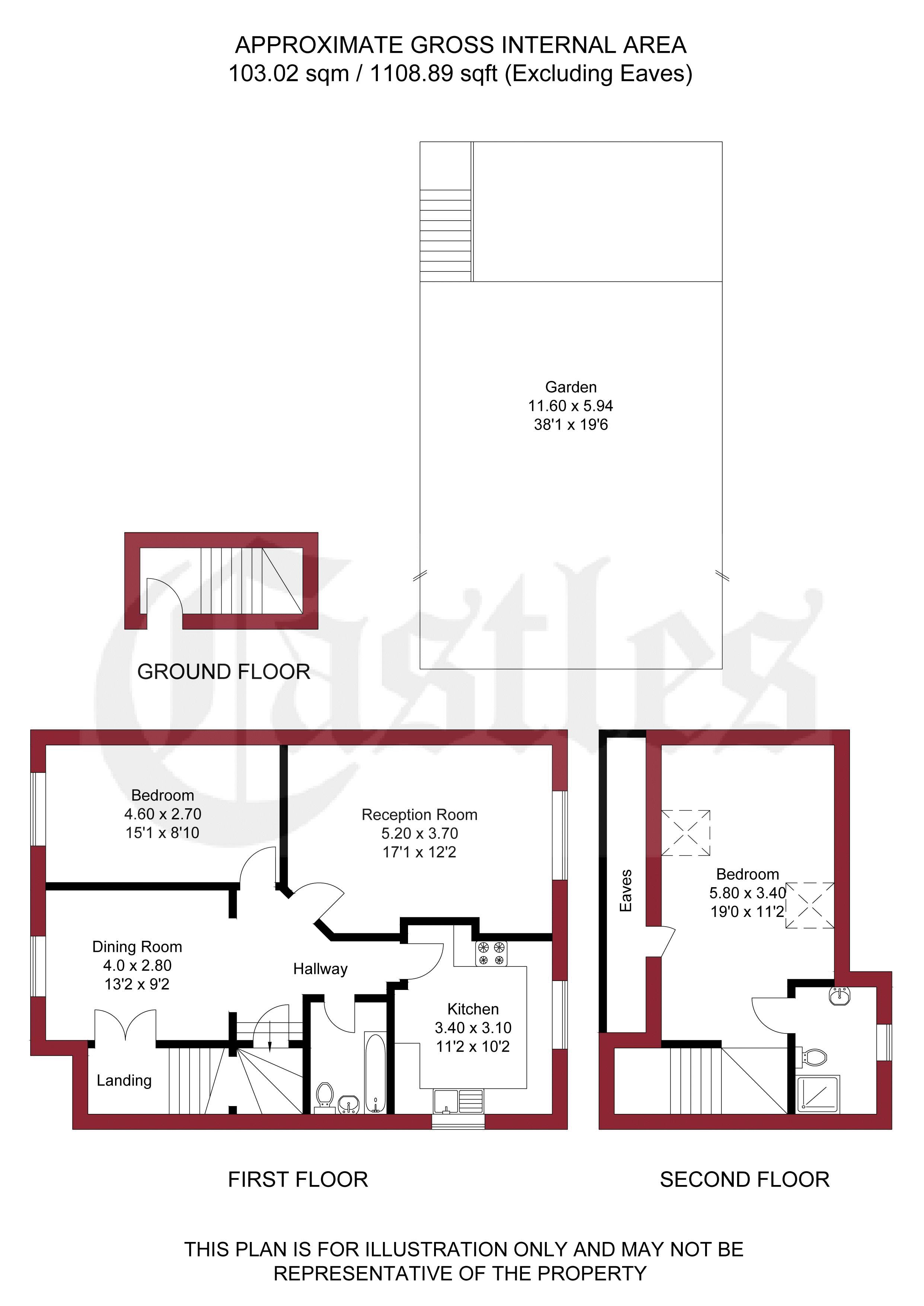
Arranged over three floors and offering approximately 103 sqm / 1109 sqft of internal space (excluding eaves), the property has been thoughtfully designed to provide generous and versatile accommodation throughout.
The first floor features a welcoming hallway leading to a bright reception room and a well-presented kitchen, A dining room and a spacious bedroom complete this level, alongside a family bathroom.
The second floor offers a superb principal bedroom with ample storage within the eaves and a convenient shower room, providing an ideal retreat space.
Externally, the property benefits from a private rear garden, perfect for outdoor entertaining or relaxing.
Located within easy reach of Waltham Abbey’s shops, cafés, schools, and transport links — including Waltham Cross Station and quick access to the M25 and A10 — this property is ideal for first-time buyers, professionals, or those seeking a well-proportioned home in a prime location.
EPC Rating C
Owners information: Lease 900+ years remaining £20 Per Year Ground Rent

This property is marketed by

Castles Estate Agents (London) - Waltham Abbey, Waltham Abbey, EN9
5/5 Rating
(939) reviews
Agent Statistics (Based on 939 Reviews) :