The UK's Largest Customer Review Website for the Property Industry
The UK's Largest Customer Review Website for the Property Industry
Back to Property Listings
Pershore Road, Hampton
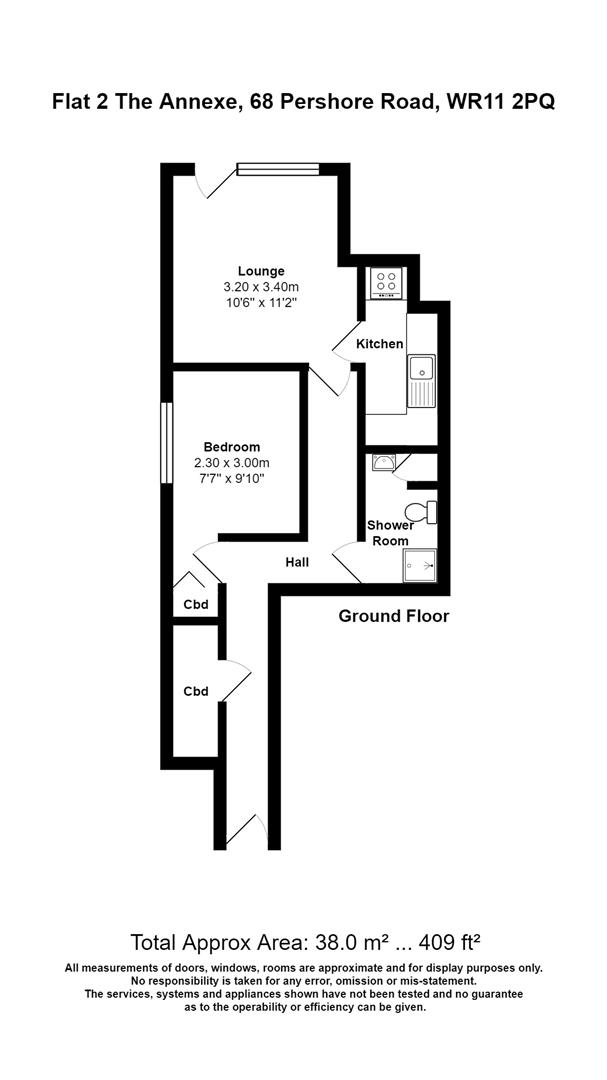
***AVAILABLE JUNE*** A self contained one bedroom annexe situated in Hampton, a village linked very closely to Evesham, with its shops, cafes and restaurants. This property is ideally placed with easy access to good road and rail links, The accommodation briefly comprises, hallway, living room with doors to garden, kitchen with a range of fitted units and appliances (washing machine, fridge), bedroom with fitted wardrobe, shower room. Rear garden mainly laid to lawn (mowed by the landlord), parking space to front. This property is offered FURNISHED. Council Tax Band A. Energy Rating D. Initial 12 Month Tenancy.
Important Information About Tenancy Costs - A holding deposit equivalent to ONE WEEKS RENT is required to secure your interest in the property, until all checks have been completed.
Upon successful referencing contracts will proceed and move in details arranged, the holding deposit will be transferred to your account with Sheldon Bosley Knight and held towards the initial first month's rent unless otherwise agreed.
In case of the following conditions, the holding deposit will be retained, in full to cover company costs incurred:
. False, inaccurate, missing, or misleading information is supplied by you
. Failure by the applicants, or their referees, guarantors (or other third parties supplied by you and relating to your application) to complete the process and sign any Tenancy agreement within 14 days from the date of application (You must ensure that you advise all contacts beforehand that they will be contacted). Should we need to extend this deadline, we will email you to confirm and, in any event, when we inform you that references are complete, the deadline for contract signing will extend by one week (i.e. total 21 days from payment of the holding deposit).
. No legal authority to rent (Failing Right to Rent Checks)
. You and/or any of your co-applicants decide to withdraw from the process after this application is submitted to us.
Online Viewings - Please be advised that due to high demand, all applicants are required to attend an in-person viewing of the property before submitting an application. Online viewings are for visual reference only and do not serve as a substitute for an in-person viewing.
Living Room - 3.36 x 3.20 (11'0" x 10'5") -
Bedroom - 3.85 x 2.33 (12'7" x 7'7") -

Agent Statistics (Based on 1251 Reviews) :