The UK's Largest Customer Review Website for the Property Industry
The UK's Largest Customer Review Website for the Property Industry
Back to Property Listings
Perry Rise, London
Guide Price: £500,000 - £525,000
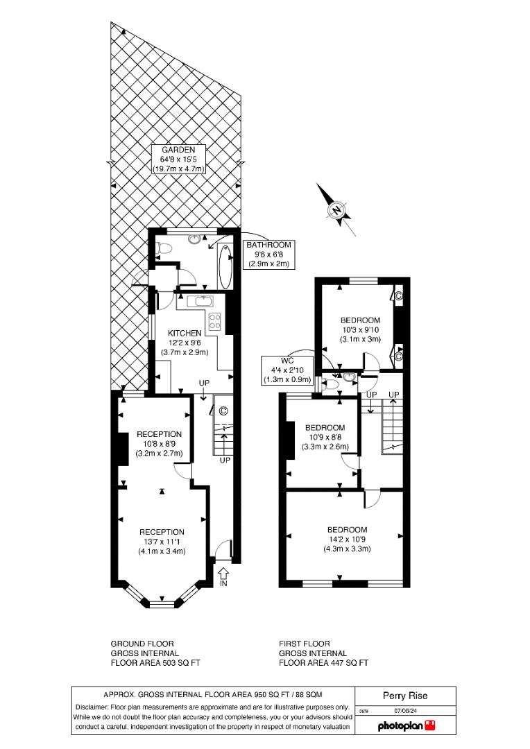
A three bedroom Victorian house with NO CHAIN & FREEHOLD tenure offered to the market by Propertyworld. This super house, is an ideal first time buy or upgrade and is spacious, flooded in light, and benefits from beautifully proportioned accommodation throughout. With a gorgeous rear garden, double reception room, modern kitchen / diner, large convertible loft, upstairs W.C and an excellent location, we expect strong interest, so call Propertyworld to make an appointment to view. The property is offered with VACANT POSSESION and has been re painted with new carpet on the stairs and entire first floor. The details include: on the ground floor you enter into a welcoming and nicely presented hallway with high spec laminate flooring and neutral decor, to side is a gorgeous double reception with laminate floor, bay window to front, chimney breasts in both rooms and high ceilings, to rear is a modern high spec kitchen / diner with a tiled floor, extensive range of high gloss, wall and base units, oak worktop, gas hob, electric oven and window to side, to rear is a generous family bathroom with three piece suite and shower over bath. On the first floor, there are THREE Bedrooms - 2 with storage - and W.C with basin. Above there is a generous and convertible loft (subject to obtaining the correct permissions and certification) and to rear is super cute private garden with a newly laid lawn and fab rear decked patio and seating. EPC rating is D and Council tax is D.
Its a lovely house with big spacious room and lots of light. My favourite spaces are the kitchen but best of all, the beautiful garden.

Agent Statistics (Based on 2753 Reviews) :