The UK's Largest Customer Review Website for the Property Industry
The UK's Largest Customer Review Website for the Property Industry
Back to Property Listings
Pemberley Avenue, Bedford, MK40 2LA
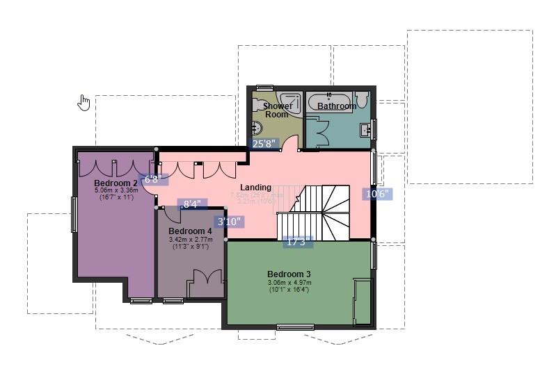
We are pleased to offer this soon to be newly decorated prestigious house located next to Bedford Park. The house comprises entrance hallway, large lounge with doors to conservatory, dining room, kitchen with cooker, utility room, double bedroom with built in wardrobes and en−suite and cloakroom. To the first floor are three double bedrooms and two bathrooms. To the side of the main house is a connected Annex with separate lounge, kitchen and shower room. MUST BE SEEN
This property is marketed by

Jayne Beard Associates Ltd - Provincial House, Bedford, MK40
4.6/5 Rating
(85) reviews
Agent Statistics (Based on 85 Reviews) :