The UK's Largest Customer Review Website for the Property Industry
The UK's Largest Customer Review Website for the Property Industry
Back to Property Listings
Peerless Drive, Harefield, Uxbridge
An ideal first home or investment this well presented apartment provides light filled and well proportioned accommodation.
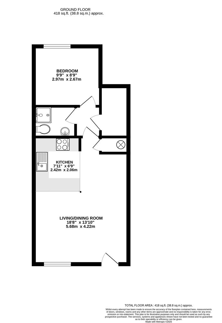
Description - Situated within this sought-after development, this one-bedroom ground floor maisonette benefits from a private garden, allocated parking, and is offered for sale with no upper chain.
Accommodation - The accommodation briefly comprises an open-plan living area with a fitted kitchen featuring ample worktop space and room for appliances, a double bedroom, a shower room, and additional built-in storage.
Outside - There are attractive communal gardens surrounding the building and an allocated parking space to the front.
Situation - Peerless Drive is only a short stroll from Harefield Village with its local shopping facilities and well regarded schools. Harefield is a semi-rural location close to the Grand Union canal, offering access to many outdoor activities. Denham Green's shops and mainline station, as well as Uxbridge town centre are also easily accessible.
Terms And Notification Of Sale - Tenure: Leasehold
Local authority: London Borough of Hillingdon
Council Tax Band: C
Current EPC Rating: TBC
Lease: In the process of being extended to 125 years remaining
Service Charge: £889 per annum
Ground rent: Currently £60 per annum, will fall away to £0 following completion of the lease extension

This property is marketed by

Cameron Estate Agents - Uxbridge, Uxbridge, UB8
4.8/5 Rating
(1175) reviews
Agent Statistics (Based on 1175 Reviews) :