The UK's Largest Customer Review Website for the Property Industry
The UK's Largest Customer Review Website for the Property Industry
Back to Property Listings
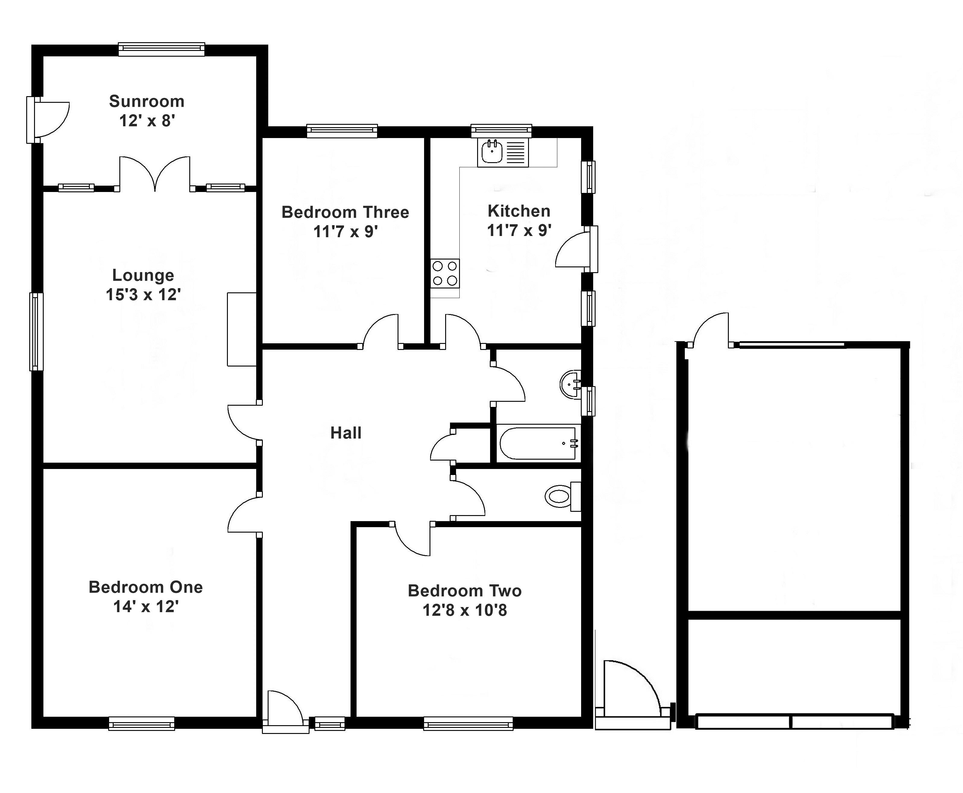
Parklands, Chichester
Rarely available, a two/three bedroom detached bungalow set within the ever popular Parklands area of Chichester. This superb property offers the chance for a purchaser to update and restyle throughout with the scope for either extending or converting the loft if more living space is required, do not miss out, bungalows on Parklands are in high demand.

This property is marketed by

Marchwood Estate Agents - Chichester, Chichester, PO19
0/5 Rating
(0) reviews
Agent Statistics (Based on 0 Reviews) :