The UK's Largest Customer Review Website for the Property Industry
The UK's Largest Customer Review Website for the Property Industry
Back to Property Listings
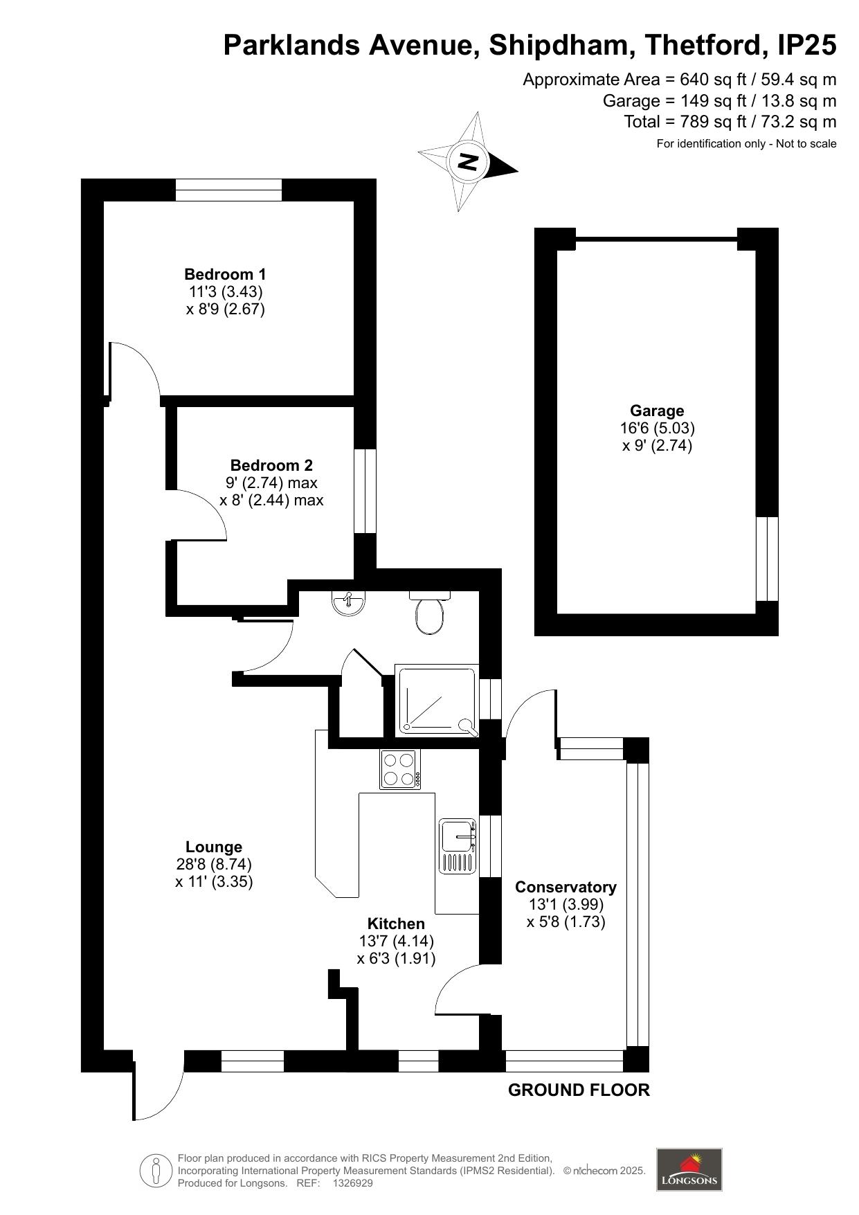
Parklands Avenue, Shipdham
GUIDE PRICE ?210,000-?220,000. Open House Saturday 25th October By Appointment Only.
Situated in a cul-de-sac location in the popular village of Shipdham, Longsons are delighted to bring to the market this very well presented and modernised semi detached bungalow. Tucked away in a cul-de-sac position, the property is located with views of grazing land to the side and offers open plan living, garage, gardens, conservatory, parking, gas central heating and UPVC double glazing.
Briefly, the property offers open plan kitchen/diner/lounge, conservatory, two bedrooms, shower room, garage, gardens, parking, gas central heating and UPVC double glazing.
SHIPDHAM
Situated approximately midway between the towns of Dereham and Watton, Shipdham is a large village with a good selection of amenities including - shops, post office, pub, doctors surgery and primary school. A regular bus service is available to Dereham and Watton and the City of Norwich is approximately a 35 minute drive away.
Open Plan Lounge/Kitchen - 28'8" (8.74m) x 11'0" (3.35m)
Lounge Area: Entrance door opening to front, wood effect laminate to floor, two radiators, UPVC triple glazed window to front.
Kitchen Area - 13'7" (4.14m) x 6'3" (1.91m)
Fitted kitchen units to walls and floor, work surface over, stainless steal sink unit with mixer tap and drainer, integrated Bosch oven, integrated microwave and induction hob, extractor hood over, space and plumbing for washing machine, space for tall upright fridge/freezer, UPVC double glazed windows to front and side, water softener, tiled splashback, UPVC double glazed door to conservatory, radiator.
Conservatory - 13'1" (3.99m) x 5'8" (1.73m)
UPVC double glazed conservatory, patio door opening to rear garden, solid roof providing more comfortable temperature for all year round usage, radiator.
Hall
Wood effect laminate to floor, loft access, radiator.
Bedroom One - 11'3" (3.43m) x 8'9" (2.67m)
UPVC double glazed window to rear radiator.
Bedroom Two - 9'0" (2.74m) Max x 8'0" (2.44m) Max
UPVC double glazed window to side, radiator.
Shower Room - 6'7" (2.01m) x 10'11" (3.33m)
Shower area, wash basin built in storage cupboard, WC, built in cupboard housing the gas central heating boiler, tiled splashback, obscured glass UPVC double glazed window to side, radiator.
Garage - 16'6" (5.03m) x 9'0" (2.74m)
Up and over door to front, UPVC double glazed window to side, electric light and power.
Outside Front
Small front garden laid to artificial lawn, driveway providing off road parking for approximately two vehicles, outside lights, gated access to rear garden.
Rear Garden
Enclosed low maintenance rear garden, paved patio seating area, selection of shrubs and plants, gated access to side providing access to public bridal way, outside lights, outside tap, wooden fence and hedge to perimeter, gated,access to front.
Agents Note
EPC rating C70 (Full copy available on request)
Council tax band A (Own enquiries should be made via Breckland District Council)
what3words /// steepest.only.pickles
Notice
Please note we have not tested any apparatus, fixtures, fittings, or services. Interested parties must undertake their own investigation into the working order of these items. All measurements are approximate and photographs provided for guidance only.
Utilities
Electric: Mains Supply
Gas: Mains Supply
Water: Mains Supply
Sewerage: Mains Supply
Broadband: None
Telephone: None
Other Items
Heating: Gas Central Heating
Garden/Outside Space: Yes
Parking: Yes
Garage: Yes

Agent Statistics (Based on 1 Reviews) :