The UK's Largest Customer Review Website for the Property Industry
The UK's Largest Customer Review Website for the Property Industry
Back to Property Listings
Park Road, Exeter
A one bedroom, bay fronted first-floor flat with private outside space and easy access to the city centre.
** NO ONWARD CHAIN ** GUIDE PRICE £160,000 - £170,000 **
The Property
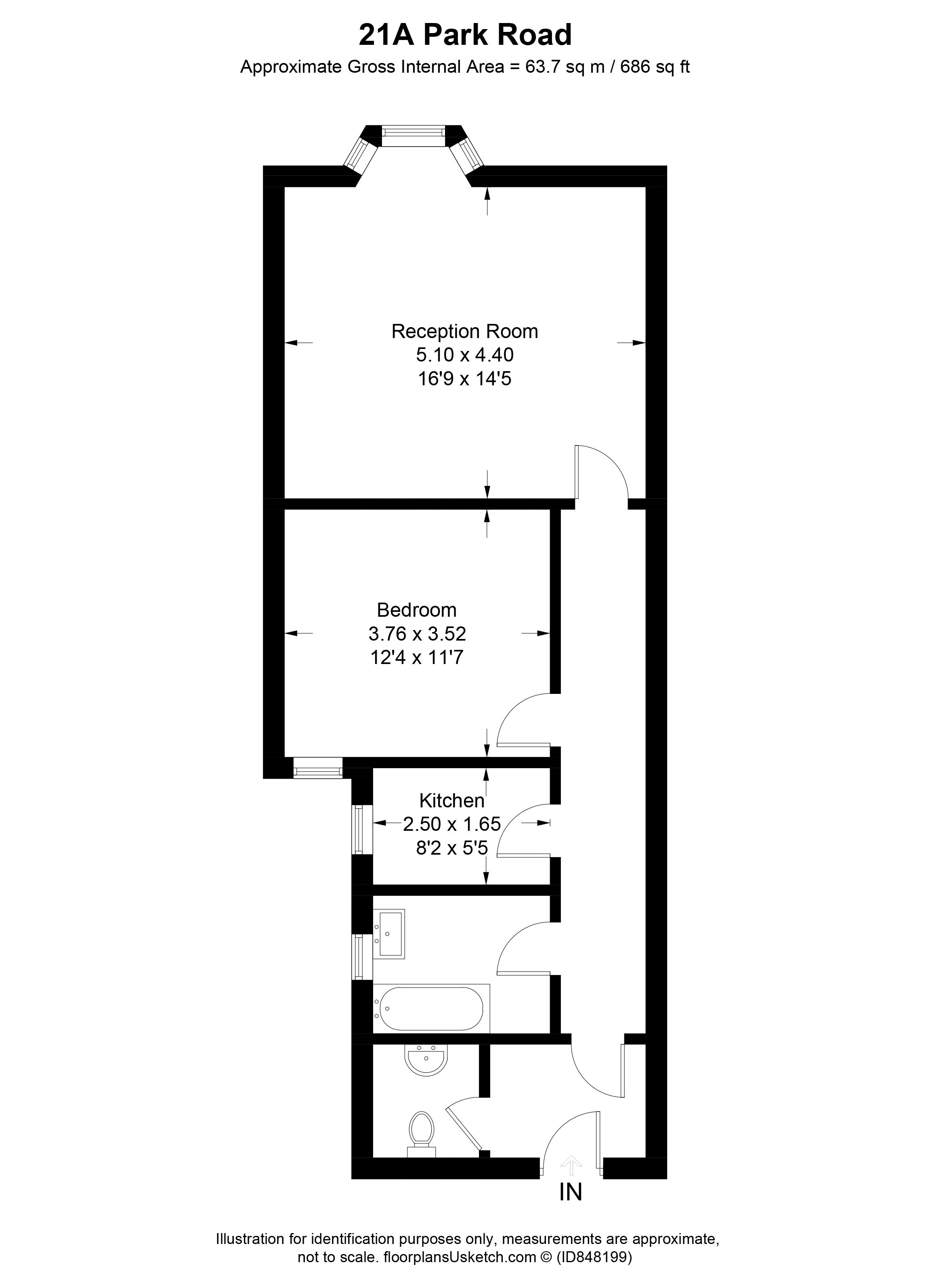
Access to the flat is provided through a service lane at the back of Park Road, through a gate into a private rear garden that is comprised of a decked area with a steps up to the door. The door leads into a small hallway, with a door leading to a WC with wash hand basin and a single glazed window to the side aspect.
From the hallway, another internal door provides access to the carpeted landing, which has doors leading to the bathroom, kitchen, bedroom and living/dining room.
The bathroom features a bath with shower over, and a wash hand basin with a single glazed window to the side aspect.
The kitchen comprises of an electric hob and oven, extractor fan, plumbing for a washing machine, wall and base units and space for an under-counter fridge; as well as a further single glazed window to the side aspect.
The bedroom is generously appointed and features a single glazed sash window to the rear aspect.
The living/dining room is again impressively sized and features a large bay fronted sash window that provides plenty of natural light.
Currently let, achieving £625 pcm.
Situation
Located on the fringe of the popular residential areas of Polsloe and Mount Pleasant; close to local shops, schools and amenities.
The city centre is less than a mile away, and there are regular bus services from Pinhoe Road a short walk away. The M5 is a 10 minute drive from the property and Polsloe Bridge Train Station is just over half a mile away giving easy access in and out of the city.
Directions
From the city centre, take Blackboy Road towards Polsloe Bridge. At the traffic lights, continue straight onto Pinhoe Road and turn right onto St John's Road. At the end of St John's Road turn left onto Park Road, and the property is on the left hand side. Access to the flat is provided to the rear of Park Road, by turning left onto Jubilee Road and then immediately left down the service lane for the properties at the rear of Park Road.

This property is marketed by

Robert Williams Estate Agents & Letting Agents - Exeter, Exeter, EX1
5/5 Rating
(209) reviews
Agent Statistics (Based on 209 Reviews) :