The UK's Largest Customer Review Website for the Property Industry
The UK's Largest Customer Review Website for the Property Industry
Back to Property Listings
Park Lodge Avenue, West Drayton
A superb two bedroom apartment with a private terrace set in a Prime West Drayton development
Description - Located within a popular and well-maintained development, this spacious ground floor apartment offers two generous double bedrooms and comfortable living throughout. Residents benefit from a concierge service, beautifully landscaped communal gardens, and residents' parking.
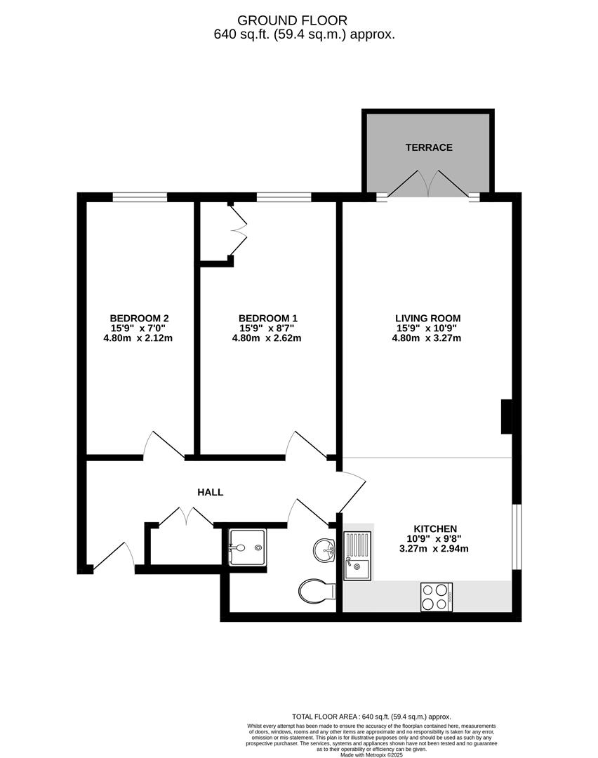
Accommodation - The accommodation on offer briefly comprises of, entrance hallway leading to the open plan kitchen/living room which is fitted with a good range of storage units and drawers, there are ample work surfaces. Double doors open onto the private terrace. There are the two double bedrooms and an attractive three piece bathroom suite.
Outside - There is residents parking for one car, landscaped gardens and a private terrace.
Situation - The property is positioned in this very popular residential location within easy access to West Drayton station and Uxbridge with their wide range of day to day shops and amenities. There is also excellent access to Stockley Business Park, local bus routes, London International Heathrow Airport, M4, M40 and M25 motorways.
Terms And Notification Of Sale - Tenure: Leasehold
Remaining lease: 107 years
Annual service charge: £3492
Ground rent: NIL
Council tax band: C
EPC rating: C

This property is marketed by

Cameron Estate Agents - Uxbridge, Uxbridge, UB8
4.8/5 Rating
(1176) reviews
Agent Statistics (Based on 1176 Reviews) :