The UK's Largest Customer Review Website for the Property Industry
The UK's Largest Customer Review Website for the Property Industry
Back to Property Listings
Park Hill Road, Harborne, Birmingham, B17
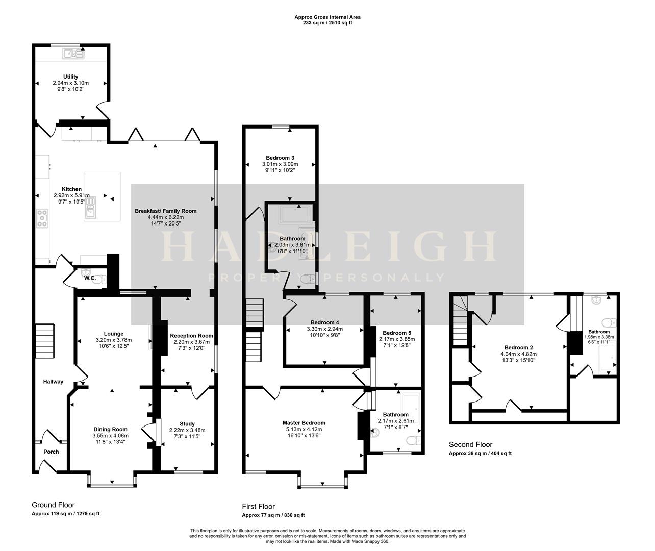
Hadleigh Estate Agents are delighted to offer this substantial five bedroom property for sale. Located on the ever popular Park Hill Road the property has undergone significant improvement over the years. Boasting loft conversion and rear extension and offering over 2500 square foot.
In brief the property comprises of a large driveway and porch leading into a grand entrance hallway. Spacious lounge and dining room with character bay window and log burner. Connected to this space is a convenient study and a snug. To the rear of the property sits an impressive open plan kitchen diner with large roof lantern, with bi-fold doors looking out onto the landscaped garden. The downstairs is also serviced by a convenient utility room and separate cloakroom. The first floor benefits from four bedrooms with the master boasting a modern ensuite. The family bathroom offers a large separate shower and bath. On the second floor is a large double room and benefits from a spacious ensuite. To the rear of the property sits an immaculate garden, with a sizeable lawn area, private outlook and large patio area.
Location - PARK HILL ROAD is a highly regarded and sought after location within close proximity to Harborne High Street. The High Street offers an array of award winning restaurants, bars and local shops including Waitrose. In addition there are several schools for children of all ages including the well known Harborne Primary School. Excellent transport links are on offer into Birmingham City Centre, along with nearby Queen Elizabeth Hospital and University of Birmingham.
Porch/ Hallway - Entrance porch with opaque glazed front door, leading through internal partially glazed door. Plaster arch and partial coving, two ceiling lights and central heating radiator. Offering stairs to first floor accommodation, access to guest WC, kitchen and lounge.
Kitchen Diner/ Family Room - Being the main focal point of the property, benefitting from a rear extension the kitchen boasts a range fitted base and wall units. The wall units further benefit from downlighters. Substantial kitchen island, with undercounter storage and breakfast bar. The kitchen offers integrated appliances, sink and drainer unit. Ceiling spotlights and ceiling light points, with the large ceiling lantern allowing for natural light to flood the room. Bi-fold doors lead to the rear garden, two windows to the side elevation, stained glass window between the lounge and central heating radiator.
Utility Room - Spacious utility room benefitting from plumbing for utilities, sink and drainer unit and ample storage cupboards. Windows to the rear and side elevation along with rear door. Partially tiled splashbacks, ceiling light point and central heating radiator.
Lounge/ Dining Room - Spacious and welcoming through lounge and dining room, benefitting from many traditional features, including coving and ceiling rose. Feature fireplace with log burner, two central heating radiators and bay window to the front elevation. Offering access to the study.
Study - Formerly the garage to the property, this fantastic multi purpose room has been lovingly converted into a convenient study. Further giving the option to be used as a play room, with window to the front elevation, ceiling spotlights and central heating radiator.
Reception Room - Making for an ideal snug room this additional reception room further gives scope for family living. Window to the side elevation, central heating radiator and ceiling spotlights. Also giving access to the breakfast room.
Guest Wc - Partially tiled guest WC, low level flush WC, vanity unit, ceiling light point and extractor fan.
Landing - Spacious landing giving access to all rooms on the first floor and stairs to second floor accommodation. Carpeted flooring and ceiling spotlights.
Master Bedroom - Extensive master suite, boasting bay window to the front elevation and additional sash window. Carpeted flooring, ceiling light point and central heating radiator. Access to master ensuite.
Ensuite - Floor to ceiling tiled ensuite, boasting large walk in shower cubicle, low level flush WC and floating vanity unit. Opaque glazed window to the front elevation, ceiling spotlights and towel radiator.
Bedroom Three - Double bedroom offering sash window to the rear elevation, carpeted flooring, ceiling light point and central heating radiator.
Bedroom Four - Double bedroom offering sash window to the rear elevation, carpeted flooring, ceiling light point and central heating radiator.
Bedroom Five - Double bedroom offering sash window to the rear elevation, carpeted flooring, ceiling spotlights and central heating radiator.
Bathroom - Spacious and modern family bathroom with floor to ceiling tiling. Large walk in shower cubicle, additional bath, low level flush WC and vanity unit. Ceiling spotlights, towel radiator and two sash windows to the side elevation.
Bedroom Two - Being set on the top floor, an additional spacious bedroom boasting window to the rear elevation, offering extraordinary views. Ceiling spotlights, central heating radiator and ample storage cupboards.
Ensuite - Floor to ceiling tiled bathroom suite, with walk in shower, low level flush WC, vanity unit and towel radiator. Window to the rear elevation and further giving access to a spacious storage room.
Garden - Beautifully landscaped private garden, predominantly laid to lawn and boasting two decked patio areas.
Additional Information - We have been advised the following information, however we advise for you to confirm this with your legal representative as Hadleigh Estate Agents cannot be held accountable.
Tenure - Freehold
EPC - C
Council Tax Band - F

This property is marketed by

Hadleighs Estate Agents & Surveyors - Hadleigh Estate Agents and Surveyors, Birmingham, B17
4.6/5 Rating
(43) reviews
Agent Statistics (Based on 43 Reviews) :