The UK's Largest Customer Review Website for the Property Industry
The UK's Largest Customer Review Website for the Property Industry
Back to Property Listings
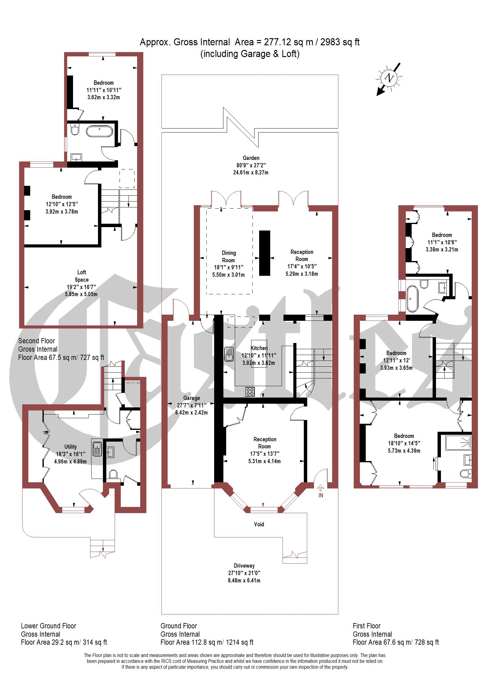
Park Avenue South, N8
A beautifully presented, five-bedroom, end-of-terrace, Edwardian family home with off-street parking and southerly-facing private rear garden (wider than the adjacent homes). Positioned on a much-favoured tree-lined road within close proximity to Crouch End and Muswell Hill Broadways and surrounded by green open spaces.
This magnificent home offers a subtle blend of contemporary and period features and well-proportioned rooms throughout. Further comprising private front-reception, open-planned main living area, incorporating kitchen/dining and reception, two bathrooms, utility room and guest w.c., en-suite, garage and ample loft storage. Benefitting from solar panels, part under-floor heating, water softener and additional front access to lower ground.
An early viewing is highly recommended.

This property is marketed by

Castles Estate Agents (London) - Crouch End, London, N8
5/5 Rating
(939) reviews
Agent Statistics (Based on 939 Reviews) :