The UK's Largest Customer Review Website for the Property Industry
The UK's Largest Customer Review Website for the Property Industry
Back to Property Listings
Parish Lane, Penge
Priced for a quick sale!
Propertyworld proudly presents this two double bedroom Victorian cottage to the sales market. With no onward chain, the property has been professionally modernised and re-furbished to create a deceptively spacious home.
Located close to Penge East train station, with Penge West and Sydenham also easily walkable, it means access to London and beyond, via the tube network is a breeze. There is a wealth of great community restaurants, gastropubs, cafes and independent shops nearby, as well numerous parks and green spaces.
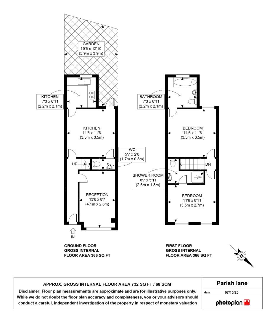
With complete peace of mind, this house is ready for immediate residence, with accommodation providing as follows: Two separate receptions rooms divided by a useful cloakroom, W/c, beautifully complimented with an elegant herringbone-style flooring, upon entrance.
The kitchen offers a a range of crisp white cabinets, ideal for the hustle and bustle of modern living. with views out over the rear garden.
Upstairs on the first floor, there two double bedrooms, however - best of all, the Master bedroom bedroom comes with it's very own en-suite, shower room, W/c, whilst the second bedroom provides an further en-suite bathroom and W/c!
Outside to the rear, sits a lawned and patio garden and there's scope for a bit of creativity too.
In our opinion the property is well presented and with no chain complications, it definitely a property not to be missed!
We enjoyed modernising this house and we feel the work we have put into the house will be enjoyed by the new owner/s. The surrounding area is lovely and great for young couples and family alike.

Agent Statistics (Based on 2753 Reviews) :