The UK's Largest Customer Review Website for the Property Industry
The UK's Largest Customer Review Website for the Property Industry
Back to Property Listings
Paisley Road, Renfrew, PA4
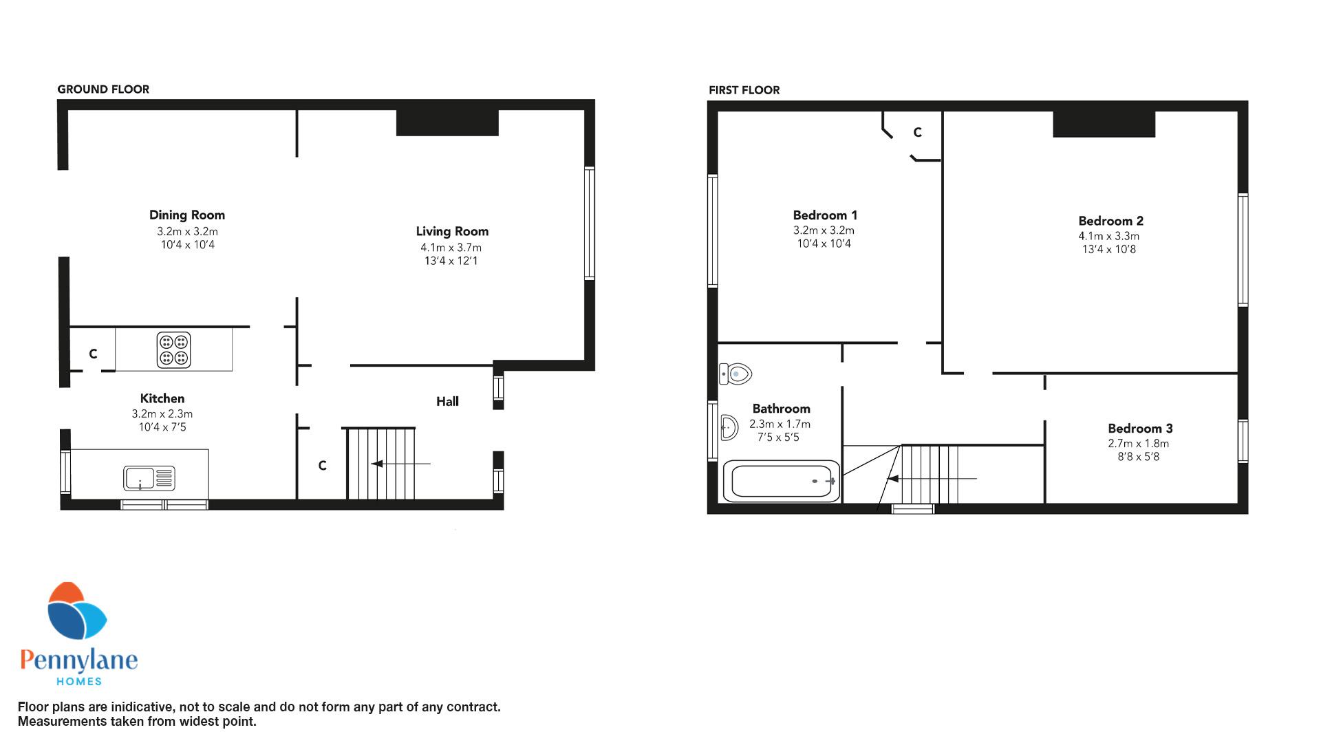
The property is accessed via a welcoming entrance hallway with large under stair storage cupboard. The lounge, to the front of the property has been finished in a traditional style and offers a bright yet cosy living space with large window and beautiful feature fireplace. An archway provides access to the rear dining area with ample space for a large dining table and patio doors, giving access to the rear garden, a perfect space for entertaining.
The kitchen is accessible via the dining room and also from the hallway and comprises a combination of wall and floor mounted units with integrated appliances including oven, four burner gas hob and chimney style hood. A external door within the kitchen provides access to the rear garden and enclosed patio area.
On the upper level, there are two spacious double bedrooms and a smaller single offering fantastic family accommodation. The family bathroom comprises a modern three piece suite with full height wet wall panelling, shower over the bath with glass screen and under sink vanity unit.
The property benefits from gas central heating and double glazing throughout.
Externally there are extensive private garden grounds to the front, side and rear with fence and mature hedge surround on all sides, which is sure to appeal to any family, with a secure area for children to play. The driveway is large enough to accommodate several vehicles.
Paisley Road is a main thoroughfare of Renfrew where all local amenities are readily available within easy reach. The area is served by fantastic public transport links and several local schools are available a short walk from the property.
Notice
Please note we have not tested any apparatus, fixtures, fittings, or services. Interested parties must undertake their own investigation into the working order of these items. All measurements are approximate and photographs provided for guidance only.
Council Tax
Renfrewshire Council, Band D
Utilities
Electric: Mains Supply
Gas: Mains Supply
Water: Mains Supply
Sewerage: Mains Supply
Broadband: Unknown
Telephone: Unknown
Other Items
Heating: Gas Central Heating
Garden/Outside Space: Yes
Parking: Yes
Garage: No

Agent Statistics (Based on 197 Reviews) :