The UK's Largest Customer Review Website for the Property Industry
The UK's Largest Customer Review Website for the Property Industry
Back to Property Listings
Oxford Road, Birkdale, Southport, Merseyside, PR8 2JR
Council tax band: TBC
The Coach House, Birkdale. A Beautifully Presented Four-Bedroom Detached Home.
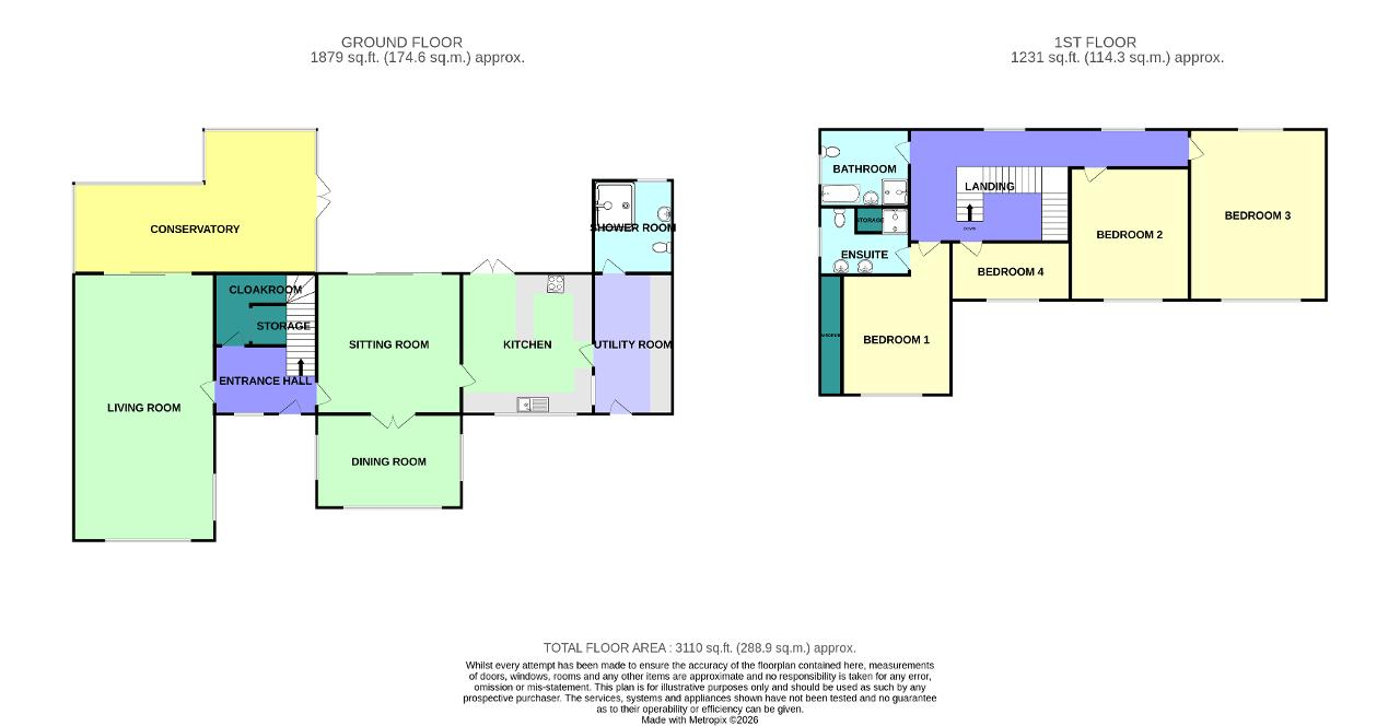
Nestled in a tranquil corner just off Oxford Road in Birkdale, The Coach House is a warm and welcoming four-bedroom detached residence, offering generous living space, character features, and a peaceful setting just moments from the heart of Birkdale Village.
Step through the front door into an inviting reception area that immediately sets the tone for this charming home. To the left, the spacious living room is bathed in natural light from large windows and centred around a characterful fireplace, creating the perfect space to relax and unwind. To the rear, a generous conservatory provides an additional reception area, offering beautiful views across the garden and a seamless connection to the outdoors.
Returning to the reception area and to the right-hand side of the home, you"ll find a cosy sitting room with double doors leading through to the dining room, an ideal layout for both everyday family living and entertaining guests.
The kitchen is a well proportioned and thoughtfully finished space, boasting ample worktop and storage space. Completing the ground floor is a convenient utility room and a stylish shower room, enhancing the practicality of the home.
Ascending the staircase, the bright and airy landing continues the warm and cosy atmosphere found throughout. Bedroom One is a generous retreat, benefitting from a spacious en-suite featuring his and hers sinks and a shower. Bedrooms Two and Three are also well-sized and filled with natural light. Bedroom Four offers versatility and would serve beautifully as a home office, nursery, or guest room. The family bathroom is finished to a good standard, full of character and charm.
Externally, the rear garden provides a tranquil and private setting, with doors leading out from multiple ground-floor rooms, creating a wonderful indoor outdoor flow. To the front, a spacious driveway accommodates multiple vehicles and provides access to the on-drive garage.
Set back from Oxford Road, this lovely home enjoys a peaceful position while remaining just a short drive from the ever popular Birkdale Village, home to a fantastic selection of restaurants, cafés, and independent shops. Excellent transport links offer easy access to both Southport Town Centre and Liverpool City Centre, making The Coach House perfectly placed for convenience as well as calm.
A truly charming family home in a highly sought after location.
Leaving Bailey Estates Birkdale office travel back down through the village and over the train tracks. Continue down and along Weld Road to the traffic lights. Turn left onto Trafalgar Road and then take the third on the right into Oxford Road. Continue over the junction of Waterloo Road. Turn into Oxford Court and you'll find this property in the far corner on the right.
Entrance Hallway
6' 11'' x 8' 10'' (2.13m x 2.71m)
Living Room
15' 8'' x 29' 9'' (4.78m x 9.08m)
Dining Room
10' 5'' x 13' 10'' (3.19m x 4.24m)
Sitting Room
16' 1'' x 15' 8'' (4.91m x 4.78m)
Kitchen
14' 8'' x 14' 0'' (4.49m x 4.27m)
Conservatory
9' 11'' x 24' 1'' (3.03m x 7.35m)
Utility Room
8' 7'' x 8' 9'' (2.62m x 2.69m)
Shower Room
8' 4'' x 7' 10'' (2.56m x 2.4m)
Bedroom 1
13' 4'' x 14' 5'' (4.07m x 4.41m)
Ensuite
12' 0'' x 7' 6'' (3.66m x 2.3m)
Bedroom 2
11' 6'' x 12' 3'' (3.52m x 3.74m)
Bedroom 3
15' 2'' x 14' 10'' (4.64m x 4.53m)
Bedroom 4
4' 1'' x 13' 5'' (1.26m x 4.09m)
Bathroom
11' 10'' x 7' 4'' (3.63m x 2.25m)
Landing
11' 1'' x 31' 2'' (3.38m x 9.52m)

Agent Statistics (Based on 394 Reviews) :