The UK's Largest Customer Review Website for the Property Industry
The UK's Largest Customer Review Website for the Property Industry
Back to Property Listings
Olinda Road, N16
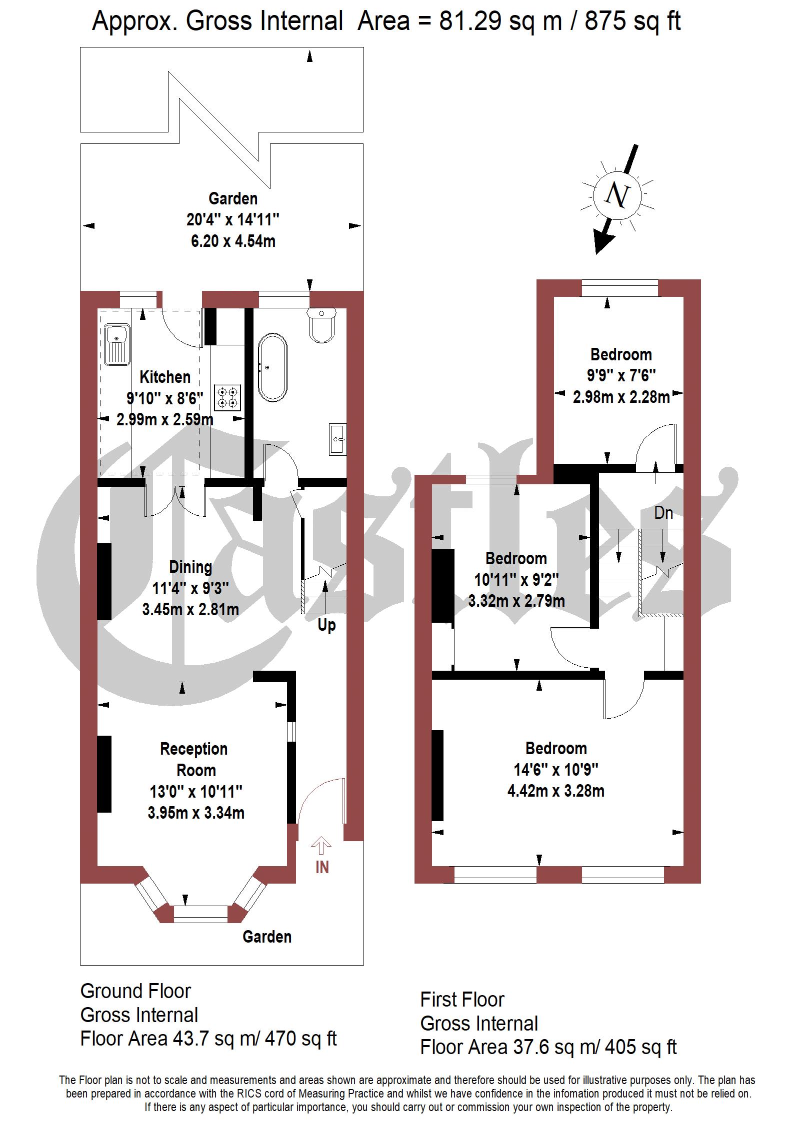
Nestled on this quiet residential tree lined road is this period 3 bedroom family home offers a rare opportunity to unlock the hidden potential of a classic property in a coveted London neighbourhood. Situated in the heart of N16, this home offers the best of Stoke Newington living. With excellent transport links and a vibrant local area, you're just moments away from everything this trendy neighbourhood has to offer. This property offers character in abundance including high ceilings, stripped wooden floorboards and fireplace which adds to an undeniable charm that's hard to replicate. The house features three well-proportioned bedrooms, providing ample space for a growing family also including twin reception rooms with added flexibility and a good size tranquil garden.
Olinda Road is a quiet and friendly residential street close to the Lea Valley Nature Reserve and Walthamstow Wetlands. The canal offers a lively array of activities based out of Springfield Marina, including a rowing club, a canal-side cafe and numerous other water sports. There are multiple green open spaces within walking distance including Springfield Park, Hackney Marshes and Markfield Park. The acclaimed Woodberry Wetlands, Castle Climbing Centre and Clissold Park are also within easy reach.
The family home is close to Stoke Newington with its boutique shops, cafes, restaurants and pubs as well as Clapton and South Tottenham, which have a growing number of excellent cafes, shops and artist studios which is also close nearby.
For transport links the closest station is Stamford Hill Overground Station providing a fast and frequent service into Liverpool Street in one direction and Seven Sisters for connection to the London Underground (Victoria Line). There are numerous convenient bus routes and Manor House and Finsbury Park are a short bus journey away.

This property is marketed by

Castles Estate Agents (London) - Hackney, London, E5
5/5 Rating
(939) reviews
Agent Statistics (Based on 939 Reviews) :