The UK's Largest Customer Review Website for the Property Industry
The UK's Largest Customer Review Website for the Property Industry
Back to Property Listings
Old Lyme Hill, Charmouth, Dorset
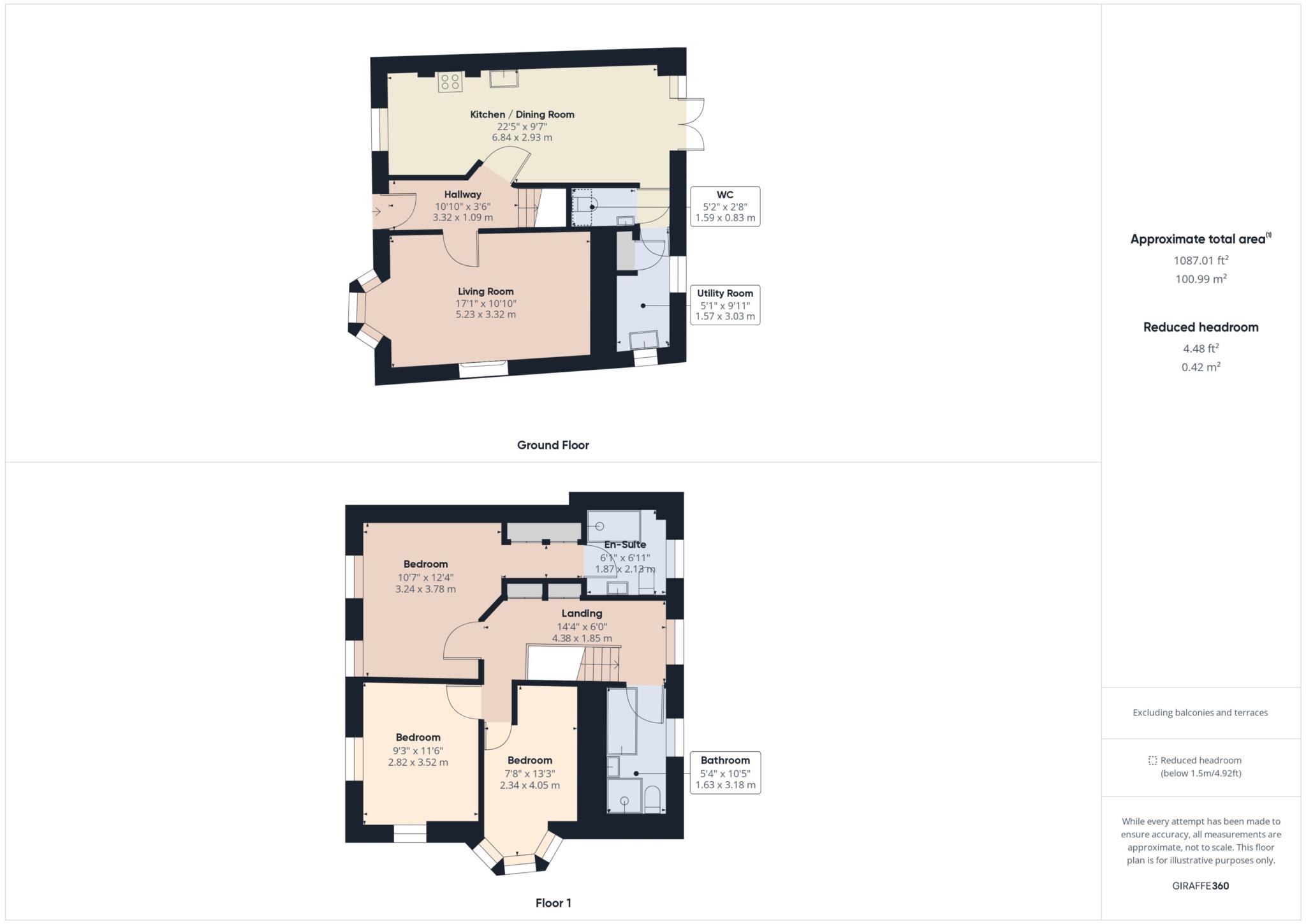
Situated on the western side of the village with views to the sea and towards Golden Cap, this interesting, detached, three bedroom Victorian house is within easy reach of the village amenities and the seafront. Penn Cottage has undergone sympathetic and thorough renovation under the current ownership and now benefits from new gas central heating and boiler, new sash uPVC windows, with new or renovated floorings throughout. There is a fireplace fitted with a wood burner in the sitting room and stripped wood flooring. The spacious kitchen/dining room with French doors opening to the patio garden is a great entertaining space. In addition, there is a utility room and a ground floor WC.
Upstairs is a family bathroom and three bedrooms. The principal bedroom, with view to Stonebarrow and Golden Cap, has built-in wardrobes and en-suite shower room, with a large walk-in shower, w.c. and wash hand basin. From the spacious landing, with further built-in cupboards, is the second double bedroom with coastal views and a large single room to the rear with a bay window, also with lovely views.
Outside, there is a paved patio garden with part of the old village wall forming the rear boundary, offering secure and private space for entertaining and sitting out. To one side of the house is a private driveway providing parking for 1-2 cars, depending on size.
Famous for fossil hunting and forming part of the Jurassic Coast, Charmouth is situated between Lyme Regis and Bridport in West Dorset. The village has a good range of pubs, small shops and cafes and remains a popular tourist destination as well as a desirable place to live. Charmouth has a long beach and gently shelving waters which make it ideal for swimming. The village is very pretty with a wide range of property styles, many of them period houses and cottages. The coastal path runs through the village providing good walking with stunning scenery for the active. There is a regular bus service which serves the coastal towns as well as providing services to Axminster, where there are regular rail services to Waterloo and Exeter. The nearest secondary school is the highly regarding Woodroffe School at Lyme Regis in whose catchment area, Charmouth lies. A little further afield (about 12 miles) is the Colyton Grammar School, which consistently appears in the top ten Grammar schools in the country.
SERVICES
All mains services are connected. Gas fired central heating.
COUNCIL TAX
Dorset Council. Business rates apply. Not currently rated for domestic rates.
BROADBAND
Broadband availability at this location can be checked through: https://www.openreach.com/broadband-network/fibre-availability
MOBILE
Mobile coverage can be checked through: https://checker.ofcom.org.uk/en-gb/mobile-coverage
FLOOD RISK
Flood risk Information can be checked through the following: https://www.gov.uk/check-long-term-flood-risk
Notice
Please note we have not tested any apparatus, fixtures, fittings, or services. Interested parties must undertake their own investigation into the working order of these items. All measurements are approximate and photographs provided for guidance only.
Utilities
Electric: Mains Supply
Gas: Mains Supply
Water: Mains Supply
Sewerage: Mains Supply
Broadband: None
Telephone: None
Other Items
Heating: Gas Central Heating
Garden/Outside Space: Yes
Parking: Yes
Garage: No

Agent Statistics (Based on 21 Reviews) :