The UK's Largest Customer Review Website for the Property Industry
The UK's Largest Customer Review Website for the Property Industry
Back to Property Listings
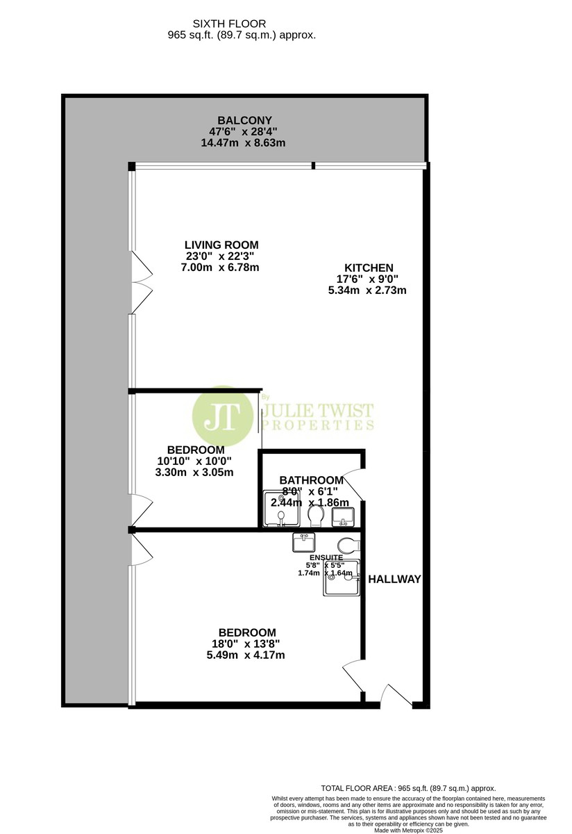
No1 Deansgate, Manchester
Julie Twist Properties welcome this wonderful apartment, located on the 6th floor of the sought after No1 Deansgate development, to the market. The bright and spacious living and kitchen area is complimented by floor to ceiling windows and an internal balcony which spans the full length and width of the apartment. This feature allows floods of natural light to fill the space and incredible panoramic views of Manchester City Centre. The kitchen has been tastefully designed by Euromobil and is fitted with top of the range integrated appliances, by Siemens, including washer dryer and a hot water tap, by Quooker. The living area is extremely spacious and also benefits from an integrated bar, complete with a wine fridge. There is one deluxe suite and a further double bedroom, all of which have access to another large internal balcony running the entire length and width of the apartment. All sanitary throughout the property is bespoke, designed by Artelinea & Crosswater.
Details - DESCRIPTION Julie Twist Properties welcome this wonderful apartment, located on the 6th floor of the sought after No1 Deansgate development, to the market.
The bright and spacious living and kitchen area is complimented by floor to ceiling windows and an internal balcony which spans the full length and width of the apartment. This feature allows floods of natural light to fill the space and incredible panoramic views of Manchester City Centre.
The kitchen has been tastefully designed by Euromobil and is fitted with top of the range integrated appliances, by Siemens, including washer dryer and a hot water tap, by Quooker.
The living area is extremely spacious and also benefits from an integrated bar, complete with a wine fridge. There is one deluxe suite and a further double bedroom, all of which have access to another large internal balcony running the entire length and width of the apartment. All sanitary throughout the property is bespoke, designed by Artelinea & Crosswater.
No1 Deansgate is one of Manchester's most sought after developments as it has a prime central location, residents have the right to manage and provides a 24-hour concierge. Residents of No1 Deansgate can enjoy the pinnacle of city living as they will have access to a vast array of shops, bars, restaurants and cafes on their doorstep.
GENERAL Rental Yield: 7% (assumed rental price of £3,250 pcm)
Service Charge: £6078.96 per annum
Ground Rent: £354.61 per annum
Lease: 150 Years less 10 days from 1st January 1998
Internal Floor Area: 965 square feet / 89 square meters
Council Tax Band: F / £2,704.83
Management Company: Bloc Property Management

This property is marketed by

Julie Twist Properties - Head office, Manchester, M3
4.6/5 Rating
(722) reviews
Agent Statistics (Based on 722 Reviews) :