The UK's Largest Customer Review Website for the Property Industry
The UK's Largest Customer Review Website for the Property Industry
Back to Property Listings
New Cut Lane, Birkdale, Southport, Merseyside, PR8 3DW
Council tax band: TBC
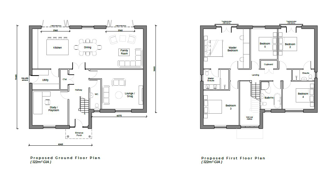
Introducing a rare opportunity to invest in a stunning, individual property set in a semi-rural location off New Cut Lane, Southport. This exceptional plot comes with approved plans for a luxurious 5-bedroom detached home designed for contemporary living (275sq mtr inc Garage). To continue the modern aesthetic, there will be a soft landscaped and hard landscaped (sections) garden which will feature a combination of paved patios and pathways, perfect for outdoor entertaining.
Imagine crafting your perfect residence in a tranquil setting, where you can enjoy the best of both countryside charm and urban convenience. This is your chance to create a bespoke home tailored to your needs and lifestyle.
The proposed design features an inviting entrance hallway leading into two spacious reception lounges, perfect for both relaxation and entertaining. The heart of the home will be an open-plan family kitchen and dining area, seamlessly blending functionality with style. With large doors opening onto a generously sized garden, you"ll be able to bring the outdoors in, creating a wonderful space for family gatherings and summer barbecues.
This unique property will boast five well-appointed bedrooms, offering plenty of space for family, guests, or even a home office. Each bedroom is designed with comfort and modern aesthetics in mind, ensuring a sanctuary for relaxation. The plans also include a garage, providing convenience and additional storage space, an essential feature for any family home.
Nestled away from the hustle and bustle, this plot offers a serene lifestyle without compromising on accessibility. The semi-rural setting allows you to enjoy the beauty of nature while being just a short drive from Southport"s vibrant amenities, including shops, schools, and recreational facilities. This location is ideal for families seeking a peaceful retreat that"s still connected to urban conveniences.
With all plans in place and the freedom to customize your future home, this is an unparalleled investment opportunity. Don"t miss your chance to secure this unique property and bring your vision to life. Contact us today to learn more about this exciting opportunity and to arrange a viewing of this luxurious plot!
Leave Bailey Estates Birkdale office and head south on Liverpool Road for approximately 1.25 miles. When you arrive at the traffic light junction with Halsall Road/Arundel Road, take a left into Halsall Road and continue down and over the next traffic lights into New Cut Lane. This secluded property is situated on the right-hand side, easily identified by a Bailey Estates 'FOR SALE' board.

Agent Statistics (Based on 394 Reviews) :