The UK's Largest Customer Review Website for the Property Industry
The UK's Largest Customer Review Website for the Property Industry
Back to Property Listings
Neptune Square, Ipswich
FABULOUS DUPLEX PENTHOUSE in the prominent Neptune Square development in the heart of Ipswich Waterfront. Four bedrooms, three bathrooms, two South facing balconies with glorious views overlooking the Harbour, and TWO undercover secure parking spaces.
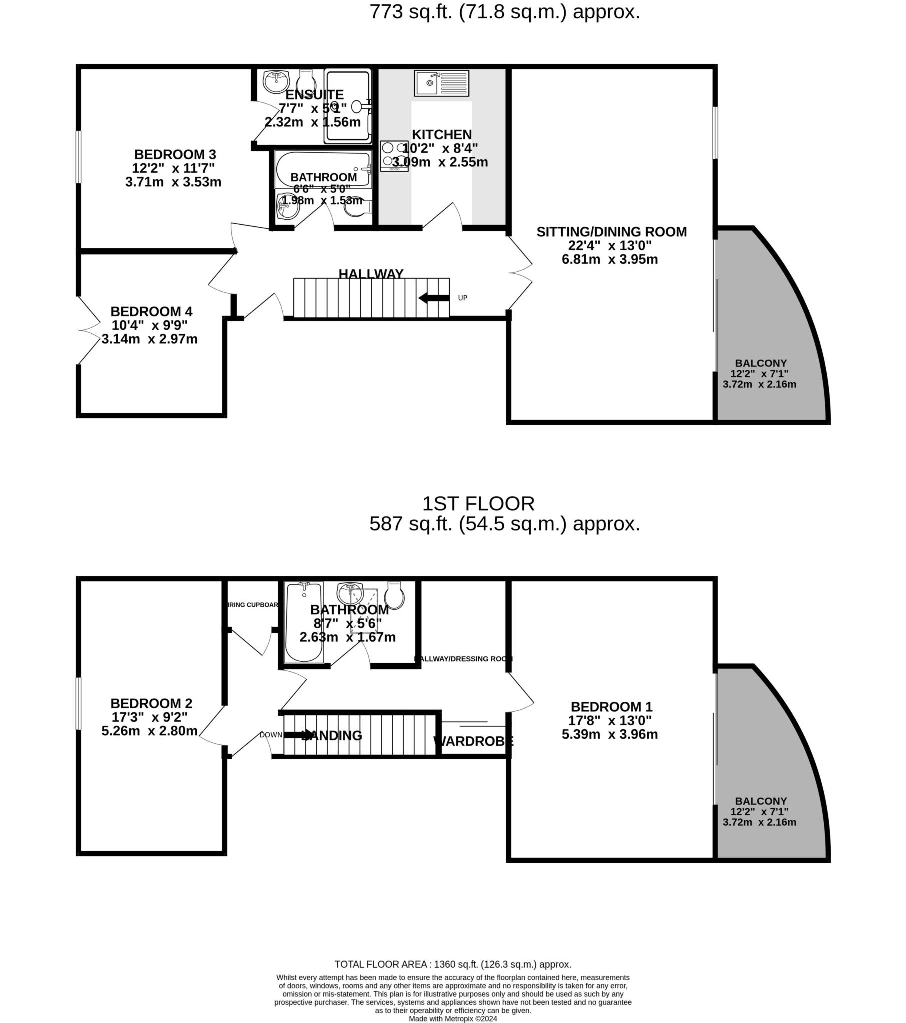
Located on the fourth floor, the property comprises of entrance hallway with all rooms leading off, and stairs leading to upper floor. Bedrooms three and four can be found on the lower level, both with carpet flooring and windows to the rear aspect. The fourth bedroom has Juliette balcony and would make an ideal home office. The third bedroom also benefits from ensuite shower room with toilet, wash basin and heated towel rail.
The main bathroom comprises of panel bath with shower over, wash basin toilet and heated towel rail. Along the hallway is a separate kitchen with roll top work surfaces to three aspects and fully integrated appliances which includes fridge freezer, electric oven and hob, dishwasher and washing machine.
Double doors lead through in to huge the living area with dark wood effect laminate flooring, window to front aspect and sliding patio doors leading out on to the lower balcony area with STUNNING SOUTH FACING MARINA VIEWS.
On the top floor you will find a small landing area with airing and storage cupboard. The second bedroom is carpeted with windows to the rear aspect. On the landing a separate door leads to a private hallway where there is a third bathroom with shower over bath, wash basin, toilet, vanity cupboards, heated towel rail and skylight window. This hallway opens out in to a dressing area with built in mirrored wardrobes, then through to the huge master bedroom with its own PRIVATE BALCONY and fantastic panoramic views of Ipswich waterfront.
The property further benefits from having two secure undercover car parking spaces, electric heating, double glazing, lift access from (first floor only) onsite visitor parking, well maintained communal areas.
In essence this property offers fantastic living space and occupies arguably the best location on Ipswich waterfront.
Sitting/Dining Room - 22'4" (6.81m) x 13'0" (3.96m)
Kitchen - 10'2" (3.1m) x 8'4" (2.54m)
Lower Floor Bathroom - 6'6" (1.98m) x 5'0" (1.52m)
Bedroom 4 - 10'4" (3.15m) x 9'9" (2.97m)
Bedroom 3 - 12'2" (3.71m) x 11'7" (3.53m)
Ensuite - 7'7" (2.31m) x 5'1" (1.55m)
Bedroom 2 - 17'3" (5.26m) x 9'2" (2.79m)
Upper Floor Bathroom - 8'7" (2.62m) x 5'6" (1.68m)
Bedroom 1 - 17'8" (5.38m) x 13'0" (3.96m)
Notice
Please note we have not tested any apparatus, fixtures, fittings, or services. Interested parties must undertake their own investigation into the working order of these items. All measurements are approximate and photographs provided for guidance only.
Council Tax
Ipswich Borough Council, Band F
Ground Rent
?150.00 Yearly
Service Charge
?4,241.50 Yearly
Lease Length
100 Years
Utilities
Electric: Mains Supply
Gas: None
Water: Mains Supply
Sewerage: Mains Supply
Broadband: FTTC
Telephone: Landline
Other Items
Heating: Electric Heaters
Garden/Outside Space: No
Parking: Yes
Garage: No

Agent Statistics (Based on 4 Reviews) :