The UK's Largest Customer Review Website for the Property Industry
The UK's Largest Customer Review Website for the Property Industry
Back to Property Listings
Nelson Road, Caversham
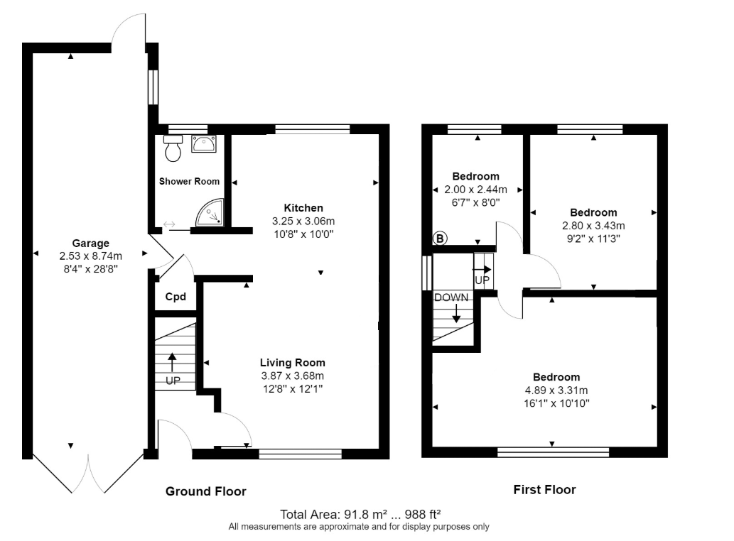
Masons are proud to offer to the market this well presented 3 bedroom semi-detached house situated within a mile of Caversham and Reading centres along with Reading mainline station. The property has undergone recent improvements by the current owners with the accommodation comprising of a 12ft living room which is open plan to the 10ft modern kitchen, a modern downstairs shower room, a 28ft garage, a 16ft master bedroom, an 11ft second bedroom and an 8ft third bedroom. Further benefits include driveway parking, scope for extension subject to the necessary planning consents, gas central heating, UPVC double glazing and a well maintained rear garden. VIEWING RECOMMENDED.
Front door opens into the hallway which boasts stairs to the first floor landing and a door to...
Living Room:
12`8" x 12`1"
Double glazed with a front aspect and an opening onto the kitchen.
Kitchen:
10`8" x 10`
Double glazed with a rear aspect, fitted with a range of modern eye and base level units with roll edge tops, sink with drainer, oven, hob with extractor above, integrated fridge/freezer and dishwasher.
The hallway from the kitchen boasts an under stairs storage cupboard and doors to...
Shower Room:
Double glazed with a rear aspect, fitted with a corner shower, low level WC and hand wash basin.
Garage:
28`8" x 8`4"
Fitted with double doors, a door onto the garden and a window with a side aspect.
The first floor landing is double glazed with a side aspect and has doors to...
Master Bedroom:
16`1" x 10`10"
Double glazed with a front aspect.
Bedroom 2:
9`2" x 11`3"
Double glazed with a rear aspect.
Bedroom 3:
6`7" x 8`
Double glazed with a rear aspect.
Outside:
To the rear the garden is mainly laid to lawn but boasts a large bed, mature trees, and an area of shingle all of which is enclosed by timber fencing and mature hedges. To the front the property boasts driveway parking, access to the garage and a small front garden.
Notice
Whilst every care has been taken in the preparation of these particulars, and they are believed to be correct, they are not warranted and intending purchasers/lessees should satisfy themselves as to the correctness of the information given.Please note we have not tested any apparatus, fixtures, fittings, or services. Interested parties must undertake their own investigation into the working order of these items. All measurements are approximate and photographs provided for guidance only.
Council Tax
Reading Borough Council, Band D
Utilities
Electric: Mains Supply
Gas: Mains Supply
Water: Mains Supply
Sewerage: Mains Supply
Broadband: Unknown
Telephone: Unknown
Other Items
Heating: Gas Central Heating
Garden/Outside Space: Yes
Parking: Yes
Garage: Yes

Agent Statistics (Based on 72 Reviews) :