The UK's Largest Customer Review Website for the Property Industry
The UK's Largest Customer Review Website for the Property Industry
Back to Property Listings
Nelson Drive, Exmouth
An excellent opportunity to acquire this 3 bedroom, ex local authority home, benefiting from off road parking for 2 motor vehicles and a Southerly facing rear garden.
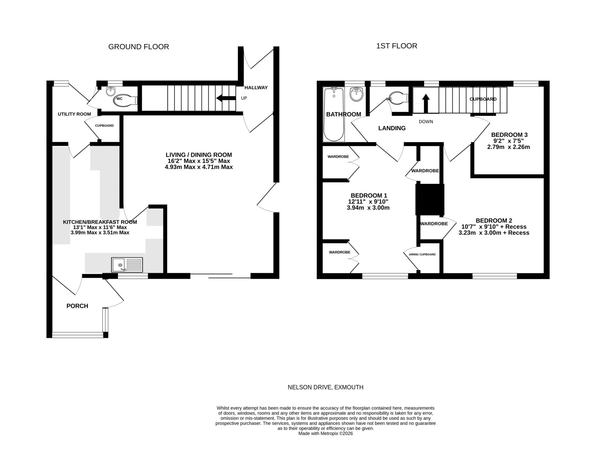
The property is equipped with gas central heating (via a combi boiler) and uPVC double glazing (where stated). The ground floor accommodation comprises a cloakroom, a spacious living/dining room, a kitchen/breakfast room, and a separate utility area.
To the first floor, there are 3 well proportioned bedrooms, all offering built - in storage, along with a family bathroom and a separate WC.
This property would make an ideal family home.
Accommodation
Ground Floor
uPVC double glazed front entrance door leading to:
Hall
Staircase rising to first floor. Radiator. Wall mounted central heating thermostat. Door leading to:
Living / Dining Room - 16'2" (4.93m) Max x 15'5" (4.7m) Max
An L shaped room. Double glazed sliding patio doors leading to rear garden. Under stairs storage cupboard. Radiator. Arch separating living and dining areas. Door leading to:
Kitchen / Breakfast Room - 13'1" (3.99m) Max x 11'6" (3.51m) Max
uPVC double glazed window to rear. Door leading to rear porch. Range of cupboard and drawer storage units with roll edged work surfaces, breakfast bar and tiled splashback`s. Stainless steel single sink and drainer unit with mixer tap. Gas and electric cooker points. Radiator. Space and plumbing for dishwasher. Integrated fridge. Door leading to:
Utility
uPVC double glazed external door to front. Space and plumbing for washing machine. Useful cloaks storage cupboard. Wall mounted storage cupboards. Cupboard housing the electric meter and trip switch fuse box. Door leading to:
Cloakroom
Obscure glazed window to front. White suite of low level WC and wall mounted wash hand basin. Radiator.
Rear Porch
External door to side leading to rear garden. Windows to rear and side on brick wall. Power connected.
First Floor
Landing
uPVC double glazed window to front. Access to insulated and part boarded loft space via trap door with ladder. Radiator. Smoke alarm. Doors leading to:
Bedroom 1 - 12'11" (3.94m) x 9'10" (3m)
uPVC double glazed window to rear with views over the Maer Valley. Good range of fitted wardrobes and cupboard storage units. Further built in wardrobe. Airing cupboard housing the gas fire Combi boiler that supplies the central heating and domestic hot water. Radiator.
Bedroom 2 - 10'7" (3.23m) x 9'10" (3m) Plus Recess
uPVC double glazed window to rear with views over the Maer Valley. Built - in wardrobe. Radiator.
Bedroom 3 - 9'2" (2.79m) x 7'5" (2.26m)
uPVC double glazed window to front. Useful bulkhead storage cupboard. Radiator.
Bathroom
Obscure uPVC double glazed window to front. Coloured suite of panelled bath with electric shower unit over. Pedestal wash hand basin. Fully tiled walls. Radiator.
Cloakroom
Obscure uPVC double glazed window to front. Coloured suite of low level WC.
Externally
Front Garden / Parking
To the front of the property is a brick paved driveway that provides side by side off road parking for 2 motor vehicles.Shrub and herbaceous borders. Cold water tap. Gas meter box.
Southerly Facing Rear Garden
The property enjoys an enclosed and good sized, Southerly facing Rear Garden which has a patio area immediately adjacent the property being an ideal spot for outdoor dining and sitting during the fine weather. A pathway then leads down to remainder of the gardens which are laid mainly to lawn with raised shrub beds that provide year round interest and colour. Timber panelled fence boundaries. Outside water tap.
Tenure
The property is FREEHOLD
Services
All main services are connected. The property is on a water meter. Council Tax Band B.
Mortgage Assistance
We are pleased to recommend Meredith Morgan Taylor, who would be pleased to help no matter which estate agent you finally buy through. For a free initial chat please contact us on 01395 222350 to arrange an appointment
Your home may be repossessed if you do not keep up repayments on your mortgage
Meredith Morgan Taylor Ltd is an appointed representative of The Openwork Partnership, a trading style of Openwork Ltd which is authorised and regulated by the Financial Conduct Authority (FCA).
Agents Note
These are draft particulars and are awaiting vendors verification
Directions
From our prominent Town Centre office, proceed out of town along Salterton Road. After passing through the first set of traffic lights, at the next set of traffic lights, turn right onto Littleham Road. Proceed over the mini roundabout, then take the next left onto Magnolia Avenue and right again onto Nelson Drive. The property will be found on the right hand side, clearly identified by our For Sale board.
what3words /// nerve.picked.handy
Notice
Please note we have not tested any apparatus, fixtures, fittings, or services. Interested parties must undertake their own investigation into the working order of these items. All measurements are approximate and photographs provided for guidance only.
Utilities
Electric: Mains Supply
Gas: Mains Supply
Water: Mains Supply
Sewerage: Mains Supply
Broadband: Unknown
Telephone: Unknown
Other Items
Heating: Gas Central Heating
Garden/Outside Space: Yes
Parking: Yes
Garage: No

Agent Statistics (Based on 744 Reviews) :