The UK's Largest Customer Review Website for the Property Industry
The UK's Largest Customer Review Website for the Property Industry
Back to Property Listings
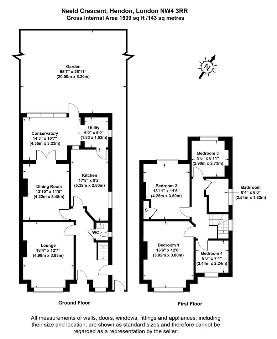
Neeld Crescent, Hendon
Fantastic opportunity to purchase this four bedroom semi-detached house in the heart of Hendon Central in a very desirable road. The property is perfect for a family looking to take on a project to create their ideal home or investors as it has huge potential to extend STPP.
The house is set in a tranquil setting in an exceptionally convenient location close to schools, transport, parks and shops. Hendon Central Tube Station (Northern Line) is also very close proximity.

Agent Statistics (Based on 289 Reviews) :