The UK's Largest Customer Review Website for the Property Industry
The UK's Largest Customer Review Website for the Property Industry
Back to Property Listings
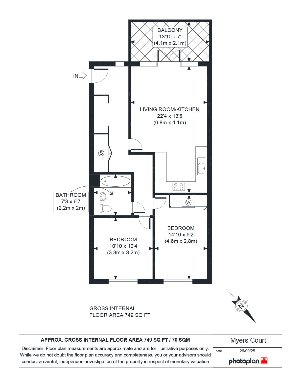
Myers Court, Reynard Way, Brentford TW8 - 50% Shared Ownership.
50% Shared Ownership. This well presented and spacious two double bedroom apartment situated in Myers Court, nicely positioned in the ever-popular sophisticated development of Reynard Way; boasting landscaped communal gardens providing a calm, green oasis on the bustling Brentford/Northfields borders.
The accommodation comprises of a bright reception room; larger than the average family living space, flooded with light and flowing seamlessly onto a private balcony. At the other end, is an open plan, high specification well-equipped kitchen with integrated appliances.
Two comfortable double bedrooms (with wardrobe in the main) and a stylish sleek modern bathroom. Other benefits include a wide entrance hallway with an abundance of storage, double glazed windows and French doors, wood flooring in the living area and its own private allocated surface parking space. A communal bike storage area is also provided, if you want to leave the car at home.
Northfields and Brentford are both vibrant areas. Enjoy a hearty supper at the local landmark `Globe` pub, or indulge in a choice of restaurants and cafes nearby. These areas have excellent transport links offering easy connectivity to Heathrow Airport and to Central London. Schools and nurseries are also in abundance in the area and are consider by the locals, to be of high caliber.
This apartment would make an ideal first-time purchase or rental investment. Don`t miss the excellent opportunity to own this fabulous apartment in this prime West London location.
what3words /// spite.spicy.manage
Notice
Please note we have not tested any apparatus, fixtures, fittings, or services. Interested parties must undertake their own investigation into the working order of these items. All measurements are approximate and photographs provided for guidance only.
Council Tax
London Borough Of Hounslow, Band D
Ground Rent
?29.16 Monthly
Service Charge
?195.65 Monthly
Lease Length
108 Years
Utilities
Electric: Mains Supply
Gas: Unknown
Water: Mains Supply
Sewerage: Mains Supply
Broadband: Unknown
Telephone: Unknown
Other Items
Heating: Not Specified
Garden/Outside Space: Yes
Parking: Yes
Garage: No

Agent Statistics (Based on 1 Reviews) :