The UK's Largest Customer Review Website for the Property Industry
The UK's Largest Customer Review Website for the Property Industry
Back to Property Listings
Muscott Grove, Harborne, Birmingham, B17
Hadleigh Estate Agents are delighted to offer this three bedroom semi detached house for sale. Located on Muscott Grove, a quiet cul-de-sac conveniently located for easy access into Harborne High Street. Harborne offers an array of bars, restaurants, local leisure facilities and nearby schools. Excellent transport links are on offer into Birmingham City Centre, nearby Queen Elizabeth Hospital and University of Birmingham.
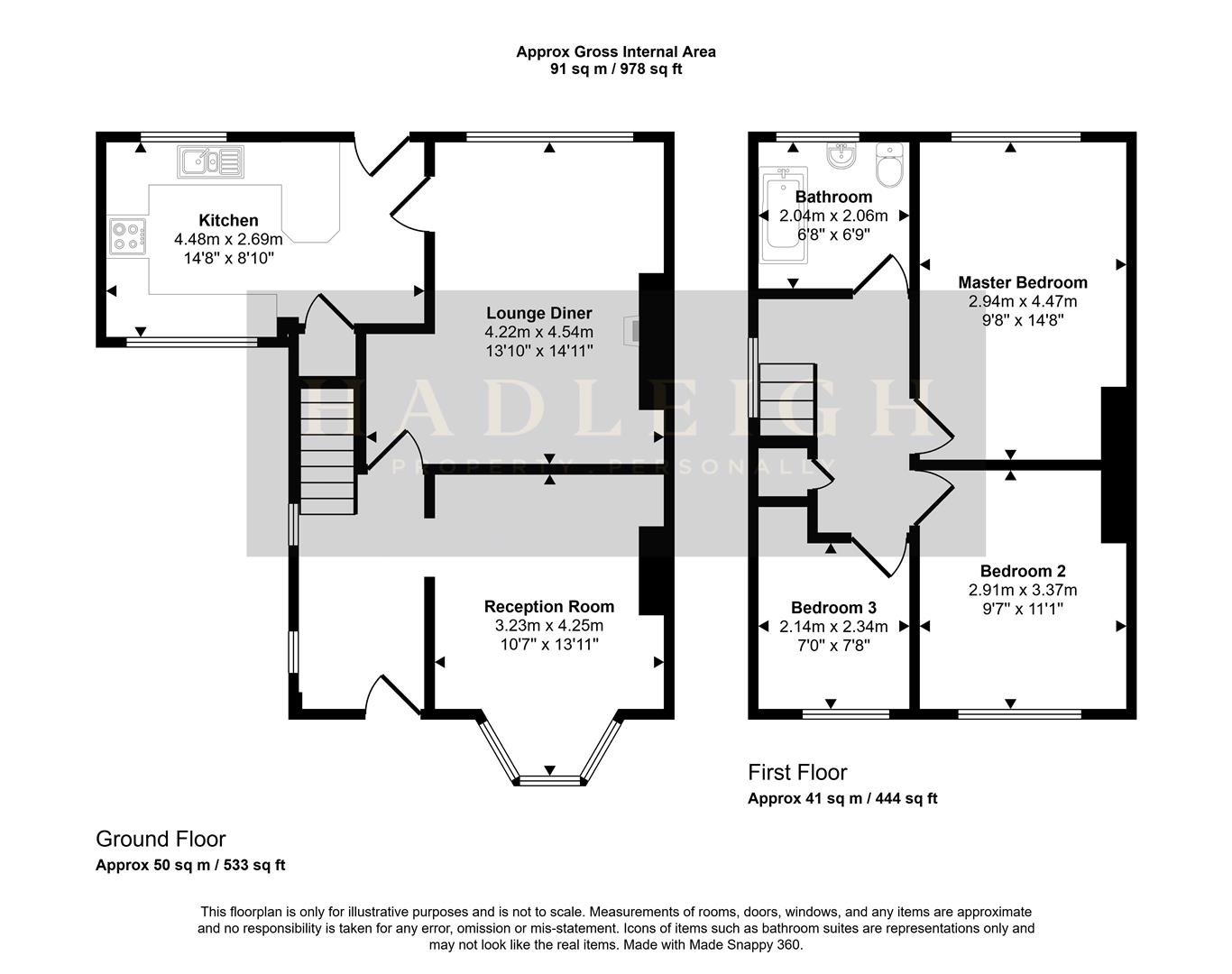
The property comprises of fore garden and driveway, allowing for potential to expand the parking available. Entrance hallway leads through to the front reception room and rear lounge diner. Fitted kitchen and spacious rear garden. The first floor offers three spacious bedrooms, family bathroom and loft access.
Entrance Hallway - UPVC obscure glazed front door, two windows to the side elevation and central heating radiator. Ceiling light point, storage cupboards and stairs to first floor.
Reception Room - Bay window to the front elevation, electric fire, ceiling light point and vertical central heating radiator.
Lounge Diner - Featured brick wall, window to the rear elevation and central heating radiator. Internal glazed door from the hallway, access to the kitchen and ceiling light point.
Kitchen Diner - Spacious kitchen diner with windows to the front and rear elevation, a range of base and wall units with plumbing for utilities. Access to rear garden, along with access to the front. Ceiling light point and housing boiler.
Landing - Window to the side elevation, loft access and airing cupboard.
Master Bedroom - Window to rear elevation, carpeted flooring, central heating radiator and ceiling light point.
Bedroom Two - Window to front elevation, carpeted flooring, central heating radiator and ceiling light point.
Bedroom Three - Window to front elevation, carpeted flooring, central heating radiator and ceiling light point.
Bathroom - Bath with shower over, vanity unit and low level flush WC with hidden cistern. Obscure glazed window to the rear elevation, central heating radiator, ceiling light point and partially tiled walls.
Garden - Large private garden with decked patio area, predominantly laid to lawn and garden shed.
General Information - We have been advised the following information, however we advise for you to confirm this with your legal representative as Hadleigh Estate Agents cannot be held accountable.
Tenure - Freehold
EPC - D
Council Tax Band - C

This property is marketed by

Hadleighs Estate Agents & Surveyors - Hadleigh Estate Agents and Surveyors, Birmingham, B17
4.6/5 Rating
(43) reviews
Agent Statistics (Based on 43 Reviews) :