The UK's Largest Customer Review Website for the Property Industry
The UK's Largest Customer Review Website for the Property Industry
Back to Property Listings
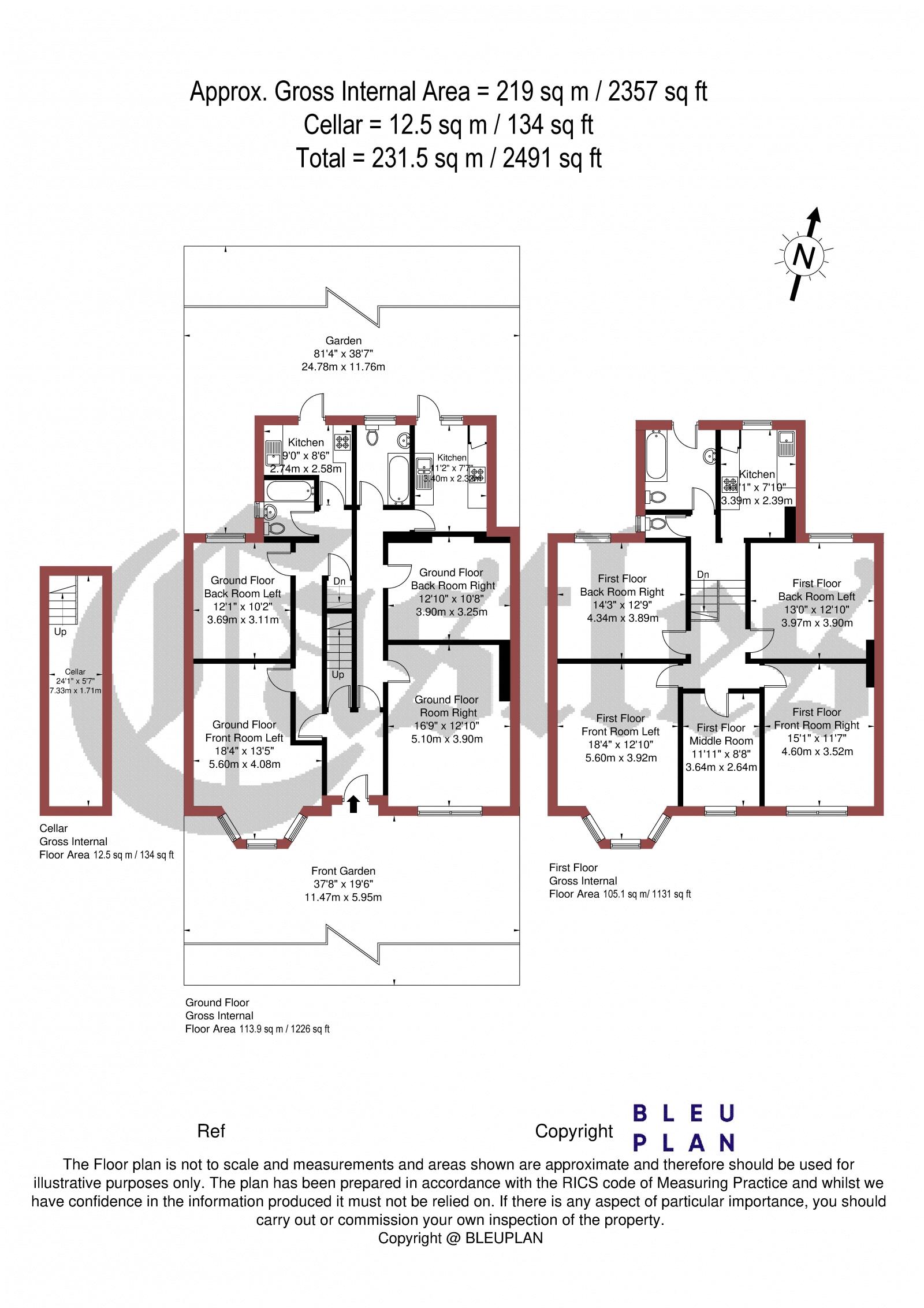
Mount View Road, N4
A wonderful opportunity to purchase this imposing double-fronted, semi-detached, period residence, ideally positioned on a much-favoured tree-lined road. The property is currently arranged as three unofficial flats (2 x 1 bedroom and 1 x 4 bedroom). The accommodation offers the potential for a substantial five/six-bedroom family home with a 80ft plus rear garden and side access.
Owing to the current arrangement, single dwelling residential mortgages may be hard to acquire. We strongly advise checking with your mortgage provider prior to. Cash buyers or those with development loans are preferred.
Mount View Road is ideally positioned, equidistantly between Crouch End Broadway and Harringay Station with direct line to Finsbury Park and Moorgate.
Offered with no onward chain.
Local Authority: Haringey
Council Tax band: B (based upon a one bedroom flat)

This property is marketed by

Castles Estate Agents (London) - Crouch End, London, N8
5/5 Rating
(939) reviews
Agent Statistics (Based on 939 Reviews) :