The UK's Largest Customer Review Website for the Property Industry
The UK's Largest Customer Review Website for the Property Industry
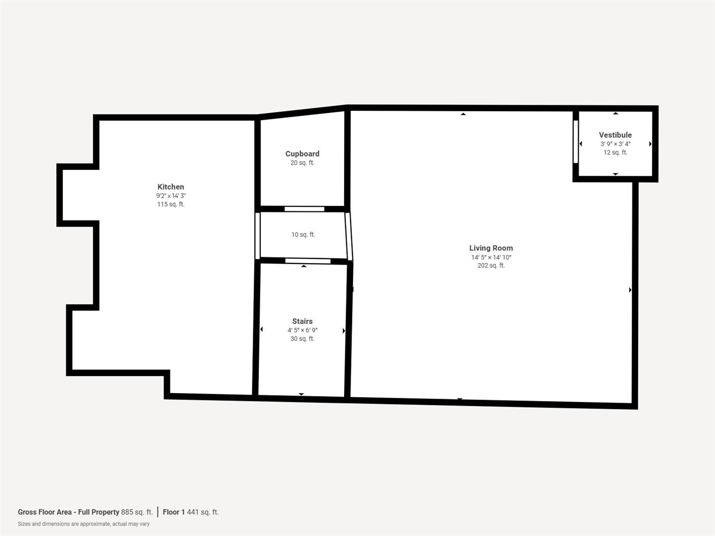
Back to Property Listings
Moss Gap, Darwen
Duffins Estate Agents are thrilled to introduce this charming stone cottage, located in the picturesque row known as Moss Gap in Bull Hill, Darwen. Nestled in a serene setting, the property boasts breathtaking views from both the front and back.
Approaching the home along a stone-flagged path, you're welcomed into an entrance porch-ideal for coats and shoes. This leads into the lounge, a beautifully designed living area featuring an original beamed ceiling and exposed stone chimney breast, complete with a multi-fuel wood burner that promises warmth during winter. The exquisite décor, enhanced by herringbone flooring, adds to the inviting atmosphere.
At the back of the house is a modern fitted kitchen that complements the overall design. This spacious area features light grey wall and base units paired with elegant oak worktops. It's equipped with an inset Belfast sink, five-ring gas hob, and double oven, all set against a neutral décor and herringbone flooring. To the rear is a charming yard with steps leading to the garden.
Upstairs, you'll find a double bedroom at the front of the property, featuring exposed floorboards and contemporary décor that creates a serene atmosphere. Breathtaking views enhance the room's appeal, while the front wall showcases beautiful, exposed stone.
The family bathroom features a modern four-piece suite in white, including a WC, pedestal hand wash basin, and an exquisite roll-top bath with a separate shower. The walls are partially tiled, complemented by a patterned tiled floor.
Bedroom two offers another generously sized space with neutral décor and carpeted flooring. The cottage retains its original features, with an interior design that is impeccably executed.
The rear gardens are truly remarkable, providing stunning views of the countryside and include an extra piece of land leased from the local council for an annual fee of £50.
This beautiful home has been meticulously maintained by its current owners and must be viewed.
External -
Living Room -
Kitchen -
Master Bedroom -
Hallway -
Bedroom Two -
Bathroom -
Gardens -
Aerial View -

Agent Statistics (Based on 13 Reviews) :