The UK's Largest Customer Review Website for the Property Industry
The UK's Largest Customer Review Website for the Property Industry
Back to Property Listings
Mosquito Crescent, St. Eval, Wadebridge
An excellent opportunity to purchase this two-bedroom mid terrace home, situated in the sought-after village of St Eval. The property enjoys a pleasant outlook across open playing fields and offers light, well-proportioned accommodation together with driveway parking and enclosed gardens. While requiring some updating, it presents an ideal first-time buyer home with plenty of potential.
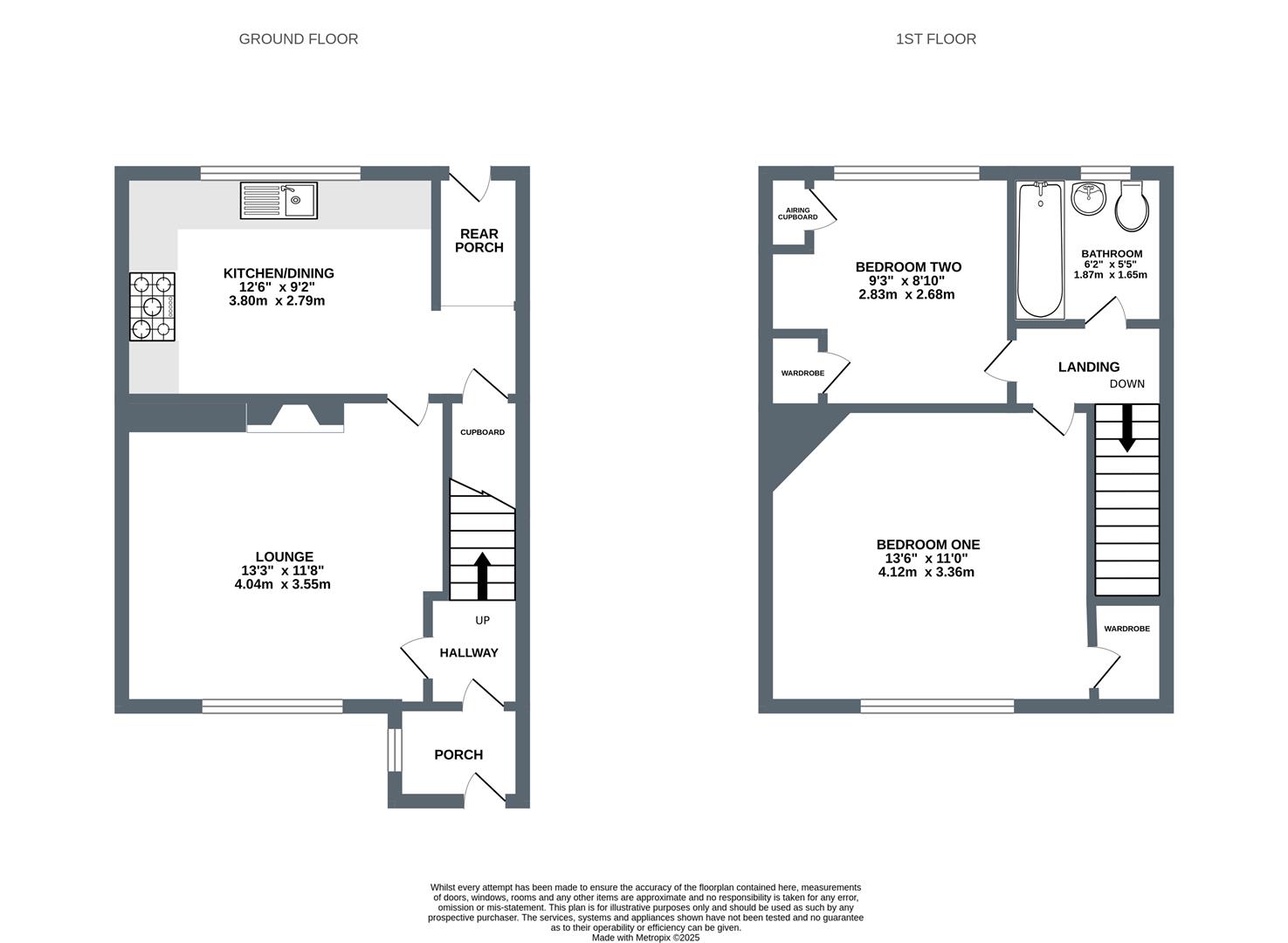
The Property - The property is accessed via a side pathway leading through the front garden and into an entrance porch. There is also access from the rear garden.
The ground floor features a lounge with a front-facing window overlooking the garden, there is also a redundant fireplace currently housing an electric fire, with potential to be reinstated. The kitchen/dining area, fitted with a range of wall and base units, ample worktop space, and tiled splashbacks, a porch provides access out into the garden and to the communal parking.
On the first floor are two bedrooms, both beneifitting from built-in storage, bedroom one overlooks the enclosed garden, whilst bedroom two looks out onto the playing field. A family bathroom completes the accomodation. The loft space offers further scope for conversion (subject to necessary planning and consents), as many neighbouring properties have successfully extended in this way.
Externally - The front garden is enclosed and landscaped with gravel, and boasts a storage shed. The South-Westerly rear garden is also fully enclosed, predominantly laid to lawn with a patio.
Location - St Eval is a highly regarded village offering a strong community spirit and a range of local amenities including a primary and infant school, village shop and post office. Just a short distance inland from the stunning North Cornwall coastline, the area provides easy access to sandy beaches, coastal walks, and surfing spots. A wider choice of shops, schools, and facilities can be found in nearby St Columb, Wadebridge, Padstow, and Newquay.

Agent Statistics (Based on 607 Reviews) :