The UK's Largest Customer Review Website for the Property Industry
The UK's Largest Customer Review Website for the Property Industry
Back to Property Listings
Morven Road, Sutton Coldfield, B73 6NE
An impressively extended and beautifully reimagined detached family home moments from Sutton Park
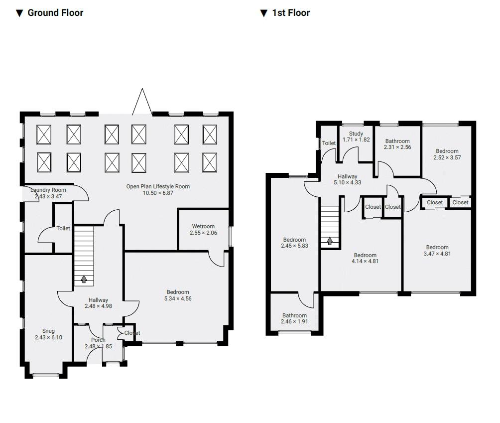
Tucked away at the peaceful end of Morven Road — just a stone’s throw from the open greenery of Sutton Park and neighbouring Braemar Road playing fields — this spectacular four/five-bedroom detached home has been thoughtfully extended and adapted to offer an abundance of space, versatility, and modern family luxury.
From the moment you arrive, there’s a sense of calm and seclusion. The property occupies a generous plot with excellent driveway parking and a charming, traditional façade that conceals a truly unexpected interior — one that celebrates open-plan living and indoor–outdoor flow.
At the heart of the home is a breathtaking open-plan lifestyle room, spanning the rear width of the property. Designed to impress and connect, this space blends function and form to perfection. A bespoke central island anchors the room, complemented by high-quality fitted units, integrated appliances, and extensive storage. The generous dining and seating areas enjoy panoramic garden views, while bi-fold doors flood the room with light and open seamlessly onto the rear terrace — ideal for entertaining, family gatherings, or simply soaking up the peaceful outlook.
A separate snug or family room offers a cosy retreat for movie nights, while a dedicated laundry room ensures practicality remains at the heart of the design.Downstairs, the home also features a large bedroom with a contemporary en-suite wet room, making it perfectly suited to multi-generational living or for guests seeking privacy and independence.
Upstairs, four well-proportioned bedrooms are served by two stylish bathrooms, creating ample flexibility for larger families or those working from home.
The rear garden is a true haven — beautifully landscaped and framed by mature hedging for privacy. Multiple seating zones, a covered entertaining area, and outbuildings offering superb potential for an annex conversion (subject to planning) make this an outdoor space to truly enjoy year-round.
With its prime location, expansive accommodation, and exceptional versatility, this is a home that captures the best of Sutton Coldfield living — moments from parks, amenities, and excellent schools, yet tucked away in a tranquil corner of one of the area’s most desirable roads.BUYERS:Identity Verification Fee - We are required by law to conduct anti-money laundering checks on all those buying a property as part of our due diligence. As agents acting on behalf of the seller, we are required to verify the identity of all purchasers once an offer has been accepted, subject to contract. The initial checks are carried out on our behalf by Lifetime Legal . A non-refundable administration fee of £40 + VAT (£48 including VAT) applies which covers the cost of obtaining relevant data and any manual checks and monitoring which might be required. This fee will need to be paid by you in advance of us issuing a memorandum of sale, directly to Lifetime Legal, and is non-refundable.

This property is marketed by

Paul Carr Estate Agents - Walmley, Sutton Coldfield, B76
4.5/5 Rating
(944) reviews
Agent Statistics (Based on 944 Reviews) :