The UK's Largest Customer Review Website for the Property Industry
The UK's Largest Customer Review Website for the Property Industry
Back to Property Listings
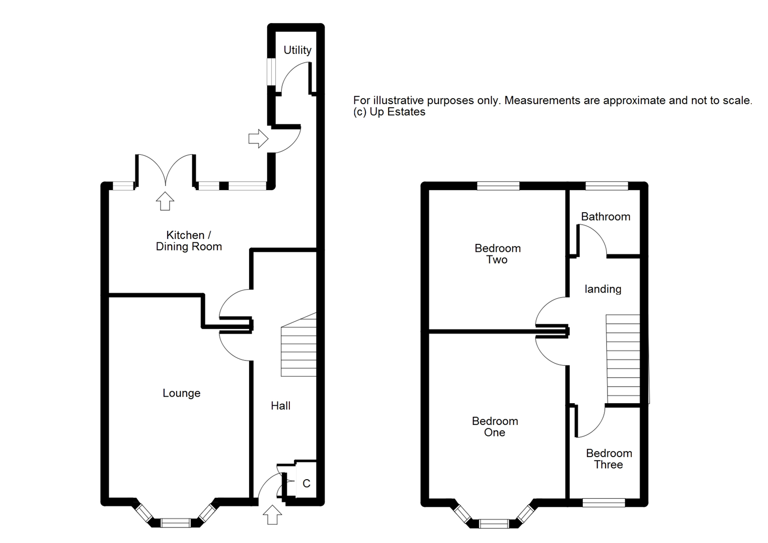
Morris Avenue, Coventry
A beautifully presented three bedroom mid terraced property looking for a long term let! The accommodation comprises three bedrooms, lounge, open plan kitchen / dining room, utility area and family bathroom. CALL NOW TO VIEW!
A beautifully presented three bedroom mid terraced property looking for a long term let! The accommodation comprises three bedrooms, lounge, open plan kitchen / dining room, utility area and family bathroom. CALL NOW TO VIEW!
Relevant Letting Fees And Tenant Information - As well as paying the rent, you may also be required to make the following permitted payments.
Before the tenancy starts (payable to Up Estates Ltd. 'the Agent')
Holding Deposit: 1 weeks rent
Deposit: 5 weeks rent
During the tenancy (payable to the Agent)
Payment of £50 inc. VAT if you want to change the tenancy agreement
Payment of interest for the late payment of rent at a rate of 3% above the BoE Base Rate
Payment of £50 inc. VAT for the reasonably incurred costs for the loss of keys/security devices
Payment of any unpaid rent or other reasonable costs associated with your early termination of the tenancy

Agent Statistics (Based on 608 Reviews) :