The UK's Largest Customer Review Website for the Property Industry
The UK's Largest Customer Review Website for the Property Industry
Back to Property Listings
Moor Lane, Pontefract
A luxuriously RENOVATED and extended five bedroom detached residence on a generous 0.3 acre plot in the SOUGHT AFTER area of Carleton. VIRTUAL TOUR AVAILABLE. EPC rating C73.
Set back from the main road and occupying a substantial 0.3 acre plot, this impeccably renovated and extended five bedroom detached home combines bespoke design, spacious living, and premium finishes throughout. Featuring an exquisite open plan living kitchen, an expansive landscaped rear garden and a broad gated driveway with ample parking.
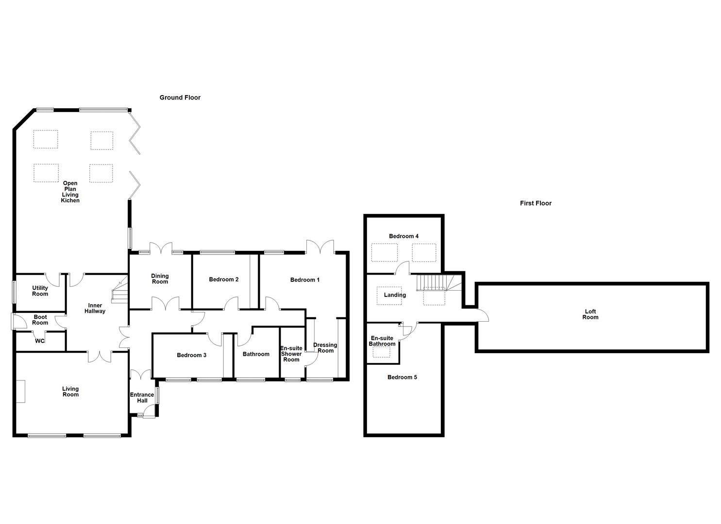
The accommodation briefly comprises a welcoming entrance hall with double doors opening into a central hallway providing access to three ground floor bedrooms, including a principal suite with walk in dressing room and luxury en suite. A modern four piece house bathroom, formal dining room and inner hallway lead to a generous living room, boot room with w.c. and a stunning open-plan bespoke kitchen/dining area, complete with a separate utility room. To the first floor, a spacious landing leads to two further bedrooms, including a fifth bedroom with en suite, and a large loft room with light, ideal for additional storage or flexible use.
Externally, the property is approached via a large single farm gate opening onto a wide driveway offering extensive off street parking including a car port. The beautifully landscaped rear garden is a true highlight, featuring a large paved patio perfect for al fresco dining, pebbled and stepped seating areas with a timber pergola, and an extensive lawn leading to a substantial summerhouse, timber shed, and a wrap-around decked porch.
Situated in the desirable village of Carleton, the property is ideally located within walking distance of some of Pontefract's most highly regarded schools, with convenient access to local bus routes, shops, and amenities. Excellent transport links, including the M62 and A1 motorways, as well as three train stations, make this an ideal home for commuters and families alike. The semi rural surroundings also offer a perfect setting for walking and outdoor pursuits.
Only a full internal inspection will reveal all that's on offer at this quality home and an early viewing comes highly recommended.
Accommodation -
Entrance Hall - Composite front entrance door with frosted side panel, UPVC double glazed frosted window to the side, central heating radiator, coving to the ceiling, oak veneered laminate flooring and double doors leading into the hallway.
Hallway - Oak veneered laminate flooring, coving to the ceiling, central heating radiator, doors to the inner hallway, three bedrooms, bathroom and airing cupboard. Double doors to the dining room and inner hallway.
Bathroom/W.C. - 2.37m (min) x 2.64m (max) x 2.51m (7'9" (min) x 8' - Four piece suite comprising panelled bath, vanity wash basin with mixer tap, low flush w.c. and walk in shower cubicle with solid glass shower screen, mixer shower and pull out shower attachment. Fully tiled walls and floor. UPVC cladding to the ceiling with inset spotlights, contemporary radiator and UPVC double glazed frosted window overlooking the front aspect.
Bedroom Two - 3.05m x 3.14m (10'0" x 10'3") - Fitted wardrobes, fitted drawers and dressing table. Coving to the ceiling, UPVC double glazed window overlooking the rear aspect and central heating radiator.
Bedroom Three - 2.41m x 3.94m (7'10" x 12'11") - Fitted wardrobes, fitted drawers, two UPVC double glazed windows overlooking the front aspect, central heating radiator, coving to the ceiling and inset spotlights.
Bedroom One - 3.03m (min) x 3.54m (max) x 4.85m (9'11" (min) x 1 - Set of UPVC double glazed French doors and window to the rear garden, coving to the ceiling, central heating radiator and feature archway providing access into the dressing room.
Dressing Room - 3.25m x 1.78m (10'7" x 5'10") - UPVC double glazed window overlooking the front aspect, central heating radiator, coving to the ceiling and a range of fitted wardrobes. Door providing access into the en suite shower room.
En Suite Shower Room/W.C. - 1.34m x 2.55m (4'4" x 8'4") - Modern three piece suite comprising low flush w.c., vanity wash hand basin with mixer tap, mirror and built in LED lighting, walk in shower cubicle with solid glass shower screen and mixer shower. Fully tiled walls and laminate flooring. UPVC double glazed frosted window overlooking the front aspect, ladder style radiator, extractor fan, UPVC cladding to the ceiling with inset spotlights.
Dining Room - 3.06m x 3.92m (10'0" x 12'10") - Set of UPVC double glazed French doors with built in blinds to the rear and panel windows to the either side, coving to the ceiling, oak veneered laminate flooring and central heating radiator.
Inner Hallway - 3.44m x 4.30m (11'3" x 14'1") - Large inner hallway with staircase leading to the first floor landing, central heating radiator, coving to the ceiling, oak veneered laminate flooring, set of timber French doors to the living room and doors to the boot room and open plan living kitchen.
Living Room - 4.57m x 6.31m (14'11" x 20'8") - Coving to the ceiling, oak veneered laminate flooring, two UPVC double glazed windows overlooking the front aspect, two central heating radiators and multi fuel cast iron burner inset onto a slate hearth, decorative brick surround and solid wooden mantle.
Boot Room - 2.72m x 1.05m (8'11" x 3'5") - Composite side entrance door, coving to the ceiling, oak veneered laminate flooring, central heating radiator and door to the downstairs w.c.
W.C. - 1.02m x 2.71m (3'4" x 8'10") - Two piece suite comprising large ceramic wash basin with swan neck mixer tap and low flush w.c. Central heating radiator, fully tiled walls, oak veneered laminate flooring, coving to the ceiling and UPVC double glazed frosted window overlooking the side aspect.
Open Plan Living Kitchen - 9.07m x 6.31m (29'9" x 20'8") - Range of modern wall and base units with quartz work surface over incorporating double Belfast ceramic sink with swan neck mixer tap, Range cooker with five ring gas burners and built in extractor fan. Space for an American style fridge/freezer, integrated dishwasher and breakfast bar with matching quartz work surface over. Two large UPVC double glazed windows overlooking the rear garden with windows and bi-folding doors to the side. Karndean flooring, three contemporary radiators, partial pitch sloping ceiling, inset spotlights, four UPVC double glazed velux windows and multi fuel cast iron burner inset onto a slate hearth with decorative brick interior and solid wooden mantle above. Door providing access into the utility room.
Utility - 1.90m x 2.72m (6'2" x 8'11") - Range of modern wall and base units with solid wooden work surface over incorporating Belfast ceramic sink with swan neck mixer tap, space for a dryer and plumbing for a washing machine. Coving to the ceiling, inset spotlights, UPVC double glazed window overlooking the side aspect and large storage cupboards. Karndean flooring and cupboard housing the combi condensing boiler.
First Floor Landing - Two timber double glazed velux windows to the pitch sloping ceiling and doors to two bedrooms and large boarded loft room with light.
Bedroom Four - 3.13m x 4.15m (10'3" x 13'7") - Two timber double glazed velux windows to the pitch sloping ceiling and central heating radiator.
Bedroom Five - 6.26m (max) x 3.87m (min) x 4.16m (20'6" (max) x 1 - Door providing access into the en suite bathroom, UPVC double glazed window overlooking the front elevation and central heating radiator.
En Suite Bathroom/W.C. - 1.68m x 2.20m (5'6" x 7'2") - Three piece suite comprising wall hung wash basin, low flush w.c. and panelled bath with mixer tap and pull out shower attachment. Fully tiled walls and laminate tiled floor. Timber double glazed velux window to the pitch sloping ceiling.
Outside - To the front of the property a large single farm gate provides access onto a large driveway providing ample off road parking with electric car charging port and timber car port. To the rear is an attractive landscaped garden with large paved patio area, perfect for entertaining and dining purposes and a pebbled seating area with steps leading down to a further pebbled seating area under a timber wooden pergola. The garden is predominately an expansive lawn has mature trees and bushes within, a large timber summerhouse, covered timber decked wrap-around porch and timber shed, surrounded by timber fencing.
Council Tax Band - The council tax band for this property is D.
Floor Plans - These floor plans are intended as a rough guide only and are not to be intended as an exact representation and should not be scaled. We cannot confirm the accuracy of the measurements or details of these floor plans.
Viewings - To view please contact our Pontefract office and they will be pleased to arrange a suitable appointment.
Epc Rating - To view the full Energy Performance Certificate please call into one of our local offices.

This property is marketed by

Richard Kendall Estate Agent - Pontefract, Pontefract, WF8
4.9/5 Rating
(1653) reviews
Agent Statistics (Based on 1653 Reviews) :