The UK's Largest Customer Review Website for the Property Industry
The UK's Largest Customer Review Website for the Property Industry
Back to Property Listings
Milton Road, London
A beautifully presented five bedroom Victorian terraced house, located in the heart of Acton's highly desirable Poets Corner.
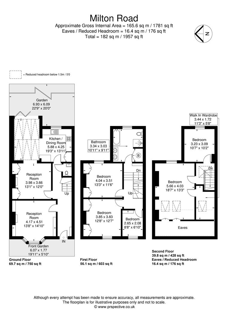
The ground floor offers a large front reception room, with a traditional bay window and a centrepiece fireplace. The second reception room is equally of good size and lead leads nicely into the kitchen/dining area. The secluded private rear garden has been paved and is east-facing.
High ceilings and period features have been retained throughout and the open and airy feel of the home is ideal both for family living and also for entertaining.
The remainder of the property presents two bedrooms, a family bathroom and study room / third on the first floor. The second floor offers two further bedrooms, including the master bedroom and walk in wardrobe, which can be converted into an en-suite.
Milton Road is less than 200m from Acton Central Station and a fifteen minute walk to Acton Mainline and the Elizabeth Line. The vibrant café culture of Churchfield Road offers a great selection of boutique shops, bars and eateries.

Agent Statistics (Based on 192 Reviews) :