The UK's Largest Customer Review Website for the Property Industry
The UK's Largest Customer Review Website for the Property Industry
Back to Property Listings
Mill Road, West Drayton
A substantial three-bedroom, two-bathroom home arranged over three generously proportioned levels.
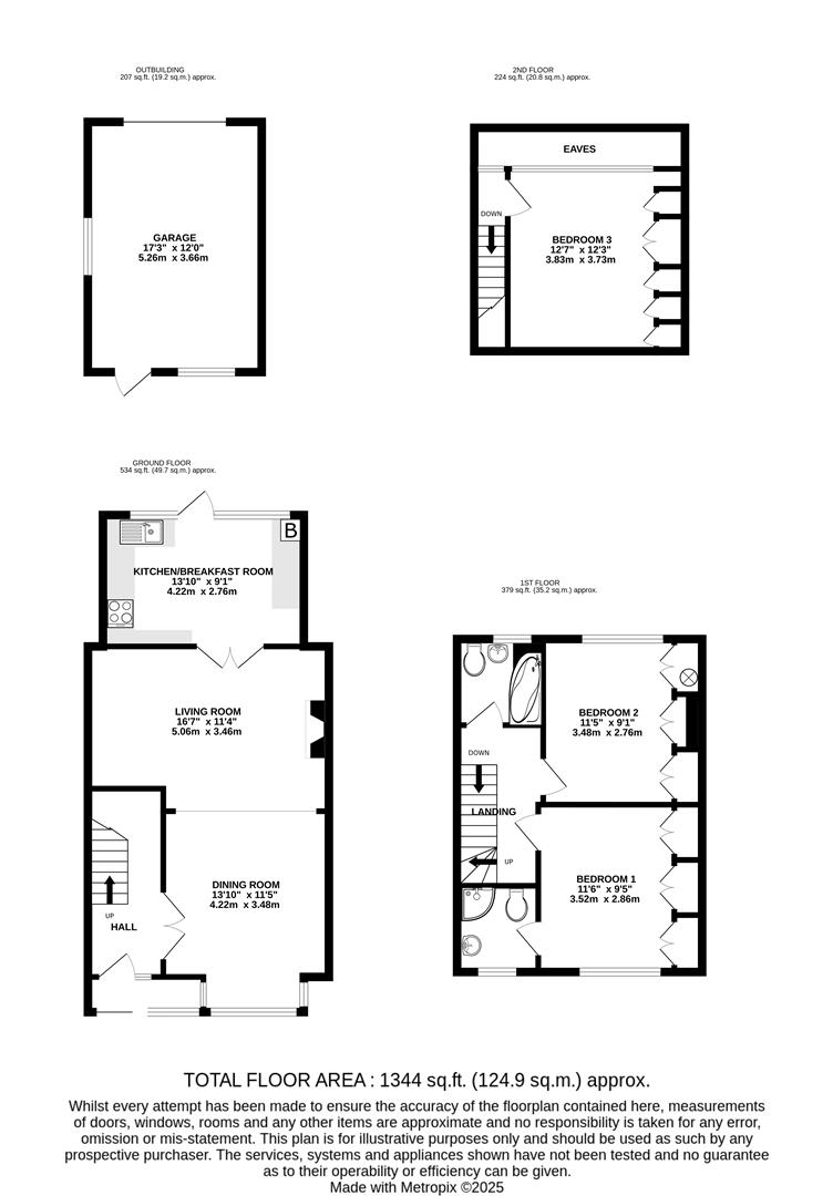
Description - This deceptively spacious property offers three double bedrooms, two bathrooms, a generously sized open-plan reception room, and an extended kitchen/breakfast room. The home also benefits from a detached garage located at the rear of the property.
Accommodation - The property offers well-proportioned accommodation laid out over three spacious levels comprising, entrance porch, entrance hall with stairs to the first floor, and a large open-plan reception room with a front-aspect double-glazed bay window providing ample living and dining space. This leads into an extended kitchen breakfast room with a range of storage units and drawers, generous work surfaces, space for a freestanding oven, with extractor hood above, plus additional space for appliances. There is a recently renewed wall mounted boiler, rear-aspect double-glazed windows and door providing access to the rear garden.
To the first floor, there are two well-proportioned double bedrooms with built in wardrobes, including an en-suite shower room to the primary bedroom, and a separate family bathroom.
To the second floor there is a further double bedroom also with built in wardrobes.
Outside - There is a paved garden to the rear of the property and a detached garage with space to park in front of the garage that is accessed from a rear service road.
To the front there is a paved garden with a variety of mature shrubs and rose bushes.
Situation - West Drayton offers excellent transport links. The area benefits from quick access to central London, with journeys to Bond Street from West Drayton taking just 30 minutes. Additionally, Heathrow Airport is just a short drive away, making international travel easily accessible. With good local bus services and road connections, including the M4 and M25, West Drayton offers exceptional transportation options for residents. Combined with local amenities such as shops, schools, and green spaces
Terms And Notification Of Sale - Tenure: Freehold
Local Authority: London Borough of Hillingdon
Council Tax Band: E
EPC Rating: TBC

This property is marketed by

Cameron Estate Agents - Uxbridge, Uxbridge, UB8
4.8/5 Rating
(1176) reviews
Agent Statistics (Based on 1176 Reviews) :