The UK's Largest Customer Review Website for the Property Industry
The UK's Largest Customer Review Website for the Property Industry
Back to Property Listings
Mill Lane, Ryhill, Wakefield
Situated in Ryhill is this THREE bedroom semi detached property benefitting from SPACIOUS reception rooms and off road PARKING. VIEWING ESSENTIAL. EPC rating D62.
Situated in the Ryhill area of Wakefield is this three bedroom semi detached property. Benefitting from three good sized bedrooms, two ample sized reception rooms and kitchen and an attractive enclosed rear garden with far reaching rural views, this property is certainly not one to be missed.
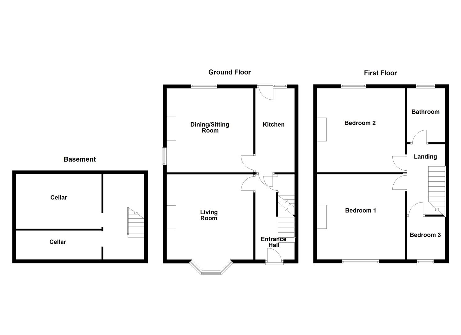
Th property briefly comprises of the entrance hall, from the entrance hall we have stairs to the first floor landing, stairs providing access to the cellar rooms, the living room benefitting from a bay window and the kitchen which has access to the dining/sitting room to complete the accommodation on the ground floor. Upstairs, to the first floor landing, there is access to three bedrooms as well as the house bathroom. Bedroom two providing loft access. Outside, to the front of the property the garden is mainly laid to lawn, paved pathway to the front door, and is enclosed by a wall and iron fencing with double gates opening to a block-paved driveway leading to a detached garage. To the rear of the property, a generous lawn and paved patio offer ideal space for outdoor dining and entertaining. There's also a brick-built store (with power, lighting, and two UPVC double-glazed doors, approx. 1.42m x 4.65m). The garden is fully enclosed with timber fencing, a rear gate, and enjoys far reaching rural views.
The property is well placed to local amenities including shops and schools with local bus routes nearby.
An ideal home for the growing family offering further potential to put their own stamp on and only a full internal inspection will reveal all that's on offer at this home and an early viewing comes highly recommended.
Accommodation -
Cellar - Power and light, access to two cellar rooms.
Cellar One - 2.9m x 4.6m (9'6" x 15'1") - Boiler and water tank housed here.
Cellar Two - 4.6m x 1.53m (15'1" x 5'0") -
Entrance Hall - Frosted UPVC double glazed door to the entrance hall, dado rail, coving to the ceiling, ceiling rose, stairs providing access to the first floor landing. Doors to the kitchen and the living room.
Living Room - 5.36m x 4.62m (max) x 1.05m (min) (17'7" x 15'1" ( - UPVC double glazed bay window to the front, central heating radiator, coving to the ceiling, ceiling rose, gas fireplace with tiled hearth surround and stone mantle.
Kitchen - 4.5m x 2.08m (14'9" x 6'9") - Galley style kitchen, door to the dining/sitting room. UPVC double glazed door to the rear garden. A range of wall and base units, shaker style with quartz worksurface over, inset stainless steel sink with mixer tap and drainboard in the quartz itself, four ring gas hob with integrated oven below and partial quartz splashback. Space and plumbing for a dishwasher, space for a fridge freezer.
Dining/Sitting Room - 4.5m x 4.55m (max) x 4.15m (min) (14'9" x 14'11" ( - Two UPVC double glazed windows to the side and rear, picture rail, central heating radiator, log burner effect gas fire place with wooden mantle.
First Floor Landing - Coving to the ceiling, doors to three bedrooms and the house bathroom.
Bedroom One - 4.56m x 4.57m (max) x 4.2m (min) (14'11" x 14'11" - Two UPVC double glazed windows to the front, central heating radiator, coving to the ceiling, fitted wardrobes.
Bedroom Two - 4.5m x 4.55m (max) x 4.3m (min) (14'9" x 14'11" (m - UPVC double glazed window to the rear, picture rail, loft access, central heating radiator.
Bedroom Three - 2.3m x 2.1m (7'6" x 6'10") - UPVC double glazed window to the front, central heating radiator, coving to the ceiling.
Bathroom - 2.88m x 2.08m (9'5" x 6'9") - Frosted UPVC double glazed window to the rear, chrome ladder style central heating radiator, partial tiling. Low flush W.C., ceramic wash basin built into a floating storage unit with storage below and mixer tap, corner bath with mixer tap, separate walk in shower cubicle with mains fed over head shower and shower head attachment with a glass shower screen.
Outside - At the front of the property, the garden is mainly laid to lawn, with a paved pathway leading to the front door. It is enclosed by a wall and iron fencing, and a set of iron double gates provides access to a block paved driveway running along the side of the house to a detached garage at the rear. To the rear of the property the garden is mainly laid to lawn and incorporates a paved patio area, perfect for outdoor dining and entertaining purposes, brick built outside store (two UPVC double glazed doors, power, light (1.42m x 4.65m)). The garden itself is fully enclosed by timber fencing with a timber gate at the rear and far reaching rural views.
Garage - Electric roll up door, power, light.
Council Tax Band - The council tax band for this property is C.
Floor Plans - These floor plans are intended as a rough guide only and are not to be intended as an exact representation and should not be scaled. We cannot confirm the accuracy of the measurements or details of these floor plans.
Epc Rating - To view the full Energy Performance Certificate please call into one of our local offices.
Viewings - To view please contact our Wakefield office and they will be pleased to arrange a suitable appointment.

This property is marketed by

Richard Kendall Estate Agent - Wakefield, Wakefield, WF1
4.9/5 Rating
(1653) reviews
Agent Statistics (Based on 1653 Reviews) :