The UK's Largest Customer Review Website for the Property Industry
The UK's Largest Customer Review Website for the Property Industry
Back to Property Listings
Mill Hill, Newmarket
A semi-detached 2 bedroom period cottage close to the centre of Newmarket and within walking distance of the town centre. The property offers well proportioned accommodation and has period features including an open fireplace with wood burning stove. . EPC: D, Council Tax: B. Available Now.
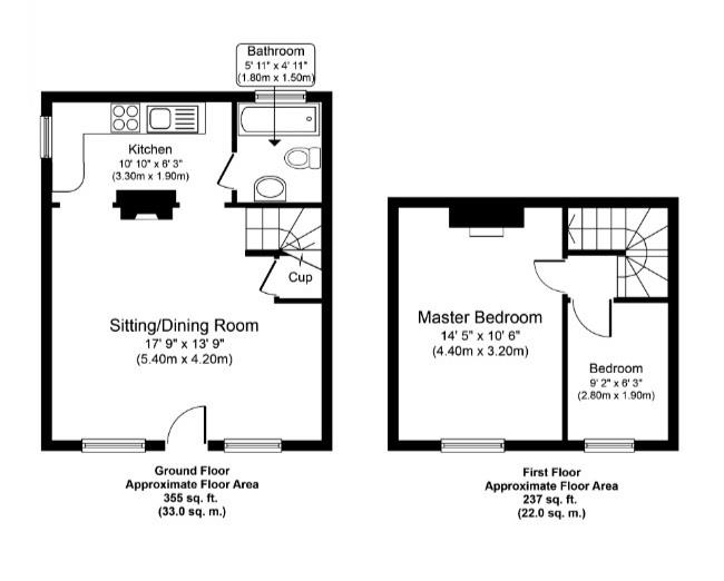
Sitting/Dining Room - 5.38 x 4.5 (17'7" x 14'9") - open plan with exposed wall and ceiling timbers, open fireplace with brick surround and timber mantle, built in cupboard storage and shelving, stairs leading to first floor, understairs storage cupboard with space and plumbing for washing machine, wall light points, television and telephone points, pair of radiators with covers, part glazed entrance door, pair of windows to front aspect.
Kitchen - 2.64 x 1.6 (8'7" x 5'2") - with contemporary styled fitted base and wall units, solid wood worktops, tiled splash backs, deep ceramic sink with mixer tap, integrated electric oven and grill with 4 ring hob, gas fired combination boiler, extractor fan, window to side aspect, cupboard housing fridge and freezer, eye level storage over, lead in glass window.
Bathroom - with panelled bath with mixer tap and shower attachment, hand basin, high level WC, heated towel rail, part tiled walls, recessed ceiling spotlights, extractor fan, 3 windows to rear aspect.
First Floor Landing - with recessed ceiling spotlights.
Bedroom 1 - 4.55 x 3.20 (14'11" x 10'5") - with fireplace with cast iron grate and surround, solid wood oak flooring, recessed ceilling spotlights, access to roof space, radiator with cover, window to front aspect.
Bedroom 2 - 2.84 x 1.93 (9'3" x 6'3") - with radiator, window to front aspect.
Agents Note - Please note that there is no garden with this property and parking is on street.
Letting Agents Notes - Deposit - £1148.00
Holding Deposit - £229.00
Square Footage - 602.78
No parking or garden.
For more information on this property please refer to the Material Information brochure on our Website.

Agent Statistics (Based on 1530 Reviews) :