The UK's Largest Customer Review Website for the Property Industry
The UK's Largest Customer Review Website for the Property Industry
Back to Property Listings
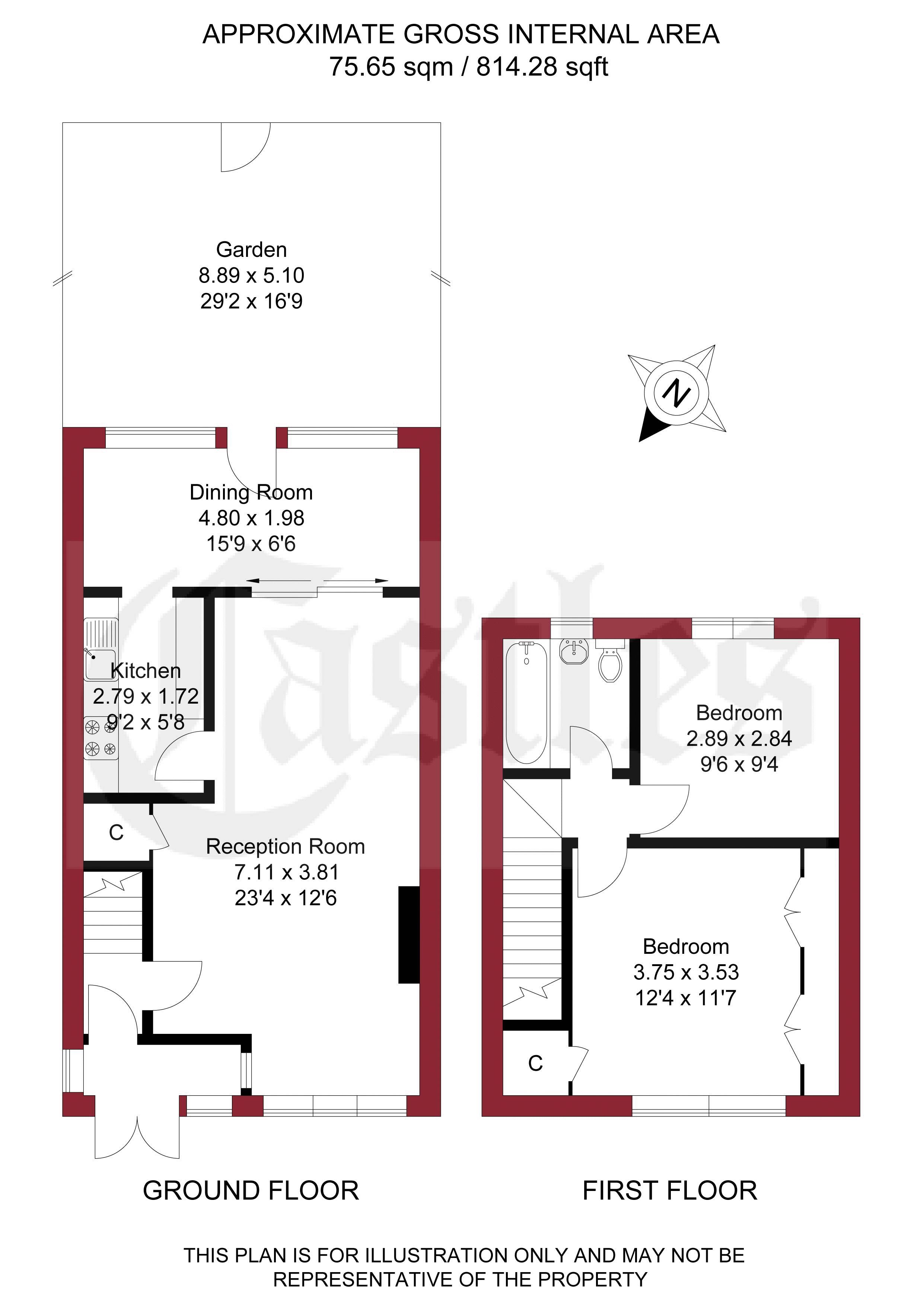
Middleham Road, Edmonton
A two bedroom 1930's extended Terraced property situated on the popular Middleham Estate N18. The property comprises of Reception, kitchen and Dining room ground floor with a further two bedrooms and bathroom to first floor. It also has features to include, off street parking, 29ft rear garden and is offered for sale on a chain free basis.

This property is marketed by

Castles Estate Agents (London) - Edmonton, London, N9
4.9/5 Rating
(939) reviews
Agent Statistics (Based on 939 Reviews) :