The UK's Largest Customer Review Website for the Property Industry
The UK's Largest Customer Review Website for the Property Industry
Back to Property Listings
Melrose Avenue, Paisley, PA3
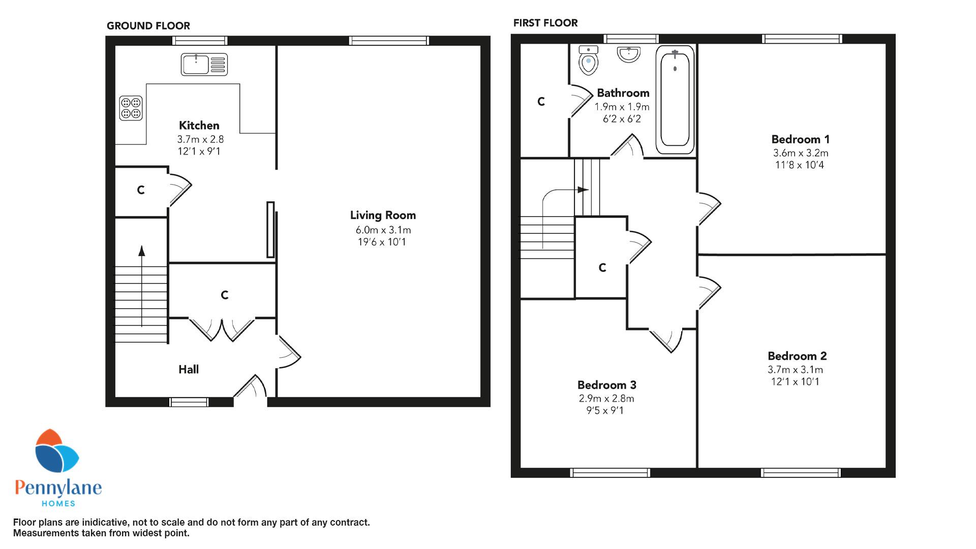
The property is accessed via a small entrance hallway with large walk in cupboard and stairway to upper level. The cosy lounge has been neutrally decorated with large window and wall mounted fireplace. A sliding door provides access to the kitchen, which comprises a combination of wall and floor mounted units with larder cupboard and ample space for a small dining table. On the upper level, there are three well appointed bedrooms with large walk in cupboard within the hallway. The family bathroom comprises a three piece white suite with shower over the bath and further walk in cupboard providing fantastic storage.
The property benefits from double glazing throughout as well as a private garden to the front with fence surround. Ample off street parking is available.
The property is situated within easy reach of Linwood town centre, where all local amenities are readily available. The area`s close proximity to the M8 Motorway, make the area popular with commuters with easy access routes to Glasgow Airport and Glasgow City Centre. Local schooling is readily available with Our Lady of Peace, Woodlands and East Fulton Primary Schools and Linwood and St Benedict`s High Schools all available a short walk from the property. The area is served by fantastic public transport links,
Notice
Please note we have not tested any apparatus, fixtures, fittings, or services. Interested parties must undertake their own investigation into the working order of these items. All measurements are approximate and photographs provided for guidance only.
Council Tax
Renfrewshire Council, Band B
Utilities
Electric: Mains Supply
Gas: Unknown
Water: Mains Supply
Sewerage: Mains Supply
Broadband: Unknown
Telephone: Unknown
Other Items
Heating: Electric Heaters
Garden/Outside Space: Yes
Parking: No
Garage: No

Agent Statistics (Based on 197 Reviews) :