The UK's Largest Customer Review Website for the Property Industry
The UK's Largest Customer Review Website for the Property Industry
Back to Property Listings
Meadow View, Radstock
A one off build tucked away at the end of a no through road which offers unique living both internally and externally.
Littlebrook House was constructed in 2004 by the current owners and has been occupied ever since. A modern property in a great setting tucked away with a leafy surround.
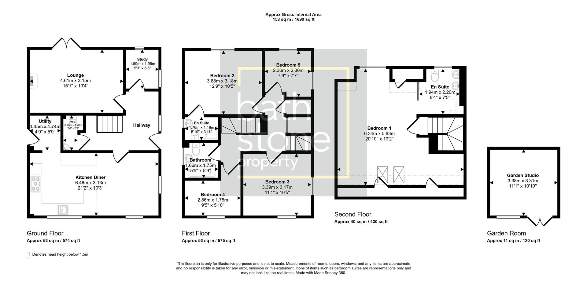
In 2022 the property had further transformations with the addition of a brand new roof structure extending the accommodation over three floors and providing a main bedroom suite.
Ideal for families, accommodation extends over three floors with the external space hugging a flowing stream. This area provides a great place for children to explore within your own garden and has been enjoyed by the current occupants who raised children there from new born to teens.
Entering into the hallway you are greeted with a galleried landing. The door is mainly glass which extends to ceiling height providing the wow factor on entrance. The ground floor accommodation then extends to kitchen/diner to front with utility room off the kitchen. To the rear of the property is a great sized lounge finished with paneled walls and double doors onto a rear decked area with pergola. An office is also located on the ground floor, ideal for those to work from home. The wall between office and lounge is a stud wall and if you required a larger lounge this could be taken down to open up the space further.
Rising to the first floor there are four bedrooms and the family bathroom. Bedrooms two and three are doubles with four and five being single rooms. Bedroom two also has the added benefit of en-suite shower room.
Rising again from the galleried landing and into the roof space there is a large main bedroom suite. Space for a super king size bed with ample further space, this is a large and inviting room. There is a fully fitted en-suite with dual sinks and shower cubicle along with a dressing area to the other end of the room. Eaves storage and windows overlooking the rear elevation complete the room.
Externally the property has a lot to offer. Hugging a stream the home offers a unique blend of rural feel yet in the center of town. A large driveway is located to the front of the property and through double gates. A leafy garden and banks of the stream sweep around the East elevation into the garden. The garden is mainly laid to lawn and enclosed by fencing to the left hand side. At the base of the garden is a garden studio with its own power, internet and alarm system ideal for those who work from home. Beyond this is a good sized space for additional sheds.
Located at the end of a no through road on Meadow View this home is ideally placed centrally in Radstock. Access to te cycle track is right on your doorstep and will connect you with Frome, Bath and Midsomer Norton. Radstock town has an array of amenities with further amenities accessed by a short drive into Midsomer Norton, Bath and Frome.

Agent Statistics (Based on 99 Reviews) :