The UK's Largest Customer Review Website for the Property Industry
The UK's Largest Customer Review Website for the Property Industry
Back to Property Listings
Mead Furlong, Haddenham
Exceptional Four-Bedroom Detached Residence with Panoramic Countryside Views.
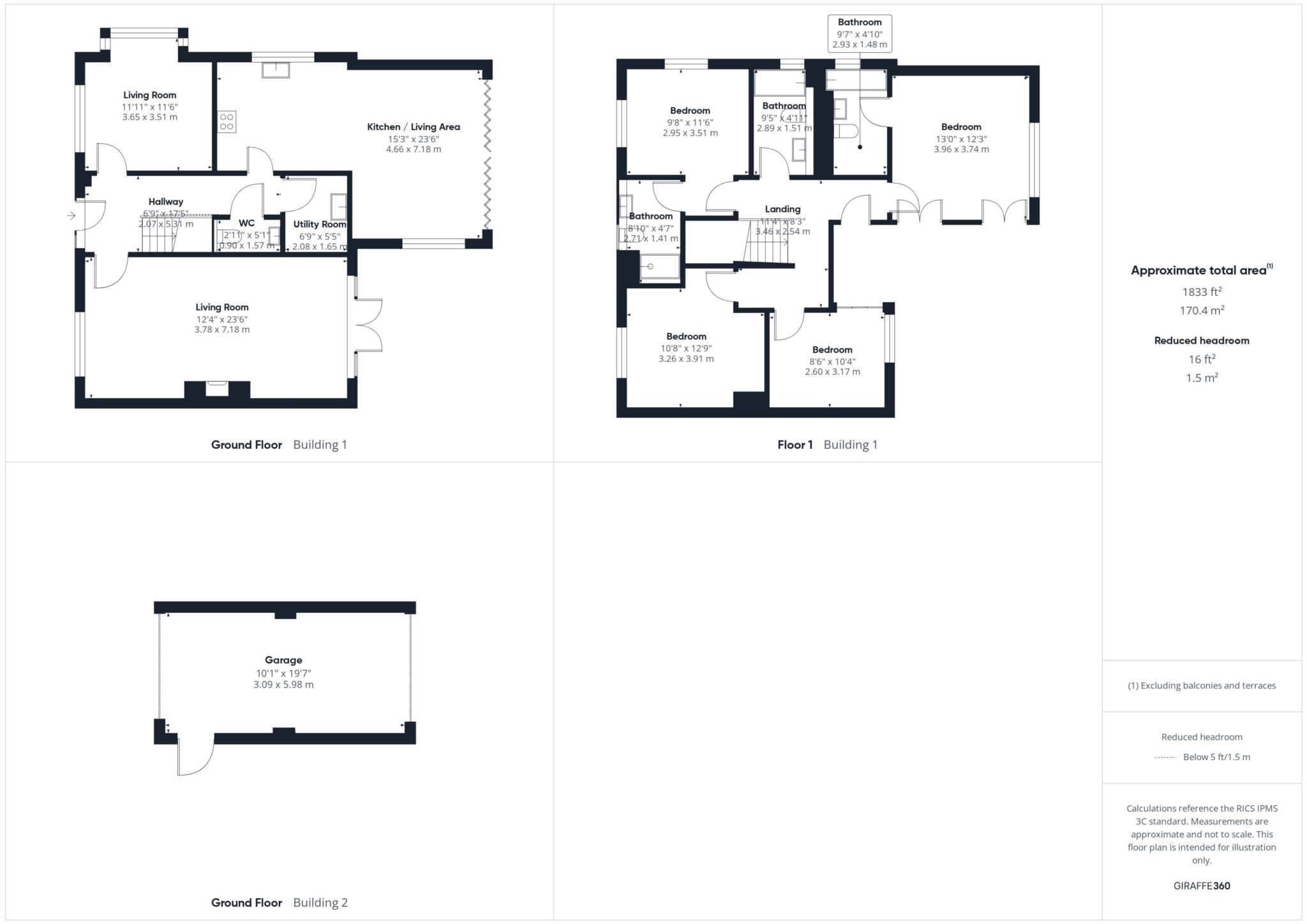
Built in 2018, this impressive larger-style four-bedroom detached home enjoys a commanding position within the sought-after Chilterns development, perfectly oriented to capture breathtaking views across open countryside.
From the outset, the property offers superb kerb appeal, complemented by off-street parking and a single garage, delivering both practicality and convenience. Ideally located, it provides easy access to local amenities, reputable schools, and excellent transport links, including Haddenham & Thame Parkway station, offering direct connections to London in under an hour.
Internally, the home presents a wonderful sense of space, light, and modern sophistication. The welcoming reception room is centred around a striking wood-burning stove, with patio doors opening seamlessly onto an elegant outdoor seating area perfect for both entertaining and relaxed evenings.
At the heart of the home lies a stunning open-plan kitchen, dining, and breakfast room. Thoughtfully designed with high ceilings, underfloor heating, sleek tiled flooring, and integrated appliances, this space effortlessly blends style with functionality. Bi-fold doors open directly onto the garden, creating a superb indoor-outdoor flow. A dual-aspect study, downstairs WC, and a separate utility room further enhance the versatility of the ground floor.
Upstairs, a spacious landing leads to the luxurious principal suite, enjoying far-reaching views. This serene retreat benefits from built-in storage and a beautifully appointed en-suite featuring both a freestanding bath and a separate shower. The second bedroom also enjoys the advantage of its own en-suite shower room, while two further double bedrooms are served by a contemporary family bathroom. A substantial landing storage cupboard completes the accommodation.
Externally, the property boasts a beautifully maintained rear garden, complete with a wooden pergola and a stylish patio seating area ideal for outdoor dining and relaxation. The single garage, with additional storage into the rafters, further enhances practicality.
This outstanding home offers an exceptional combination of quality, space, and setting. Early viewing is highly recommended to fully appreciate all that this remarkable property has to offer.
Please note: An annual estate maintenance charge of approximately ?450 applies.
what3words /// carpeted.tailed.september
Notice
Please note we have not tested any apparatus, fixtures, fittings, or services. Interested parties must undertake their own investigation into the working order of these items. All measurements are approximate and photographs provided for guidance only.
Council Tax
Buckinghamshire Council, Band G
Service Charge
?450.00 Yearly
Utilities
Electric: Mains Supply
Gas: Mains Supply
Water: Mains Supply
Sewerage: Unknown
Broadband: Unknown
Telephone: Unknown
Other Items
Heating: Gas Central Heating
Garden/Outside Space: No
Parking: Yes
Garage: Yes

Agent Statistics (Based on 1 Reviews) :