The UK's Largest Customer Review Website for the Property Industry
The UK's Largest Customer Review Website for the Property Industry
Back to Property Listings
Massachusetts Place, Reading
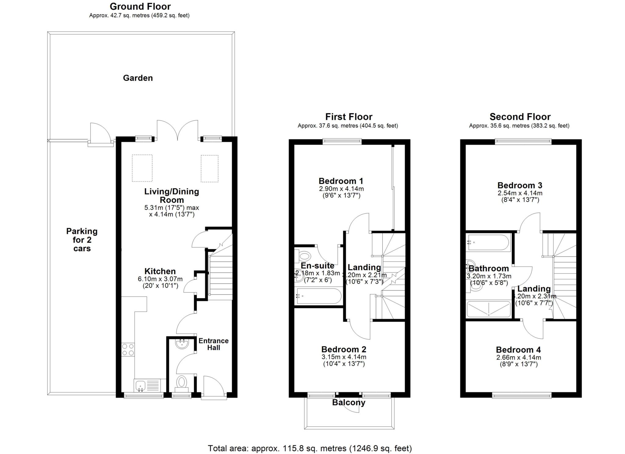
Bridges are delighted to bring to market this impressive four-bedroom town house, located within 60 acres of beautiful meadowland in the sought-after Green Park Village a prestigious urban development by renowned luxury housebuilder, Berkeley Homes.
This stylish and spacious home is arranged over three floors and has been finished to a high and exacting standard throughout.
The ground floor features an inviting entrance hall leading into a stunning kitchen/Living/dining area with modern integrated appliances, sleek floor and eye-level units, and a comfortable lounge area with French doors opening onto a south-facing garden perfect for entertaining or relaxing.
On the first floor, you`ll find a bright and airy bedroom/living room with a private balcony, along with a generous double bedroom at the rear, complete with built-in storage and a luxurious en-suite shower room with underfloor heating.
The top floor offers two further well-proportioned bedrooms and a contemporary family bathroom, featuring both a separate shower and a bathtub. NO ONWARD CHAIN!
Notice
Please note we have not tested any apparatus, fixtures, fittings, or services. Interested parties must undertake their own investigation into the working order of these items. All measurements are approximate and photographs provided for guidance only.
Council Tax
Reading Borough Council, To Be Confirmed
Utilities
Electric: Unknown
Gas: Unknown
Water: Unknown
Sewerage: Unknown
Broadband: Unknown
Telephone: Unknown
Other Items
Heating: Gas Central Heating
Garden/Outside Space: No
Parking: Yes
Garage: No

This property is marketed by

Bridges Estate Agents (Reading) - Caversham Reading, Reading, RG4
3.7/5 Rating
(3) reviews
Agent Statistics (Based on 3 Reviews) :