The UK's Largest Customer Review Website for the Property Industry
The UK's Largest Customer Review Website for the Property Industry
Back to Property Listings
Margaret Grove, Harborne, Birmingham, B17
Hadleigh Estate Agents are delighted to offer this fantastic four bedroom semi detached home for sale. Situated on Margaret Grove within the ever popular Moor Pool Estate.
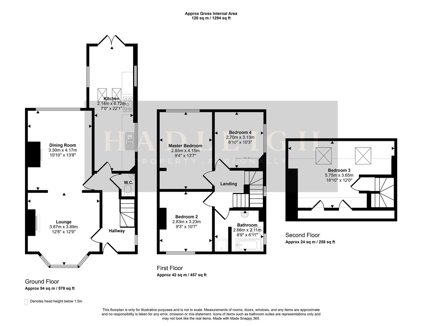
The property comprises fore garden and entrance hallway. Spacious lounge and dining area, benefitting from under stairs guest WC. The extended kitchen allows for dining area.
The first floor houses three spacious double bedrooms and a modern family bathroom, complete with freestanding bath and walk in shower. The second floor benefits from a further spacious bedroom.
To the rear of the property is a private garden with decked area and rear garden studio.
Location - Margaret Grove is a central location within the Moor Pool Estate which is highly desirable and sought after. Margaret Grove benefits from Nettlefold pocket garden, which is great for families. The property is within very close proximity to Harborne High Street with its fabulous array of bars, boutiques, coffee shops and eateries. The property is positioned perfectly for outstanding schools most notably Harborne Primary, Chad Vale Primary School and the Blue Coat School, whilst Medical professionals and academics will love the proximity to Queen Elizabeth Medical Complex and The University of Birmingham. For those who rely on the motorway network they have the options of the M6, M40 and M42 via M5 around four miles away. Other fantastic points of interest within the local area include Birmingham Botanical Gardens and Edgbaston Priory Club. With the NIA, Symphony Hall and theatres in Birmingham City Centre also easily accessible.
Hallway - Oscbure glazed front door, glazed window to side elevation and tiled flooring. Gas central heating radiator and ceiling light points.
Lounge - Bay window to front elevation and bespoke shutters. Feature fireplace, pine doors, solid wood flooring and alcove shelving. Gas central heating radiator and ceiling light points.
Dining Room - Double glazed windows to rear elevation with shutters and feature fireplace with original pine surround. Solid wood flooring, gas central heating radiator and ceiling light point.
Kitchen - Extended kitchen with tiled flooring, windows to side elevation and sky lights. Rear glazed door to garden, fitted kitchen with a range of base and wall units. Integrated dish washer, plumbing for washing machine and ceiling spotlights.
W.C - Low level flush WC, hand wash basin, extractor fan and gas central heating radiator along with light point.
Master Bedroom - Spacious double bedroom with window to rear elevation, ceiling light point and gas central heating radiator.
Bedroom 2 - Double bedroom with window to front elevation, ceiling light point and gas central heating radiator.
Bedroom 4 - Double bedroom currently being used as a highly functional wardrobe room. Window to rear elevation, gas central heating radiator and ceiling light point.
Bathroom - Freestanding bath, vanity unit, window to rear elevation. Towel radiator, ceiling light point, walk in mains shower cubicle and partially tiled walls.
Bedroom 3 - Converted loft housing spacious bedroom, ceiling skylights, gas central heating radiator and ceiling light points. This room further benefits from storage within the eaves.
Garden - Decked seating area, side access, lawned garden and rear studio.
Studio - Multi functional room allowing for gym, office or playroom. Double glazed patio doors, lighting, electrics and electric heater.
Basement - Providing further excellent storage space.
General Information - We have been advised the following information, however we advise for you to confirm this with your legal representative as Hadleigh Estate Agents cannot be held accountable.
Tenure - Freehold
EPC - E
Council Tax Band - D

This property is marketed by

Hadleighs Estate Agents & Surveyors - Hadleigh Estate Agents and Surveyors, Birmingham, B17
4.6/5 Rating
(43) reviews
Agent Statistics (Based on 43 Reviews) :