The UK's Largest Customer Review Website for the Property Industry
The UK's Largest Customer Review Website for the Property Industry
Back to Property Listings
Manor Green, Ketton, Stamford
Magnolia House is a substantial and well-presented five-bedroom, stone-built detached home, occupying a prominent and private position within the ever-popular Rutland village of Ketton.
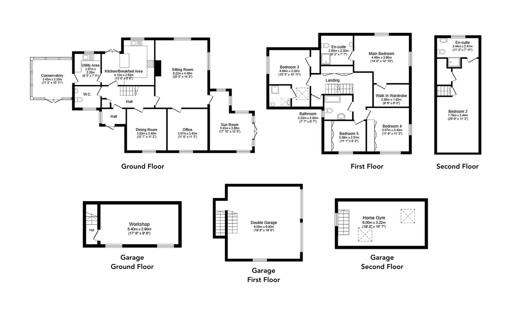
Ground Floor - The property offers exceptionally spacious and versatile accommodation, thoughtfully arranged over two floors and ideal for modern family living. A welcoming entrance porch opens into a generous hallway, setting the tone for the scale and quality found throughout the home.
The ground floor includes a convenient downstairs WC, a well-equipped kitchen breakfast room offering ample space for informal dining, and a separate utility room providing additional storage and practicality.
A particular highlight of the home is the range of reception rooms, allowing flexibility for entertaining, relaxation, and home working. These include a formal dining room perfect for hosting family gatherings, a comfortable lounge, a bright and airy sun room, and a conservatory that enjoys views over the garden.
A dedicated office provides an ideal workspace for those working from home or seeking a quiet study area.
First Floor - To the first and second floor, Magnolia House continues to impress with five generously proportioned bedrooms, all benefiting from built-in wardrobes. Three bedrooms enjoy the luxury of en-suite shower rooms, while a well-appointed family bathroom serves the remaining bedrooms, ensuring comfort and convenience for family members and guests alike.
Outside - Externally, the property is equally impressive. A substantial detached garage building arranged over three floors provides a lower-level store room, double garage above and a mezzanine level. This is complemented by ample off-road parking, while additional spaces including a workshop and gym add further practicality and lifestyle appeal, with excellent potential to create a self-contained annexe if desired, subject to the necessary consents.
The wrap-around gardens are enclosed by attractive stone walling, offering a high degree of privacy. Predominantly laid to lawn with a patio area, the south-west facing rear garden provides an ideal setting for outdoor dining, entertaining, or simply enjoying the peaceful village surroundings.
Magnolia House provides a fantastic opportunity to acquire a spacious and and versatile family home in one of Rutland's most desirable villages with generous accommodation, and excellent lifestyle amenities.
Location - Ketton is a charming village lying just to the west of Stamford and to the south-east of Oakham. It has many amenities including a local shop/post office, schools, public house, the Ketton Club, and various sporting facilities. A plethora of private schools are also within easy reach, including those in Oundle, Oakham, Uppingham, and Stamford. All other facilities are available in Stamford, approximately 3 miles away, including a good range of shops, medical facilities, library, and more. For commuters, it is well positioned, giving easy access to several centres, including Peterborough via the A1 Great North Road, which has a mainline station with good train services to London. It is also within easy driving distance of Kettering, Corby, and Leicester.
Services & Council Tax - The property is offered to the market with all mains services and gas-fired central heating and underfloor heating throughout the ground floor.
Rutland County Council - Tax Band G
Tenure - Freehold

This property is marketed by

James Sellicks Estate Agents - London office, London, SW1A
5/5 Rating
(283) reviews
Agent Statistics (Based on 283 Reviews) :