The UK's Largest Customer Review Website for the Property Industry
The UK's Largest Customer Review Website for the Property Industry
Back to Property Listings
Mannamead, Epsom
A well presented two-bedroom detached home is ideally situated in a sought-after residential area of Epsom, Surrey. Perfectly blending charm with modern convenience, the property offers well proportioned living spaces and is ideal for couples, small families, or downsizers alike.
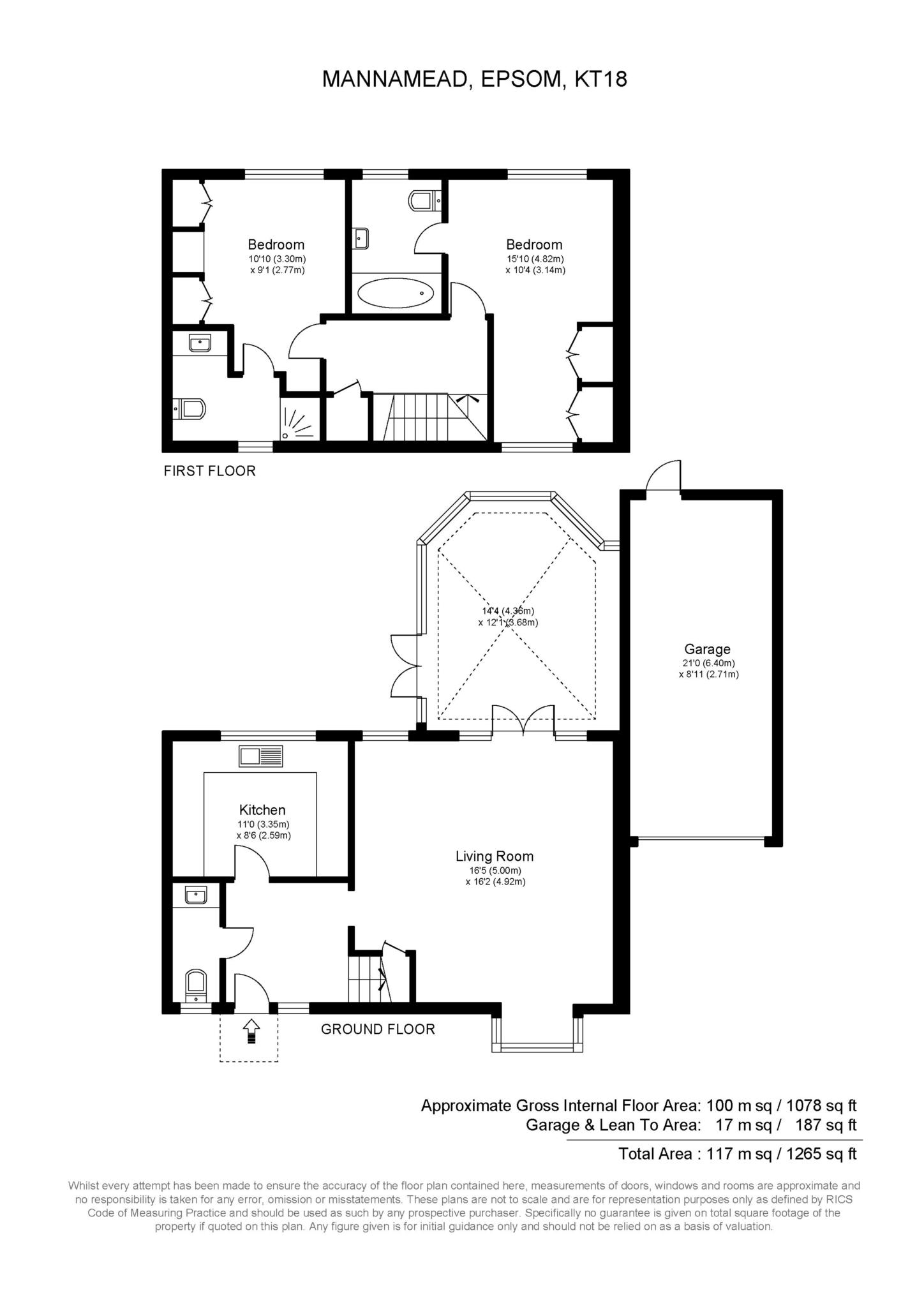
Upon entering, you are welcomed by a bright entrance hall leading to a spacious reception room offering a comfortable and versatile living environment. The reception features a dual aspect allowing plenty of natural light, as well as opening into the conservatory which provides an excellent dining or family area. The conservatory itself also enjoys lovely views of the garden, making it a perfect spot to relax throughout the seasons.
The kitchen is fitted with a range of contemporary units and worktops, complemented by integrated appliances and ample storage, for additional convenience there is also a downstairs WC. Upstairs, there are two generously sized bedrooms, both with fitted wardrobes and en-suite bathrooms.
Externally, the property benefits from an attractive rear garden which is ideal for entertaining or quiet enjoyment. There is also a garage providing additional storage or workspace, as well as off-street parking for one car. Additional features include double glazing and gas central heating, ensuring comfort and energy efficiency throughout.
Located in the vibrant town of Epsom, the property enjoys close proximity to a wealth of local amenities, outstanding schools, and excellent transport links to London and surrounding areas. Epsom itself offers an appealing mix of town and country living. Residents can explore the charming high street with its range of independent shops, caf?s, and restaurants, or spend time at The Ashley Centre for more extensive shopping.
For leisure, Epsom Downs Racecourse home of the world-famous Derby offers panoramic views and scenic walking routes. The nearby Horton Country Park provides acres of open green space, woodlands, and bridle paths for outdoor enthusiasts. Epsom Playhouse hosts a diverse programme of theatre, comedy, and live music, while local golf courses and health clubs cater to fitness and recreation. With its welcoming community, excellent connectivity, and attractive surroundings, Epsom remains one of Surrey`s most desirable places to live.
Notice
Please note we have not tested any apparatus, fixtures, fittings, or services. Interested parties must undertake their own investigation into the working order of these items. All measurements are approximate and photographs provided for guidance only.
Council Tax
Epsom and Ewell Borough Council, Band F
Utilities
Electric: Mains Supply
Gas: Mains Supply
Water: Mains Supply
Sewerage: Mains Supply
Broadband: ADSL
Telephone: Landline
Other Items
Heating: Gas Central Heating
Garden/Outside Space: Yes
Parking: Yes
Garage: Yes

Agent Statistics (Based on 241 Reviews) :